Indietro
Villa a schiera via Colle Paradiso 12, Cocchino, Anzio
Vendita
Vendita Villetta a schiera Nuovo

Villa a schiera via Colle Paradiso 12, Cocchino, Anzio

Via Colle Paradiso, Anzio, Roma

359.000 €
100
mq
3
Locali
2
Camere
2
Bagni

Recensisci questo Immobile

Devi essere registrato per lasciare una recensione.

Accedi

Nessuna recensione ancora. Sii il primo!

Descrizione

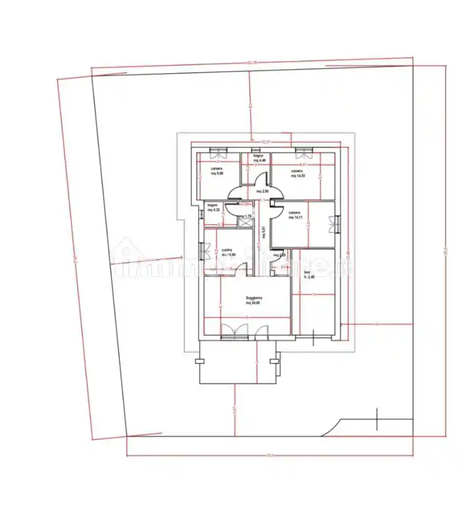
**Villino in Vendita ad Anzio - Via Colle Paradiso**

Scopri il tuo nuovo rifugio nella splendida Anzio, in una zona residenziale in fase di costruzione. Questo villino moderno, completato nel 2023, offre una superficie di circa 100 mq, perfetta per famiglie o coppie in cerca di spazio e comfort. Con due camere da letto e due bagni, ogni ambiente è progettato per garantire il massimo della funzionalità e del relax.

Il salone luminoso con cucina a vista e giardino d'inverno è il cuore della casa, ideale per momenti conviviali e cene con amici. All'esterno, un giardino di circa 80 mq, diviso tra verde e mattonato, ti accoglie per piacevoli giornate all'aria aperta. La casa è dotata di accesso per persone con mobilità ridotta
L'immobile è termoautonomo e la classe A+ garantisce un eccellente risparmio energetico, in più dispone già dell'impianto per sistema di condizionamento in tutti gli ambienti.

Non perdere l'opportunità di vivere in un contesto tranquillo e ben collegato, a pochi passi dal mare e dai servizi. Contattaci per maggiori informazioni e per prenotare una visita!
IMMOBILE NON SOTTOPOSTO A IVA.

Caratteristiche

Piano Piano terra
Ascensore No
Stato Nuovo / In costruzione
Riscaldamento Autonomo
Garage 1 in parcheggio/garage comune

Servizi e accessori

Cancello elettrico Porta blindata Impianto tv con parabola satellitare Giardino privato

Posizione

Zona: Cocchino (Marechiaro, Cocchino, Anzio Colonia)

Referente

Carol Albano

Storico

Pubblicato 29 Dec 2025
Aggiornato 15 Feb 2026
Sul mercato 52 giorni
ID Annuncio 125458349

Recensioni

Vedi tutte
L

Lucia Imbriani

4.7

Se cercate un'agenzia immobiliare a Roma, consiglio di sceglierne una che ascolti davvero le vostre esigenze e gestisca tutto con efficienza. Mi sono trasferita in città per lavoro e ho trovato l'appa...