Apartment
Vendita
Vendita Appartamento Nuovo

Apartment

Via Monti Lepini, Milan, Milano

237.000 €
50
mq
2
Locali
1
Camere
1
Bagni

Recensisci questo Immobile

Devi essere registrato per lasciare una recensione.

Accedi

Nessuna recensione ancora. Sii il primo!

Descrizione

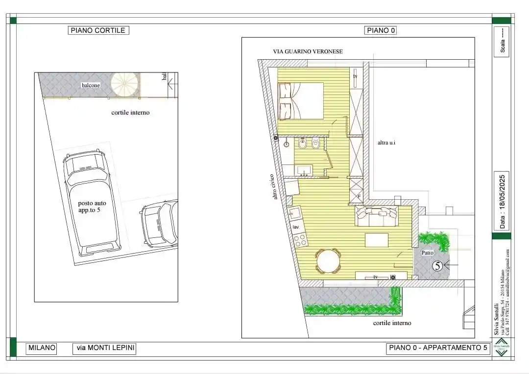
MILANO Zona P.le Cuoco: Via Monti Lepini

In piccola palazzina indipendente CRES propone 8 bilocali di nuova costruzione, ARREDATI, posti al piano terra, piano rialzato e primo piano composti da: soggiorno con angolo cottura, camera matrimoniale, bagno.
Alcuni appartamenti saranno dotati di terrazza o balcone, altri di un patio.
Posto auto privato all’interno del cortile.

PRIMO PIANO
APP. 1 Mq 63 euro 350.000 Abitazione + Balcone + Terrazzo
APP. 2 Mq 53 euro 295.000 Abitazione + Balcone + Terrazzo
APP. 3 Mq 53 Abitazione + Balcone + Terrazzo VENDUTO
APP. 4 Mq 56 Abitazione + Balcone + Terrazzo VENDUTO

Certificazione energetica da progetto: classe A2

PIANO TERRA-SEMINTERRATO
APP. 5 Mq 50 euro 237.000 Abitazione + Patio + Posto Auto
APP. 6 Mq 47 euro 225.000 Abitazione + Patio + Posto Auto
APP. 7 Mq 46 euro 220.000 Abitazione + Patio + Posto Auto
APP. 8 Mq 46 Abitazione + Patio + Posto Auto VENDUTO

Certificazione energetica da progetto: classe A3

<hr>
Tutti i dati forniti nel presente annuncio non costituiscono elemento contrattuale ma sono puramente indicativi.
Per ulteriori informazioni sul seguente annuncio telefonare al numero 02 80500466 o inviare una mail a info@cresrealestate.it e per visionare altre opportunità consultare www.cresrealestate.it
Nel caso in cui questo immobile e le altre offerte pubblicate all’interno del nostro sito e sui principali portali pubblicitari non corrispondano alle sue esigenze, la nostra società fornisce un servizio personalizzato di ricerca (Property Finder).
<hr>

Caratteristiche

Piano Piano terra
Ascensore No
Stato Nuovo / In costruzione
Riscaldamento Autonomo
Garage 1 in parcheggio/garage comune

Servizi e accessori

Cancello elettrico Fibra ottica Videocitofono Impianto di allarme Porta blindata Impianto tv centralizzato Arredato Infissi esterni in doppio vetro / pvc Esposizione doppia

Posizione

Zona: Molise - Cuoco (Porta Vittoria, Lodi)

Referente

Cres Strategie Immobiliari Srl .

Storico

Pubblicato 08 Jan 2026
Aggiornato 15 Feb 2026
Sul mercato 43 giorni
ID Annuncio 125740549

Recensioni

Vedi tutte
C

Claudio Borgia

5.0

Se cercate un’agenzia affidabile, consiglio di affidarsi a chi dimostra disponibilità e conoscenza delle normative. Ho trovato un team che mi ha seguito passo passo, aiutandomi a vendere la casa dopo...

F

Flavia Gagliardi

5.0

Ho trovato l’appartamento perfetto per i miei figli grazie all’ampia scelta e alla disponibilità dell’agenzia. Mi sono sentita seguita e aiutata in ogni fase, rendendo il processo semplice e senza str...

M

Maria Padovani

5.0

Stavo cercando di vendere un appartamento di famiglia a Milano e sono stata molto fortunata a trovare un’agenzia così professionale e disponibile. Mi sono sentita seguita passo dopo passo con molta at...

C

Claudia Neri

5.0

Se cercate un’agenzia immobiliare a Milano, vi consiglio di rivolgervi a chi sa davvero ascoltare e capisce le vostre esigenze. Mi sono trovata molto bene perché sono stata seguita con attenzione e di...

M

Margherita Mancini

4.0

Un enorme grazie per avermi seguita con tanta dedizione in questa importante ricerca! Mi sono trovata davvero bene, l’agenzia si è mostrata affidabile e onesta in ogni fase, aiutandomi a trovare l’app...