Vendita Appartamento

Appartamento

Via Seriola, Ospitaletto, Brescia

340.000 €
139
mq
4
Locali
3
Camere
2
Bagni

Recensisci questo Immobile

Devi essere registrato per lasciare una recensione.

Accedi

Nessuna recensione ancora. Sii il primo!

Descrizione

OSPITALETTO
**Vendesi Appartamento in fase di realizzazione in zona residenziale!**
Se stai cercando una casa che unisce comfort, eleganza e sostenibilità, non puoi perdere questa straordinaria opportunità! Situato all'interno di un complesso residenziale in fase di realizzazione, questo appartamento al piano terra è il luogo ideale per chi desidera vivere in un ambiente tranquillo e raffinato.

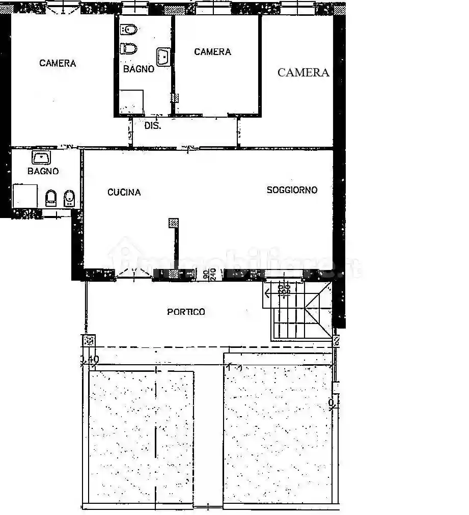
L'abitazione vanta un ingresso indipendente che garantisce la massima privacy e un giardino privato, perfetto per le tue serate estive o per far giocare i tuoi bambini. Immagina di rilassarti nel tuo ampio portico vivibile, un prezioso spazio esterno che arricchisce ulteriormente la tua esperienza abitativa.

Internamente, l'appartamento si sviluppa con un layout ben pensato: un luminoso soggiorno accogliente, una cucina abitabile dove realizzare deliziose ricette, un disimpegno che conduce a tre camere da letto spaziose e due bagni (di cui uno padronale), offrendo così comfort e funzionalità per tutta la famiglia.

Ma le sorprese non finiscono qui! Avrai accesso esclusivo al piano interrato dotato di lavanderia, dove troverai una generosa autorimessa di ben 56 mq. Qui potrai personalizzare lo spazio secondo le tue esigenze, creando una cantina o una taverna per divertirti con gli amici.

Questo immobile non è solo bello, ma anche estremamente efficiente dal punto di vista energetico. È dotato di riscaldamento a pavimento tramite pompa di calore, ventilazione meccanica forzata e un impianto fotovoltaico da 4 kW, rendendolo eco-friendly e in classe energetica A4. Inoltre, c'è già la predisposizione per l'aria condizionata, per garantirti il massimo comfort in ogni stagione.
Inoltre, hai la possibilità di personalizzare le finiture a tuo gusto, rendendo questa casa veramente unica e tua.

Non lasciarti sfuggire questa occasione unica di acquistare un appartamento che combina modernità, eleganza e un'eccellente qualità della vita. Contattaci per maggiori informazioni e prenota la tua visita! La tua nuova casa ti aspetta!

EURO 340.000,00

Caratteristiche

Piano T
Ascensore No
Stato Nuovo / In costruzione
Riscaldamento Autonomo, a pavimento

Servizi e accessori

Cancello elettrico Esposizione interna Fibra ottica Impianto tv singolo Infissi esterni in doppio vetro / legno Porta blindata

Posizione

Referente

Castegnato Case Di Binetti Nicole

Storico

Pubblicato 16 Jan 2026
Aggiornato 24 Feb 2026
Sul mercato 40 giorni
ID Annuncio 125869527

Recensioni

Vedi tutte
R

Romeo Giannone

4.7

Se state cercando un’agenzia immobiliare affidabile, vi consiglio di rivolgervi a questa. Ho trovato un team disponibile e professionale che mi ha seguito passo passo nella vendita del mio locale comm...

E

Elia Giannini

4.0

Sono stato molto soddisfatto del risultato: sono riuscito a vendere casa rapidamente e senza stress, grazie alla guida dell’agenzia. Mi hanno seguito passo passo durante le visite, accompagnandomi con...