Vendita Casa indipendente

Casa indipendente

Via Entirate, Bagnacavallo, Ravenna

Prezzo
Ottimo Affare: 76% sotto la media
161
mq
5+
Locali
3
Camere
2
Bagni

Recensisci questo Immobile

Devi essere registrato per lasciare una recensione.

Accedi

Nessuna recensione ancora. Sii il primo!

Descrizione

NUOVA PROPOSTA

IMMOBILE LIBERO

Trattasi di abitazione sita a Bagnacavallo (RA), in Via Entirate.
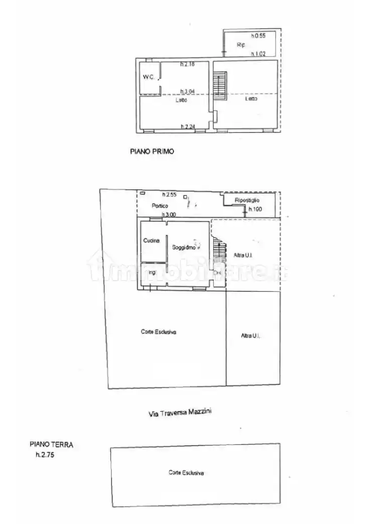
L’unità è costituita da: ingresso, soggiorno, pranzo, cucina, disimpegno ed un bagno al piano terra, mentre al primo piano è composta da disimpegno, tre camere da letto ed un bagno.
L’accesso carrabile all’abitazione avviene direttamente dalla Via Entirate, da un unico cancello carrabile,
transitando dapprima sulla corte esclusiva.
Questo immobile offre spazi funzionali e accoglienti per godere appieno di una vita confortevole e rilassante.

Per te la possibilità di avere un preventivo per il mutuo a condizioni vantaggiose con i nostri partner.
Ulteriori dettagli, foto degli interni, planimetrie e altre info, se disponibili, saranno consultabili previo appuntamento nella sede di RAVENNA con ADRIANO che inoltre ti informerà sulle possibilità di aggiudicarti questo affare.
L'immobile pubblicato al momento è sottoposto a procedura di vendita legale; Gescom srl è specializzata nella ricerca e pianificazione di investimenti immobiliari secondo innovative strategie di acquisto. Contattaci subito potrai valutare assieme a un nostro tecnico canali distinti di acquisto dell’immobile, procedura di vendita diretta senza ricorrere all’asta (d.lgs. 149/2022) e ancora stralcio immobiliare. Le informazioni sopra riportate non sostituiscono l'avviso pubblicato dal Tribunale competente ne’ l'integrale gestione da parte del delegato designato. Il testo e le specifiche indicate nella presente pagina sono generate automaticamente attraverso l'utilizzo di software e/o da A. I., Gescom srl invita a verificare le formazioni e i materiali multimediali sui canali ufficiali, declinando fin d'ora ogni responsabilità su eventuali errori o incongruenze.
Gescom Italia srl leader negli stralci immobiliari e nella consulenza tecnico legale, non si occupa di attività di intermediazione imm. di cui alla legge 39/89.
Cl. energ. da verificare.
Le foto pubblicate nel presente annuncio sono indicative e non esaustive della tipologia, qualità, consistenza e indicazione geografica dell'immobile

Caratteristiche

Piano T
Ascensore No
Stato Buono / Abitabile
Riscaldamento Autonomo, a radiatori, alimentato a metano

Servizi e accessori

Cucina Esposizione nord Impianto di allarme Porta blindata

Posizione

Referente

GESCOM

Storico

Pubblicato 23 Jan 2026
Disattivato 18 Mar 2026
Sul mercato 104 giorni
ID Annuncio 126092497

Recensioni

Vedi tutte
I

Ivano Coppola

5.0

Ho comprato una casa al mare e sono davvero felice del risultato. L’agenzia è stata rapida e molto competente nella trattativa, mi ha seguito passo passo e ha fatto tutto con grande professionalità. È...

I

Ivan Prandini

4.7

Durante il processo mi sono sentito molto seguito e sicuro, grazie alla professionalità dell’agenzia. Ho trovato facilmente il magazzino perfetto per la mia azienda tra un’ampia scelta di immobili dis...