Indietro
Vendita Casa indipendente

Casa indipendente

Via della Salute, 4, Bologna, Bologna

Prezzo
Ottimo Affare: 51% sotto la media
270
mq
5
Locali
3
Camere
3
Bagni

Recensisci questo Immobile

Devi essere registrato per lasciare una recensione.

Accedi

Nessuna recensione ancora. Sii il primo!

Descrizione

Rif. BP121 - BORGO PANIGALE
In contesto tranquillo e riservato, proponiamo villetta bifamigliare libera su 3 lati, in complesso immobiliare composto da 4 distinte unità, ideale per più nuclei familiari, oppure come investimento.
Con giardino esclusivo di 500 mq, triplo accesso, caratterizzata da ambienti luminosi e ben distribuiti, con spazi esterni privati.
Soluzione perfetta per famiglie numerose o per vivere e affittare una porzione.
La proprietà è così composta:
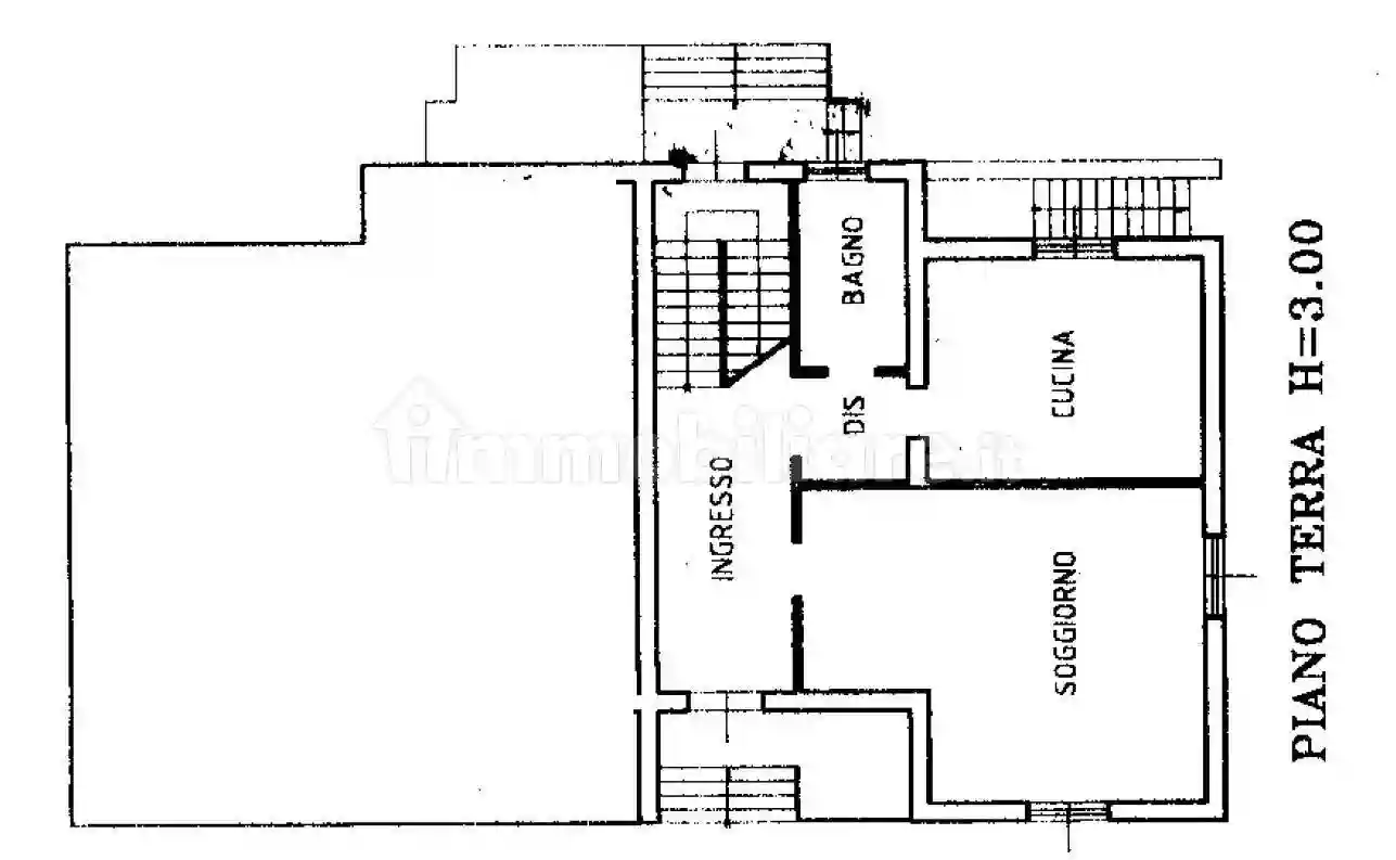
PIANO TERRA: Ingresso arredabile, ampio salone, cucina abitabile, disimpegno e bagno.
PIANO 1: Disimpegno notte, 3 ampie camere da letto matrimoniali, ripostiglio, bagno.
TAVERNA: Ampio locale accessorio ad uso taverna con camino, bagno e cantina.
L'immobile si presenta in buono stato conservativo, ampiamente personalizzabile nelle finiture e nella redistribuzione degli spazi, attualmente sono presenti finiture come infissi legno/doppio vetro con cancellino di sicurezza, porte interne in legno, pavimento in marmo su tutta la superficie calpestabile fatta eccezione per i bagni in cui è presente una pavimentazione in ceramica e per le camere che presentano invece una pavimentazione in parquet, porta blindata e split aria condizionata freddo/caldo.
La tripla esposizione rende l'immobile estremamente luminoso con piacevoli affacci sul verde, silenziosi e sul giardino alberato.
Completa la proprietà un accesso carrabile privato, possibilità di ampliare la zona verde e aggiungere una recinzione a delimitare l'area di proprietà esclusiva.

LIBERO A ROGITO!!

La Geolocalizzazione dell’immobile potrebbe essere approssimativa.
Felsina Real Estate Tel. 051 9988145 - 3923095539

Caratteristiche

Ascensore No
Stato Buono / Abitabile
Riscaldamento Autonomo, a radiatori, alimentato a gas

Servizi e accessori

Caminetto Esposizione doppia Fibra ottica Impianto tv centralizzato Infissi esterni in doppio vetro / legno Porta blindata Taverna

Posizione

Zona: Borgo Panigale (Aeroporto, Borgo Panigale)

Referente

Felsina Real Estate - Saffi

Storico

Pubblicato 23 Jan 2026
Disattivato 01 May 2026
Sul mercato 118 giorni
ID Annuncio 126132617

Recensioni

Vedi tutte
V

Vito Sartori

5.0

Un sentito ringraziamento per avermi seguito con grande attenzione e professionalità durante la ricerca del mio nuovo appartamento. Ho apprezzato molto la capacità di ascolto e la pazienza dimostrata,...

G

Giorgio Gargano

5.0

Grazie di cuore per l’aiuto! Mi sono trovato benissimo, hanno seguito tutto passo passo e mi hanno aiutato anche nella gestione del mutuo. Avevo bisogno di un terreno adatto e avevano una vasta scelta...

L

Livio Capra

4.7

Durante tutto il percorso mi sono sentito molto seguito e supportato, grazie all'accompagnamento costante nelle visite e alla loro affidabilità. È stato un piacere avere a che fare con un team così pr...

V

Valerio Cavalli

4.7

Durante il processo mi sono sentito davvero supportato e ascoltato, come se fossi in buone mani dall'inizio alla fine. L’attenzione alle mie esigenze e la cortesia dello staff mi hanno fatto sentire m...

F

Fulvio Fabbri

4.0

Dopo alcune esperienze passate con agenzie che lasciavano a desiderare, questa volta ho trovato un team che ha fatto davvero la differenza. Sono stato chiaro e preciso sin dall'inizio, e ogni appuntam...