Vendita Villa Luxury

Villa

Via San Martino e Solferino, Ponti sul Mincio, Mantova

Prezzo
210
mq
4
Locali
3
Camere
2
Bagni

Recensisci questo Immobile

Devi essere registrato per lasciare una recensione.

Accedi

Nessuna recensione ancora. Sii il primo!

Descrizione

Ci troviamo a Ponti sul Mincio, tranquilla località dotata dei principali servizi e a pochi minuti da Peschiera del Garda.
La villa bifamiliare è stata progettata per offrire comodità, materiali di ultima generazione e risparmio energetico in una zona comoda per gli spostamenti ma non esposta ad eccessivo traffico.
Le dotazioni da capitolato, visionabile in ufficio, prevedono riscaldamento a pavimento, pompa di calore, aria condizionata, isolamento termico e acustico e adeguata protezione termica della copertura, che sarà realizzata a doppia falda. Queste caratteristiche e la qualità degli infissi permetteranno di ottenere una classificazione energetica di alto livello.
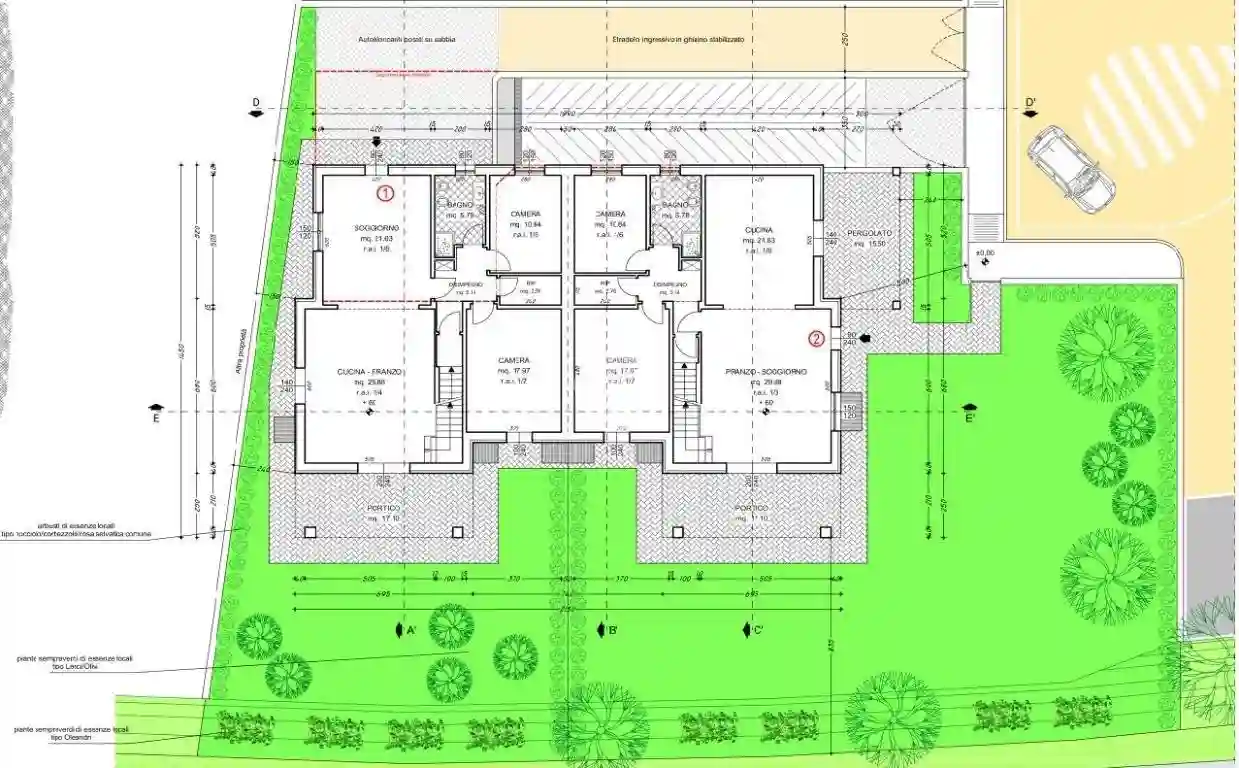
L’abitazione sarà sviluppata su due livelli oltre ad interrato, ed arricchita da un giardino privato con porticato.
Al piano terra sono previsti un ampio soggiorno, una cucina, due camere da letto, un ripostiglio e il bagno.
Al piano superiore, mansardato, sarà possibile ricavare due camere grandi ed un ulteriore bagno, data l’ampia metratura a disposizione.
Il piano interrato permetterà di realizzare un garage doppio, una cantina e una lavanderia, oltre al locale tecnico.
La consegna è prevista per la fine del 2026.
Questa soluzione immobiliare rappresenta un’ottima opportunità di investimento per vivere una prima casa di generose dimensioni ed a basso consumo, o in alternativa per avere una seconda casa a pochi minuti dal Lago di Garda e dalle Colline Moreniche, in una zona tranquilla e servita.

Caratteristiche

Piano T
Ascensore No
Stato Nuovo / In costruzione
Riscaldamento Autonomo, a pavimento, alimentato a metano

Servizi e accessori

Cancello elettrico Impianto tv singolo Infissi esterni in doppio vetro / legno Porta blindata Taverna VideoCitofono

Posizione

Referente

Affiliato Tecnocasa: GARDA DOMUS SRL

Storico

Pubblicato 24 Feb 2026
Aggiornato 29 May 2026
Sul mercato 95 giorni
ID Annuncio 126396731

Recensioni

Vedi tutte
B

Bianca Cavaliere

5.0

Ho trovato la casa ideale vicino ai miei genitori anziani grazie a un'agenzia molto efficiente e professionale. La gestione burocratica è stata fluida e mi sono sentita seguita passo dopo passo, con r...

C

Chiara Rosati

4.3

Ricordo ancora il momento in cui ho trovato finalmente la casa dei miei sogni dopo anni di affitto: un’esperienza serena e senza stress, grazie alla serietà e alla trasparenza dell’agenzia. Sono stata...

B

Beatrice Perrone

4.3

Le mie precedenti esperienze con agenzie immobiliari erano state spesso impersonali e rapide, invece questa volta ho trovato un approccio diverso: mi sono sentita ascoltata e rispettata in ogni fase d...