Vendita Villa Luxury

Villa

Via Egidio Forcellini,, 4, Padova, Padova

650.000 €
320
mq
5+
Locali
5
Camere
3
Bagni

Recensisci questo Immobile

Devi essere registrato per lasciare una recensione.

Accedi

Nessuna recensione ancora. Sii il primo!

Descrizione

ZONA OSPEDALI - COMPLETAMENTE DA RISTRUTTURARE
Casa singola mq 300 con giardino – compreso nel prezzo progetto approvato e oneri pagati si iniziano subito i lavori!

In una delle vie residenziali più ricercate della zona Ospedali, a pochi metri dal complesso ospedaliero in zona via Gustavo Modena, proponiamo interessante casa singola stile Liberty, completamente indipendente, con giardino privato su quattro lati.

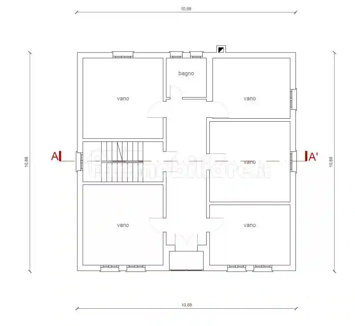
SVILUPPO SU QUATTRO LIVELLI: Piano Interrato; Piano Rialzato; Piano Primo; Piano Sottotetto (vedi lo stato di fatto nei disegni allegati) In ufficio è disponibile anche il progetto approvato.
L’immobile, da ristrutturare integralmente, rappresenta una soluzione ideale per chi desidera realizzare una villa unifamiliare di prestigio in posizione strategica, riservata e al tempo stesso comoda a tutti i servizi.
È incluso nel prezzo un progetto già approvato, con oneri comunali interamente pagati, per la realizzazione di una villa singola sviluppata su tre piani, dotata di ascensore interno: un grande vantaggio in termini di tempi, certezze e pianificazione dell’investimento.
Libera subito.
Soluzione adatta sia a privati esigenti sia a investitori alla ricerca di un immobile con elevato potenziale di valorizzazione.

Fermo restando la zona indicata, l'indirizzo evidenziato è da ritenersi indicativo.
Per ulteriori informazioni e chiarimenti contattare la nostra agenzia al numero telefonico 0498751570 o inviate una e-mail: al seguente indirizzo di posta elettronica: info@immobiliareobizzi.it
Il nostro ufficio è a Padova in Riviera Mussato 39
In fase di trattativa, rilasciamo idonea Certificazione scritta, attestante le ispezioni sulla Proprietà e la regolarità urbanistico/catastale dell'immobile.

Caratteristiche

Ascensore No
Stato Da ristrutturare
Riscaldamento Autonomo, alimentato a gas

Servizi e accessori

Esposizione interna

Posizione

Zona: Forcellini (Forcellini, San Camillo, Nazareth, Terranegra)

Referente

Immobiliare Obizzi Padova

Storico

Pubblicato 24 Feb 2026
Aggiornato 25 Feb 2026
Sul mercato 1 giorni
ID Annuncio 126479203

Recensioni

Vedi tutte
G

Gennaro Capra

4.7

Ho trovato la seconda casa al mare perfetta grazie a questa agenzia, che conosce davvero bene il mercato locale. Sono stato molto soddisfatto della loro onestà nelle valutazioni e dell’assistenza cont...

V

Vittorio Marconi

4.7

Ricordo ancora il momento in cui abbiamo firmato il contratto, tutto è stato semplice e senza stress grazie alla loro conoscenza del mercato locale. Sono stato molto contento della professionalità e d...

A

Angelo Maresca

4.7

Come in passato, ho trovato un'agenzia che sa ascoltare davvero le esigenze del cliente. Mi sono trovato bene nell’ricerca dell’ufficio, grazie a un'assistenza attenta e professionale che è andata olt...

G

Giacomo Franca

4.3

Voglio ringraziare di cuore l’agenzia per avermi aiutato in un momento difficile. Ho trovato grande comprensione e pazienza, e sono stato seguito passo dopo passo con tanta attenzione alle mie esigenz...

E

Enzo Marchini

4.3

Grazie di cuore a chi mi ha seguito in questo percorso così importante! Sono stato molto colpito dalla pazienza e dalla puntualità negli appuntamenti, che hanno reso tutto più semplice e rassicurante....