Vendita Villa

Villa

Via Trieste, 73021 Calimera LE, Italia, Calimera, Lecce

Prezzo
Ottimo Affare: 80% sotto la media
119
mq
5
Locali
5
Camere
1
Bagni

Recensisci questo Immobile

Devi essere registrato per lasciare una recensione.

Accedi

Nessuna recensione ancora. Sii il primo!

Descrizione

Asta appartamento a Calimera (LE) [SY603873]
Via Trieste, 73021 Calimera LE, Italia
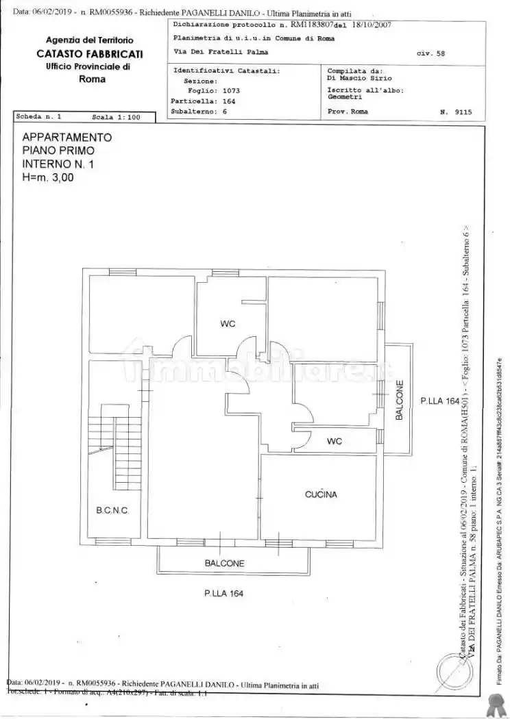
Appartamento con scoperto retrostante sito in CALIMERA (LE), alla via Trieste, della superficie di 119 mq. Secondo perizia, salvo errori od omissioni, l'immobile risulta LIBERO e stimato per un valore di euro 25.500,00.
L’appartamento, edificato nella prima metà del secolo scorso, di mq. 70,00 coperti, si sviluppa esclusivamente a piano terra, è tuttora inutilizzato ed è costituito da vani, posti in sequenza, già adibiti ad ingresso – soggiorno, a camera da letto ed a tinello – pranzo, con angolo cottura, e da un bagno, ed è dotato di scoperto posteriore, di sua pertinenza esclusiva, ove si accede dal vano tinello – pranzo, retrostante il quale è un vano ripostiglio. Il presente annuncio è un estratto meramente indicativo. Alcune immagini potrebbero essere dimostrative. Le informazioni potrebbero contenere degli errori dovuti ai software utilizzati. La procedura potrebbe essere sospesa od estinta nei termini di legge. L’aggiornamento potrebbe non essere immediato. Eventuali segnalazioni in merito saranno evase con priorità alta e comunicate all’ufficio amministrativo o al dipartimento legale. I dati riportati vanno sempre verificati con gli atti ufficiali, attraverso gli organi e gli ausiliari della procedura a ciò preposti istituzionalmente. Si declina ogni tipo di responsabilità per un uso diverso e/o improprio delle presenti note e dei relativi dati in esse contenuti. Centro Aste è una società leader nazionale nel settore della consulenza in aste giudiziarie (pre-aste, saldi e stralci ed NPL), estranea agli organi della procedura e pertanto priva di qualsivoglia conflitto di interesse. Per maggiori informazioni utilizzare i contatti indicati. La risposta avverrà nelle ore ufficio, festivi esclusi.
Data Asta: 27-04-2026
Codice Riferimento: SY603873

Caratteristiche

Ascensore No
Stato Buono / Abitabile
Riscaldamento Autonomo, a radiatori, alimentato a metano

Servizi e accessori

Impianto tv singolo

Posizione

Referente

Centro Aste Lecce

Storico

Pubblicato 24 Feb 2026
Disattivato 30 Apr 2026
Sul mercato 92 giorni
ID Annuncio 126572815

Recensioni

Vedi tutte
M

Mario Magnani

5.0

Ho appena comprato la mia prima casa a Lecce grazie a un team molto disponibile e cortese. La gestione della trattativa è stata fluida e senza stress, grazie alla loro professionalità e attenzione ai...

R

Rocco Costa

4.7

Durante il mio percorso di acquisto della seconda casa al mare, mi sono sentito subito seguito da professionisti affidabili e disponibili, che hanno reso tutto il processo molto più semplice e rassicu...