Vendita Progetto

Progetto

Piazza Santa Toscana, Zevio, Verona

150.000 €
Buon Prezzo: 16% sotto la media
105
mq
3-5
Locali

Recensisci questo Immobile

Devi essere registrato per lasciare una recensione.

Accedi

Nessuna recensione ancora. Sii il primo!

Descrizione

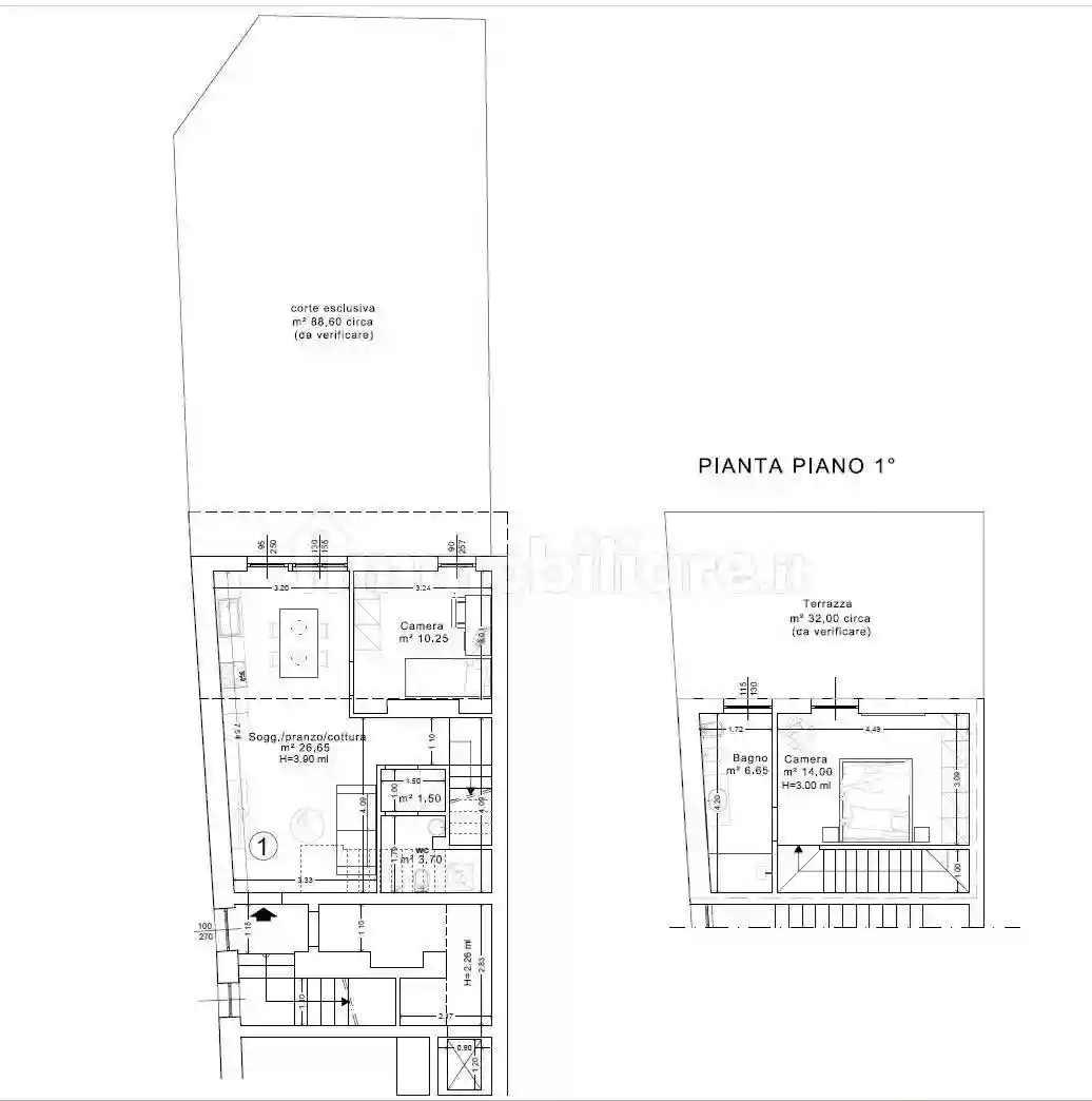
disponibili 3 appartamenti --- da ristrutturare
-trilocale con giardino e terrazzo
-trilo/quadrilocale con balconcino e garage
-attico con garage

Caratteristiche

Stato Nuovo / In costruzione

Posizione

Referente

MB Immobiliare

Storico

Pubblicato 24 Feb 2026
Aggiornato 25 Feb 2026
Sul mercato 2 giorni
ID Annuncio 126755847

Recensioni

Vedi tutte
D

Donatella Calò

5.0

Ho trovato il terreno perfetto per costruire il mio sogno e sono stata davvero felice dell'accompagnamento che ho ricevuto. La cortesia e la professionalità durante le visite mi hanno fatta sentire se...

S

Simona Cavaliere

4.7

Ricordo ancora il momento in cui ho visto l'appartamento che cercavo, ed è stato subito entusiasmo! La gestione della trattativa è stata super professionale e senza stress, grazie alla chiarezza nelle...

S

Silvia Sacco

4.7

Ricordo ancora la serenità che ho provato quando ho trovato l’appartamento perfetto per i miei figli a Buttapietra. La loro assistenza durante tutta la trattativa è stata davvero preziosa, aiutandomi...

C

Cinzia Alfano

4.0

Le mie precedenti esperienze con agenzie immobiliari erano state piuttosto stressanti, ma questa volta è stata tutta un’altra storia. Mi sono sentita seguita e aiutata passo dopo passo, e la gestione...