Vendita Appartamento

Appartamento

Campo Sant'Anzolo, Venezia, Venezia

1.390.000 €
Buon Prezzo: 20% sotto la media
290
mq
5+
Locali
5
Camere
3+
Bagni

Recensisci questo Immobile

Devi essere registrato per lasciare una recensione.

Accedi

Nessuna recensione ancora. Sii il primo!

Descrizione

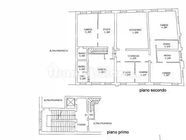
STUDIO IMMOBILIARE QUADRIFOGLIO PROPONE IN ESCLUSIVA - VENEZIA - SAN MARCO - Ad un Passo da Campo Sant'Angelo , all'interno di uno storico e nominato Palazzo Quattrocentesco , Palazzo lontano dai Flussi Turistici e dotato di Maestoso ingresso con colonne in marmo e tipica porta d'acqua per imbarcazioni oltre che di ASCENSORE . La Proprietà di c.a 290mq , ristrutturata con raffinatezza presenta un comodo ingresso , un ampio soggiorno con vista aperta su Giardini e Tetti Veneziani , cucina abitabile con annessa lavanderia , Studio e Quattro ampie camere da letto tutte con bagno privato . Immobile molto luminoso e di gran prestigio , posizione incantevole ad un passo da Campo S.Angelo - L'immobile si presta perfettamente come dimora Veneziana sia come Abitazione / Ufficio e Depandance per ospiti , sia come soluzione ricettiva data la divisione degli ambienti al suo interno. rara Opportunità. Ulteriori informazioni e foto in Ufficio

STUDIO IMMOBILIARE QUADRIFOGLIO decanta una esperienza 40ennale nell'ambito immobiliare veneziano, un'azienda specializzata nell'intermediazione di immobili di prestigio a Venezia centro storico e terraferma. Nata come società esclusivamente rivolta al settore residenziale nel corso dei suoi anni ha maturato al meglio le proprie competenze arrivando ad un completo sviluppo nel settore immobiliare. Professionalità, chiarezza e trasparenza sono state fino ad oggi per noi un trinomio perfetto, indispensabili per esercitare al meglio la nostra attività. Per qualsiasi informazione e altre nostre proposte immobiliari, contatteci al n. esposto

Caratteristiche

Piano 2
Ascensore Si
Stato Ottimo / Ristrutturato
Riscaldamento Autonomo, a radiatori, alimentato a gas

Servizi e accessori

Armadio a muro Caminetto Cancello elettrico Esposizione esterna Fibra ottica Idromassaggio Impianto tv centralizzato Infissi esterni in vetro / legno Porta blindata

Posizione

Zona: San Marco (San Marco, Rialto)

Referente

Studio Immobiliare Quadrifoglio

Storico

Pubblicato 24 Feb 2026
Aggiornato 25 Feb 2026
Sul mercato 2 giorni
ID Annuncio 126802819

Recensioni

Vedi tutte
S

Sofia Tagliaferri

4.3

Appena ho incontrato questa agenzia, sono rimasta colpita dalla loro attenzione ai dettagli e dalla calma con cui hanno gestito ogni fase della vendita. Sono stata seguita con grande professionalità e...