Vendita Appartamento

Appartamento

Gavorrano, Grosseto

Prezzo
69
mq
3
Locali
2
Camere
1
Bagni

Recensisci questo Immobile

Devi essere registrato per lasciare una recensione.

Accedi

Nessuna recensione ancora. Sii il primo!

Descrizione

Bagno di Gavorrano
Nostra Esclusiva
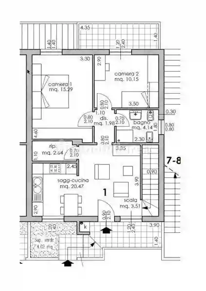
In posizione centrale, proponiamo in vendita un bellissimo appartamento posto al piano terra e seminterrato, inserito in un edificio appena ultimato, con ottime rifiniture. L'immobile ha l'ingresso indipendente attraverso un balcone ed è composto da: soggiorno con zona cottura, due camere da letto e bagno. Attraverso una scala tradizionale, dalla zona giorno si accede all'ampio garage di mq 61. L'immobile è dotato di autoclave, condizionamento zona notte e zona giorno e predisposizione pannelli solari. La vendita viene effettuata dal costruttore.
Eu. 195.000

IMMOBILIARE VERDEMARE TEL.0566 845760 Classe Energetica: B

Caratteristiche

Piano S3
Ascensore No
Stato Nuovo / In costruzione
Riscaldamento Autonomo

Posizione

Referente

Immobiliare VerdeMare

Storico

Pubblicato 26 Feb 2026
Disattivato 14 Mar 2026
Sul mercato 89 giorni
ID Annuncio 126982033