Vendita Villa

Villa

Viale Del Tirreno, 80, Pisa, Pisa

Prezzo
Ottimo Affare: 26% sotto la media
150
mq
5
Locali
5
Camere
1
Bagni

Recensisci questo Immobile

Devi essere registrato per lasciare una recensione.

Accedi

Nessuna recensione ancora. Sii il primo!

Descrizione

Vivere la storia, investire nel futuro. Situata all'interno della prestigiosa Ex Colonia Rosa Maltoni, un gioiello di architettura storica direttamente sul mare, proponiamo una splendida villetta indipendente di 107 mq calpestabili con 500 mq di giardino privato.
�️ UN CANTIERE DI PRESTIGIO GIÀ AVVIATO
Non è una promessa, è realtà: il condominio ha già stanziato e iniziato lavori per 2 MILIONI DI EURO.
• Restauro totale: Facciate, recinzioni, vialetti e l'immenso parco di 35.000 mq.
• Nuova Piscina: Rifacimento completo dell'area solarium e vasca.
• Affidabilità: Lavori affidati alla rinomata ditta Decoarte di Ponsacco, eccellenza nel settore delle ristrutturazioni.
• Risultato: Chi acquista oggi, si ritroverà a breve in un complesso di lusso completamente rigenerato.
� GLI SPAZI DELLA VILLETTA
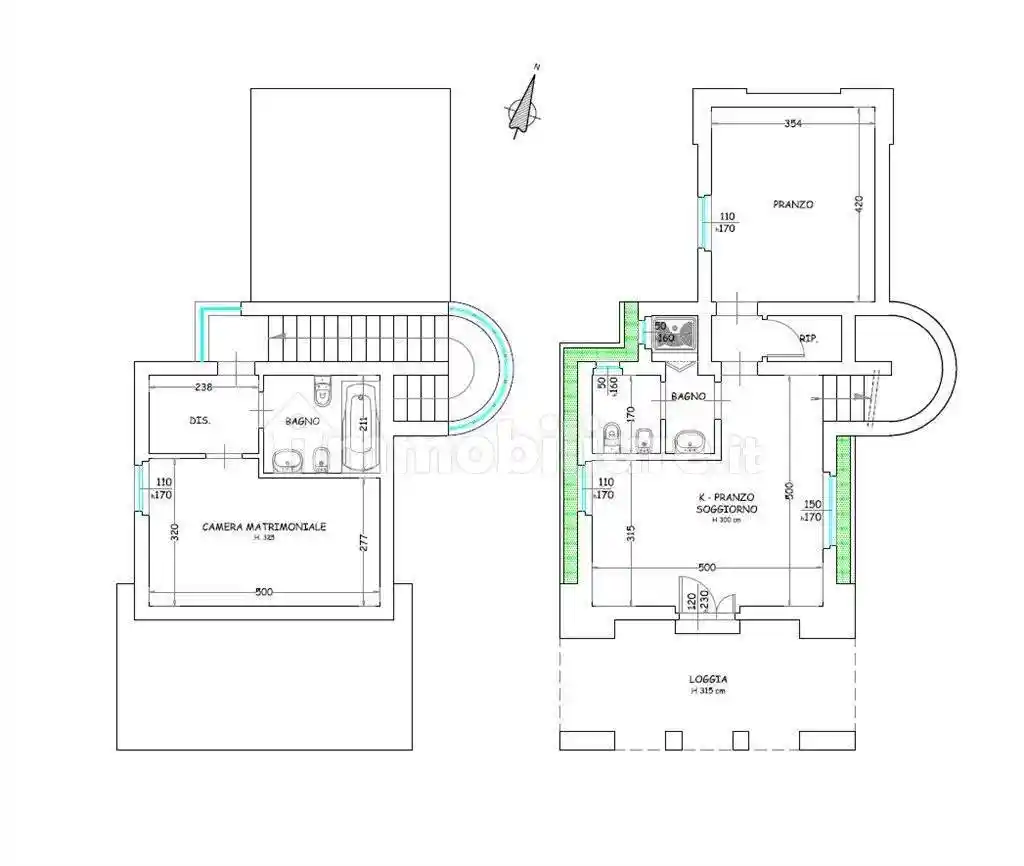
• Porticato: La zona living si affaccia su un ampio porticato di 20 mq circa, ideale per pranzi e ceneall’aperto.
• Piano Terra: Ingresso in soggiorno Open Space con angolo cottura, disimpegno, bagno con finestra, doccia con finestra, ripostiglio sottoscala con attacco per lavatrice e soggiorno da usare anche come terza camera matrimoniale.
• Primo Piano: Una scala interna di design, illuminata da una grande vetrata zenitale, conduce alla zona notte con camera matrimoniale e cameretta (in fase di realizzazione).
• Esterno: giardino esclusivo di 500 mq, un'oasi di privacy introvabile in contesti così vicini al mare.
� CARATTERISTICHE ESCLUSIVE
• DESTINAZIONE RESIDENZIALE: (No turistico-alberghiero). Massima libertà d'uso e agevolazioni fiscali.
• IL PARCO: 35.000 metri quadri di verde condominiale recintato e protetto.
• STORIA: Il fascino di un immobile d'epoca tutelato, simbolo del litorale toscano.
Come sopra detto, vicino alla piscina condominiale (in fase di ristrutturazione situala lato mare) attraverso un cancellino privato si può accedere direttamente alla spiaggia. Nelle immediate adiacenze della colonia troviamo tutti i servizi utili tra cui supermercato, bar, edicola, negozi. Il centro di Livorno è a circa 10’ di auto ecc. Ottima occasione per chi ama il mare e la tranquillità.
Richiesta: € 355.000,00.
Non lasciatevi sfuggire questa occasione unica!
Rif. PC 253

HAI UNA CASA PIGNORATA? POSSIAMO AIUTARTI! CHIAMACI.

ACQUISTARE ANCHE ALLE ASTE SENZA RISCHI.
MATILDE Immobiliare, da oltre 30 anni sul mercato immobiliare, con studio tecnico/giuridico guidato da professionisti con esperienza trentennale, gestiamo tutte le fasi di consulenza finalizzata all'acquisto di immobili sia alle aste giudiziarie che da privati. L'assistenza tecnico legale e' gratuita in tutte le fasi, dalla visione dell'immobili fino all'acquisto.
Seguiamo su incarico l'acquisto a saldo e stralcio e l'acquisto del credito immobiliare.
Per qualsiasi tipo di informazione, chiamateci per un appuntamento:
MATILDE S. R. L., cell
Via primo maggio 118, 56025 Pontedera (PI).
Le nostre sedi: Pontedera (PI) - Santa Maria a Monte (PI), Montecatini (FI), Pietrasanta (LU).

Caratteristiche

Servizi e accessori

Piscina

Referente

Matilde s.r.l.

Storico

Pubblicato 26 Feb 2026
Disattivato 23 Apr 2026
Sul mercato 94 giorni
ID Annuncio 127025495