Vendita Appartamento

Appartamento

Via Buenos Aires, 96, Torino, Torino

Prezzo
102
mq
4
Locali
2
Camere
2
Bagni

Recensisci questo Immobile

Devi essere registrato per lasciare una recensione.

Accedi

Nessuna recensione ancora. Sii il primo!

Descrizione

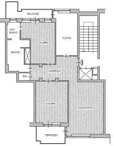
In Via Buenos Aires 96, in posizione strategica tra corso Cosenza, corso Orbassano e via Gorizia, proponiamo in vendita un raffinato appartamento panoramico situato al decino e ultimo piano di uno stabile signorile con servizio di portineria. L’immobile, si distingue per una distribuzione degli spazi studiata con grande attenzione al comfort e all’estetica. L’ingresso living conduce a un ampio salone impreziosito da pavimentazione in parquet, una cucina abitabile, due camere da letto e doppi servizi di cui uno con accesso diretto dalla camera da letto. Tra le dotazioni di pregio troviamo, tapparelle elettriche, infissi recenti con doppi vetri, aria condizionata, videocitofono e una splendida vista aperta che valorizza ulteriormente l’abitazione (vista Basilica di Superga). La posizione è uno dei grandi punti di forza: a pochi passi dalla commerciale Via Tripoli, comoda a piste ciclabili, scuole e servizi di ogni genere tra i quali l'ospedale San Luigi. In breve tempo si raggiungono il Politecnico di Torino (15 minuti in tram), il centro commerciale Le Gru (10 minuti in auto), l’Inalpi Arena e la Piazza d'Armi. Rapidi anche i collegamenti con autostrade e tangenziali. Da segnalare inoltre la vicinanza alla futura fermata metro “Pitagora”, prevista nel progetto della Metro 2 Torino, che renderà la zona ancora più valorizzata.
L'alloggio è dotato di una comoda cantina a forma regolare nel piano interrato. E' possibile a parte acquisire BOX AUTO.
Una soluzione abitativa di grande classe, ideale per chi cerca comfort e una posizione eccellente.
Da vedere di persona per apprezzarne appieno qualità e valore.
Contattare 011-9481051

Caratteristiche

Piano S, 10
Ascensore Si
Stato Buono / Abitabile
Riscaldamento Centralizzato, a radiatori, alimentato a teleriscaldamento

Servizi e accessori

Armadio a muro Cancello elettrico Esposizione doppia Impianto tv centralizzato Infissi esterni in doppio vetro / PVC Porta blindata VideoCitofono

Posizione

Zona: Santa Rita (Santa Rita, Mirafiori Nord)

Referente

Immobiliare LA TORRE sas

Storico

Pubblicato 05 Mar 2026
Aggiornato 20 May 2026
Sul mercato 76 giorni
ID Annuncio 127035759

Recensioni

Vedi tutte
L

Luciano Quaranta

4.7

Dopo alcune esperienze con agenzie deluse, posso dire che questa è stata decisamente diversa: hanno un’ottima conoscenza del mercato locale e mi hanno seguito passo passo senza stress. Sono stato molt...

M

Massimo Lucchini

4.0

Ricordo ancora quando sono arrivato all’appuntamento: puntualità e attenzione alle mie esigenze, niente sorprese. Sono stato seguito con professionalità e competenza in ogni fase, trovando subito il m...