Vendita Appartamento

Appartamento

via Latina, 1, Alatri, Frosinone

Prezzo
58
mq
3
Locali
1
Camere
1
Bagni

Recensisci questo Immobile

Devi essere registrato per lasciare una recensione.

Accedi

Nessuna recensione ancora. Sii il primo!

Descrizione

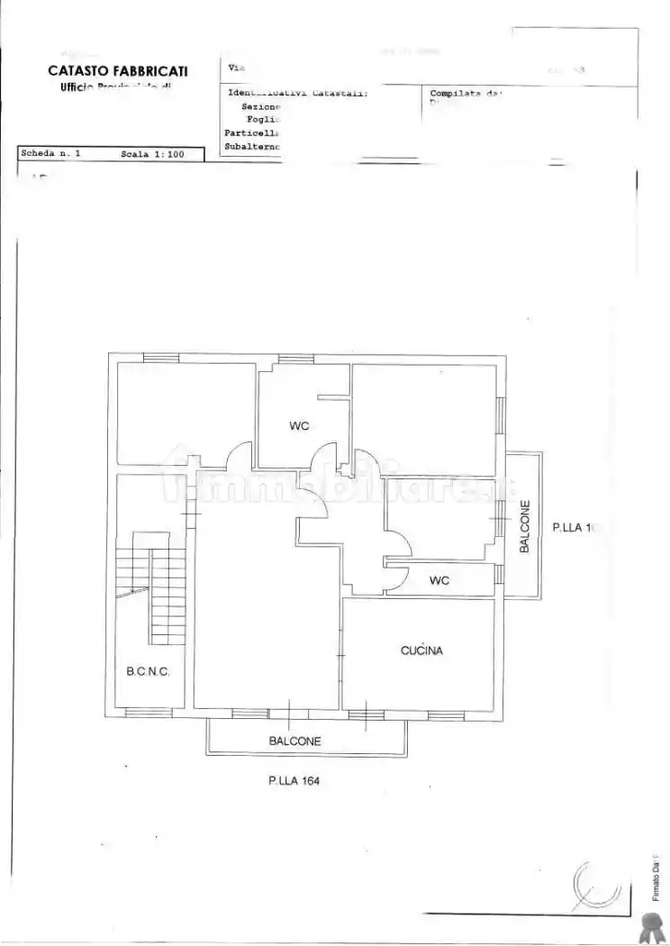
In elegante palazzina di recente costruzione situata nel rinomato Parco degli Ulivi, nel cuore di Tecchiena (Alatri), proponiamo in vendita appartamento al primo piano in Classe Energetica A, ideale per chi cerca comfort, efficienza e tranquillità.

✨ Caratteristiche principali:

Primo piano in stabile moderno e ben rifinito

Zona giorno luminosa

️ Camere spaziose e ben distribuite

Bagno/i rifiniti con materiali di qualità

Contesto residenziale tranquillo e riservato

Alta efficienza energetica (Classe A)

Cantina di proprietà

Garage privato

L’immobile si trova in una zona tranquilla ma perfettamente servita, con supermercati, scuole, farmacie, attività commerciali e servizi facilmente raggiungibili anche a piedi.

Soluzione ideale per famiglie, giovani coppie o per chi desidera un’abitazione moderna in un contesto residenziale curato.

Per maggiori informazioni o per fissare una visita, non esitare a contattarci.

Caratteristiche

Piano 1
Ascensore Si
Stato Nuovo / In costruzione
Riscaldamento Autonomo, a pavimento, alimentato a metano

Servizi e accessori

Fibra ottica Infissi esterni in doppio vetro / legno Porta blindata

Posizione

Referente

Casaitalia srl

Storico

Pubblicato 03 Mar 2026
Disattivato 20 Apr 2026
Sul mercato 79 giorni
ID Annuncio 127160109

Recensioni

Vedi tutte
O

Oreste Cortese

5.0

L'attenzione ai dettagli e la pazienza con cui sono stato seguito mi hanno colpito molto. Ho trovato un ufficio adatto alla mia attività grazie alla loro disponibilità e professionalità, che hanno res...

N

Nino Bianchi

5.0

Appena sono entrato in agenzia, sono stato colpito dalla competenza e dalla conoscenza approfondita delle normative che avevano. Mi hanno seguito passo passo durante tutta la trattativa, riuscendo a g...

G

Gianni Guerra

5.0

Appena ho incontrato questa agenzia, sono stato colpito dalla cura con cui hanno verificato ogni dettaglio della documentazione, dimostrando grande professionalità. Mi sono trovato subito a mio agio g...

G

Gianmarco Colantuono

4.7

Grazie di cuore per l’assistenza, hanno dimostrato grande professionalità e una conoscenza approfondita delle normative. Sono stato molto soddisfatto del seguito che mi hanno dato, hanno trovato l’inv...

F

Federico Esposito

4.3

Stavo cercando un appartamento per i miei figli universitari e grazie all’agenzia ho trovato subito quello che faceva al caso nostro. Hanno seguito tutto con molta attenzione ai dettagli e la document...