Vendita Villa

Villa

Contrada Santo Scalone, 72017 Ostuni BR, Italia, Ostuni, Brindisi

Prezzo
Ottimo Affare: 63% sotto la media
450
mq
5+
Locali
12
Camere
2
Bagni

Recensisci questo Immobile

Devi essere registrato per lasciare una recensione.

Accedi

Nessuna recensione ancora. Sii il primo!

Descrizione

Asta appartamento a Ostuni (BR) [SY600716]
Contrada Santo Scalone, 72017 Ostuni BR, Italia
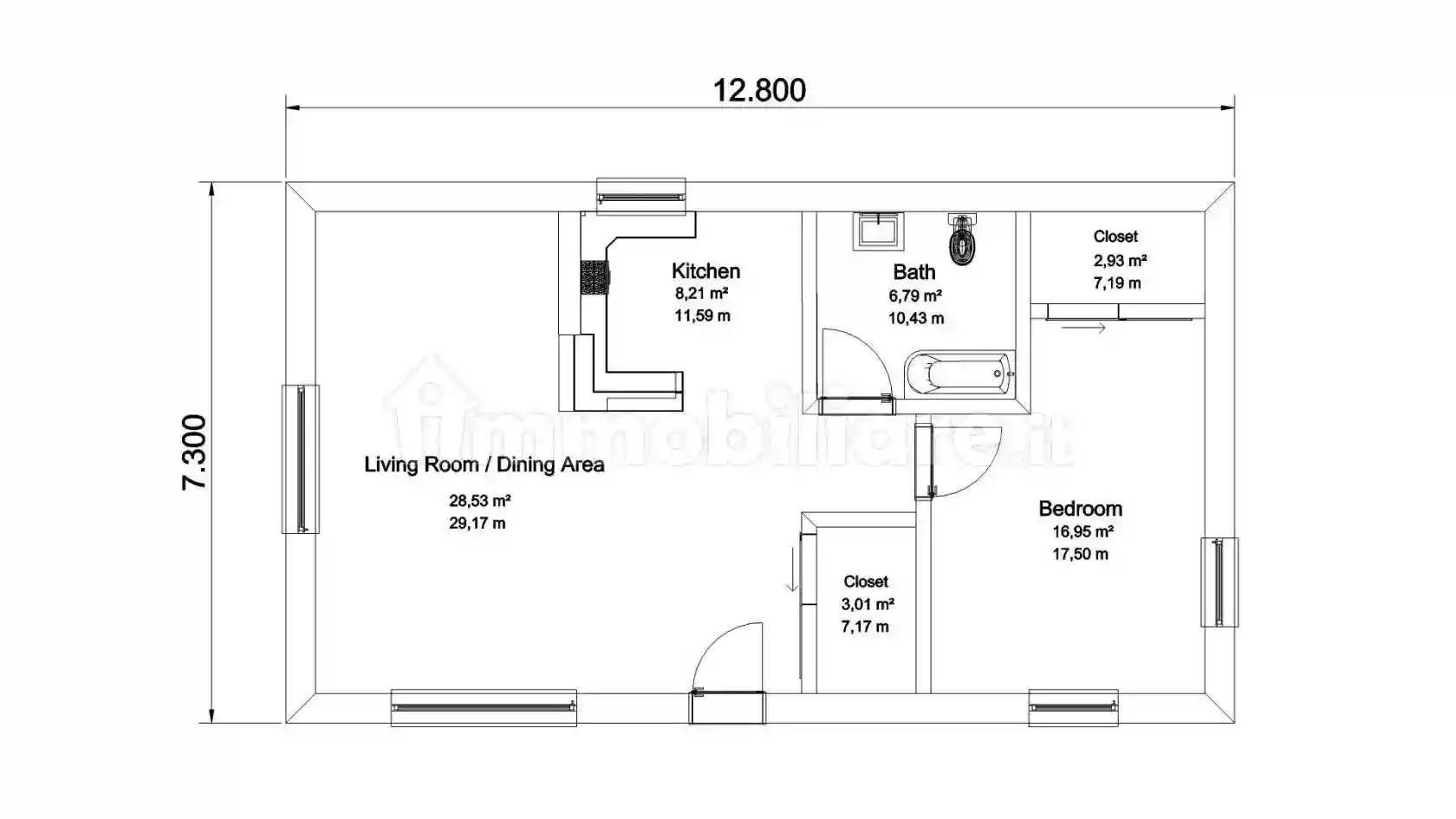
Villa singola a Ostuni Contrada Santo Scalone, della superficie commerciale di 449,88 mq per la quota di 100/100 di piena proprietà (*** dato oscurato ***).L’immobile, ubicato in agro di Ostuni, alla Contrada "Santo Scalone" dista circa km 5,00 dal centro di Ostuni, si sviluppa al piano terra con ampio giardino e grande piscina di pertinenza. L'unità immobiliare oggetto di vendita è posta al piano Terra, ha un'altezza interna di 3,00 ml. Identificazione catastale:•foglio 190 particella 461 sub. 4 (catasto fabbricati), categoria a/7, classe 3, consistenza 3,5 vani, rendita 352,48 euro, indirizzo catastale: contrada "santo scalone" s.n., piano: terra, intestato a *** dato oscurato ***. il bene individuato nel catasto fabbricati al foglio 190 particella 461 sub 4 oggetto di pignoramento, essendo abusivo, dovrà essere demolito e quindi l'area di risulta concorre alla determinazione della superficie commerciale. •foglio 190 particella 462 (catasto terreni), qualità/classe semin. arbor. 3^, superficie 4906, reddito agrario 760,00 c, reddito dominicale 11,40 €, indirizzo catastale: Contrada "Santo Scalone", intestato a *** dato oscurato ***.trattasi di una parte del giardino esteso mq 4.906,00 di pertinenza del fabbricato •foglio 190 particella 465 (catasto terreni), qualità/classe vigneto 3^, superficie 2074, reddito agrario 1.660,00 c, reddito dominicale 19,28 c, indirizzo catastale: contrada "santo scalone", intestato a *** dato oscurato ***trattasi di una parte del giardino di mq 2.074 di pertinenza del fabbricato •foglio 190 particella 467 (catasto terreni), qualità/classe vigneto 3^, superficie 48, reddito agrario 0,38 c, reddito dominicale 0,45 c, indirizzo catastale: contrada "santo scalone", intestato a *** dato oscurato ***trattasi di una parte del giardino di mq 48,00 di pertinenza del fabbricato •foglio 190 particella 461 sub. 1 (catasto fabbricati), categoria A/7, classe 3, consistenza 11,5 vani, rendita 1.158,15 euro, indirizzo catastale: Contrada "Santo Scalone", piano: terra, intestato a *** dato oscurato ***•foglio 190 particella 461 sub. 2 (catasto fabbricati), categoria A/7, classe 6, consistenza 82 mq, rendita 237,16 euro, indirizzo catastale: Contrada "Santo Scalone", piano: S1, intestato a *** dato oscurato ***il bene individuato nel catasto fabbricati al foglio 190 particella 461 sub 2 oggetto di pignoramento, essendo abusivo, dovrà' essere demolito e quindi l'area di risulta concorre alla determinazione della superficie commerciale. L'intero edificio sviluppa l piano, 1 piano fuori terra.

Proposta immobiliare in asta. Info dettagliate in agenzia o telefonicamente.

Possibilita’ di Mutuo al 100%

Per maggiori informazioni puoi contattare il nostro referente di zona

SU QUESTO IMMOBILE E’ POSSIBILE:

- Mutuo al 100%
- Visita Interni
- NO Oneri Notarili
- Nessuna Ipoteca
- Agevolazione Prima Casa

Le foto pubblicate potrebbe

Caratteristiche

Piano T
Ascensore No
Stato Buono / Abitabile
Riscaldamento Autonomo, a radiatori, alimentato a metano

Servizi e accessori

Cancello elettrico Cucina Impianto tv singolo Taverna

Posizione

Referente

Centro Aste Taranto

Storico

Pubblicato 03 Mar 2026
Aggiornato 25 May 2026
Sul mercato 83 giorni
ID Annuncio 127165935

Recensioni

Vedi tutte
G

Gabriella Bellini

4.7

Ho trovato l’ufficio perfetto per la mia attività in poco tempo, grazie alla professionalità e alla flessibilità dell'agenzia negli orari di visita. Sono stata seguita passo passo, con grande attenzio...

G

Gabriele Pasquale

4.7

Appena sono entrato in agenzia, sono stato colpito dalla cura con cui hanno preparato tutta la documentazione, rendendo il processo davvero semplice e trasparente. Mi hanno seguito passo dopo passo, d...