Vendita Appartamento

Appartamento

Via Silvestro Gherardi, 9, Roma, Roma

Prezzo
120
mq
4
Locali
3
Camere
2
Bagni

Recensisci questo Immobile

Devi essere registrato per lasciare una recensione.

Accedi

Nessuna recensione ancora. Sii il primo!

Descrizione

In collaborazione con la società immobiliare M&A Sviluppo Immobiliare, proponiamo la vendita di un appartamento in un edificio in eccellente condizioni di manutenzione generale, con facciate oggetto di rifacimento, ascensore e servizio di guardiania e pulizie delle parti comuni.

Appartamento locato con contratto di locazione in vigore sino al 31/12/2026 - ottima affidabilità del Conduttore per rispetto norme contrattuali e puntualità.

L'appartamento è posto al quinto piano di un fabbricato di nove con ascensore e servizio di portineria e pulizia.

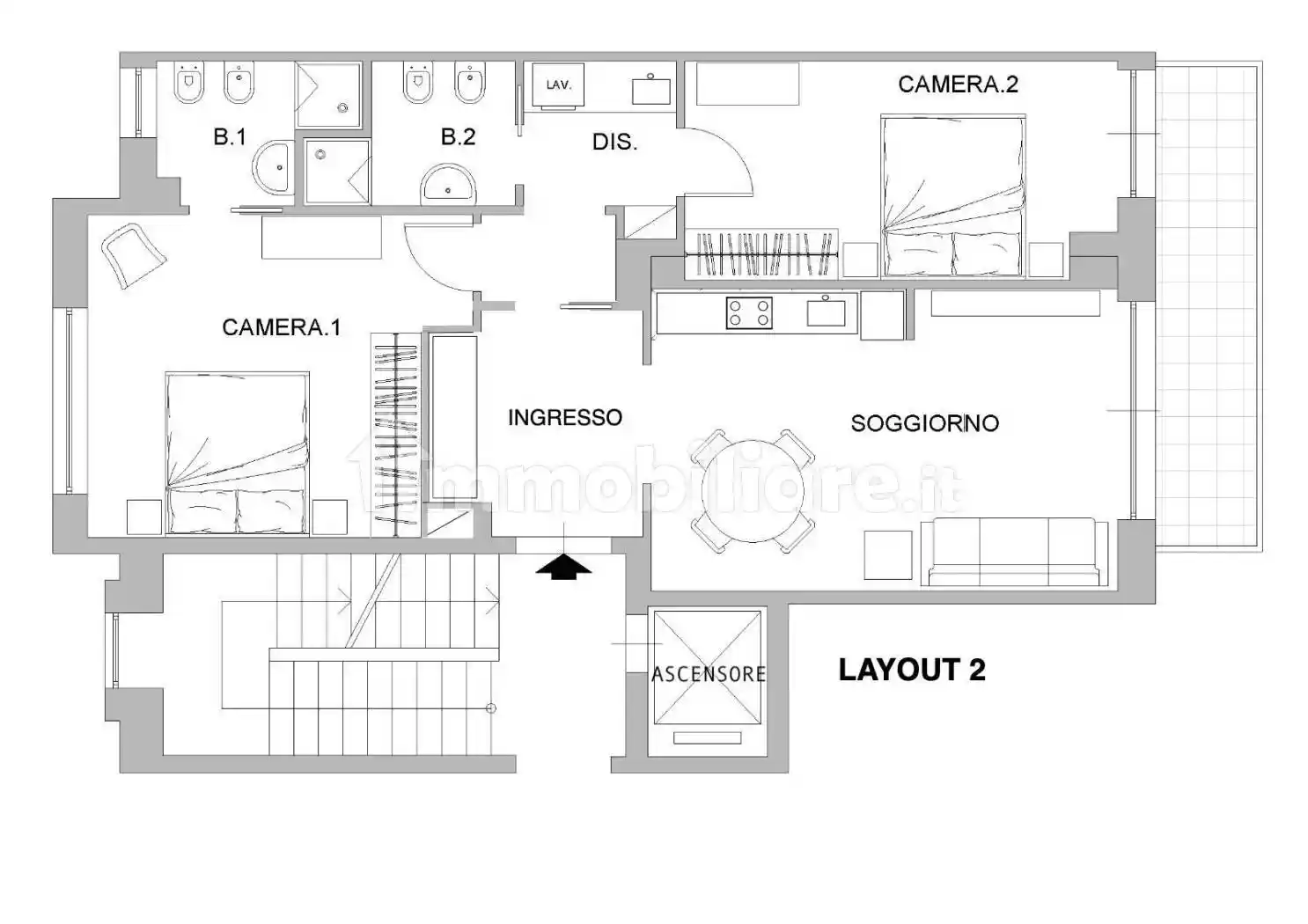
L'immobile si presenta in discfreto stato manutentivo ed è composto da ampio ingresso, soggiorno con affaccio panoramico verso Ponte Marconi - cucina abitabile, tre camere da letto di cui due matrimoniali, due bagni di cui uno en suite, ripostiglio - due balconi: l'uno di servizio verso il cortile interno e l'altro, panoramico, a Sud, per un totale di 11,5 mq.

Finiture: Pavimentazione in marmo; infissi di recente sostituzione in pvc; Ubicato a meno di un km dalla metropolitana B fermata San Paolo e dalle linee bus direzione centro 791-792 e 170.

In prossimità scuole di ogni ordine e grado, supermercati, servizi di ogni genere e parcheggi auto di breve e lunga sosta. Lo stabile si presenta in ottime condizioni con ottime finiture sia interne che esterne.

Non sono previsti lavori di straordinaria manutenzione. Documentazione tecnica-edilizia conforme alle norme di legge. Certificazione energetica regolarmente rilasciata e aggiornata.

Osservatorio Immobiliare s.r.l.
Via Vittoria 8
00187 Roma
osservatorioimmobiliare@osservatorioimmobiliare.com
3427739786

Per ragioni di riservatezza, risultando l'unità immobiliare locata, le fotografie interne non sono pubblicate.

Ubicato a pochi chilometri dal centro città e dalla metropolitana B fermata San Paolo e dalle linee bus direzione centro 791-792 e 170.
In prossimità scuole di ogni ordine e grado, supermercati, servizi di ogni genere e parcheggi auto di breve e lunga sosta.

Caratteristiche

Piano 5
Ascensore Si
Stato Buono / Abitabile
Riscaldamento Centralizzato, a radiatori, alimentato a gas

Servizi e accessori

Armadio a muro Esposizione doppia Impianto tv singolo Infissi esterni in doppio vetro / metallo

Posizione

Zona: Marconi (Marconi, San Paolo)

Referente

Osservatorio Immobiliare S.r.l.

Storico

Pubblicato 05 Mar 2026
Disattivato 09 Mar 2026
Sul mercato 77 giorni
ID Annuncio 127188143

Recensioni

Vedi tutte
D

Domenico Serafini

5.0

Appena sono arrivato in città, quello che mi ha colpito di più è stata la loro rapidità nel rispondere alle mie richieste. Avevo bisogno di trovare un vis-à-vis in fretta e sono stato seguito passo pa...

A

Arturo Melis

5.0

Voglio ringraziare di cuore per l'attenzione e la professionalità dimostrate in ogni fase della ricerca. Sono stato molto soddisfatto perché hanno ascoltato davvero le mie esigenze e hanno sempre forn...

S

Simone Borgese

4.7

Stavo cercando un aiuto serio e affidabile per vendere un locale commerciale a Roma e devo dire che l’agenzia ha superato le mie aspettative. Mi hanno seguito passo passo, trovando rapidamente acquire...

F

Franco De Matteis

4.7

Ricordo ancora il momento in cui ho visto l’annuncio e ho deciso di contattare l’agenzia, è stata una scelta azzeccata. Avevo bisogno di vendere il mio locale commerciale e loro mi hanno seguito passo...