Indietro
Vendita Attico - Mansarda

Attico - Mansarda

Via delle Magnolie, Pisa, Pisa

Prezzo
123
mq
4
Locali
2
Camere
2
Bagni

Recensisci questo Immobile

Devi essere registrato per lasciare una recensione.

Accedi

Nessuna recensione ancora. Sii il primo!

Descrizione

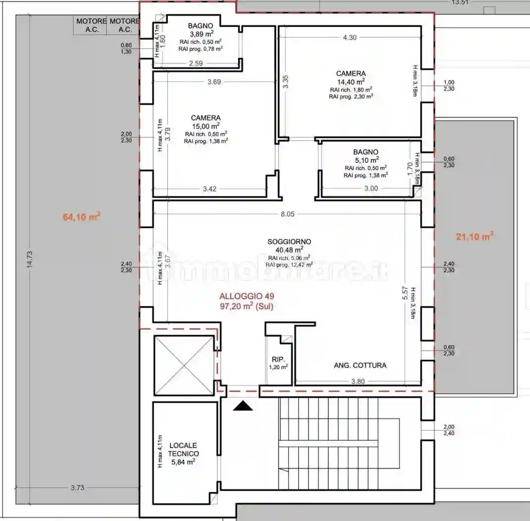
CALAMBRONE: nuova realizzazione di complesso immobiliare di pregio a 100 mt dal mare. Questo attico vista mare è posto al secondo ed ultimo piano di fabbricato condominiale ed è raggiungibile tramite vano scala o mediante ascensore con codice che sbarca direttamente all'interno dell'abitazione, si compone di ingresso tradizionale, grande zona giorno/cottura open space, possibilità di avere la cucina abitabile separata, 2 grandi terrazze per un totale di 85mq, ripostiglio, 2 camere matrimoniali di cui una con bagno privato, altro bagno ; entrambi i servizi sono finestrati; completano la proprietà 2 posti auto e un'ampia cantina a piano terra. L'immobile sarà in classe energetica A4, riscaldamento a pavimento, infissi in PVC, tapparelle motorizzate, no gas, impianto fotovoltaico condominiale, predisposizione aria condizionata, predisposizione impianto d'allarme, ecc.....Possibilità di personalizzazione sia nella divisione degli spazi interni che nelle finiture. Ottimo capitolato. Consegna dicembre 2028.

Caratteristiche

Piano 3
Ascensore Si
Stato Nuovo / In costruzione

Servizi e accessori

Infissi esterni in doppio vetro / PVC

Posizione

Zona: Calambrone (Marina di Pisa, Tirrenia, Calambrone)

Referente

Ubi Maior - Casa dolce Casa

Storico

Pubblicato 06 Mar 2026
Aggiornato 20 May 2026
Sul mercato 77 giorni
ID Annuncio 127209623

Recensioni

Vedi tutte
G

Gennaro Gallo

5.0

Se cercate un'agenzia immobiliare affidabile, vi consiglio di rivolgervi a questa: sono stati rapidi e precisi nella gestione di tutta la documentazione, il che ha reso tutto molto più semplice. Ho tr...

L

Lorenzo Capra

4.7

Rispetto ad altre esperienze di vendita, questa agenzia si è distinta per la tempestività nelle risposte e la cortesia dimostrata. Ho trovato un team professionale che mi ha seguito passo dopo passo,...

R

Romeo Resta

4.3

Ho trovato questa agenzia molto affidabile e professionale. Mi hanno seguito con molta attenzione e hanno risposto sempre in modo tempestivo a tutte le mie domande, rendendo il processo di vendita del...

R

Renato Conte

4.3

Stavo cercando un investimento immobiliare nella zona di Pisa e ho trovato un'agenzia con un'ampia scelta di immobili, cosa che mi ha permesso di valutare diverse opzioni facilmente. La loro conoscenz...