Vendita Appartamento

Appartamento

Via di Sant'Agostino, 47, Pistoia, Pistoia

Prezzo
72
mq
3
Locali
2
Camere
1
Bagni

Recensisci questo Immobile

Devi essere registrato per lasciare una recensione.

Accedi

Nessuna recensione ancora. Sii il primo!

Descrizione

Pistoia zona Sant' Agostino
immobile in fase di completa ristrutturazione con materiali di pregio.
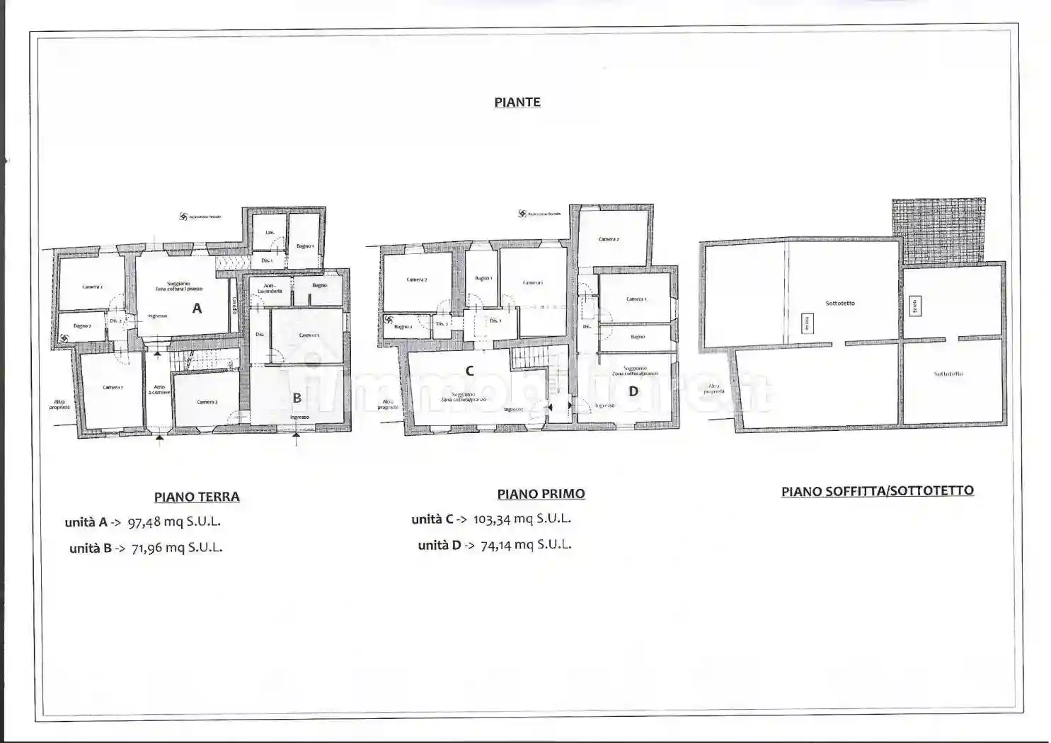
L'edificio, libero su tre lati, sarà suddiviso in quadrifamiliare composta da trilocali, al piano terra con giardino e al primo piano con ampia soffitta.
Ogni unità immobiliare sarà fornita di 2 posti auto.
Consegna Luglio 2026
Piano terra Circa mq. 72 con giardino di circa mq. 40, euro 220.000
Piano terra Circa mq. 98 con giardino di circa mq. 20, euro 285.000
Piano primo Circa mq. 74 con soffitta euro 220.000
Piano primo Circa mq. 103 con soffitta euro 300.000
Vendita da Società
La distribuzione rappresentata potrà subire modifiche non sostanziali nel corso dei lavori

Caratteristiche

Piano T
Ascensore No
Stato Ottimo / Ristrutturato
Riscaldamento Autonomo, ad aria, alimentato a pompa di calore

Servizi e accessori

Esposizione esterna Impianto tv singolo Infissi esterni in doppio vetro / legno Porta blindata

Posizione

Zona: Sant'Agostino (Sant'Agostino, Chiazzano)

Referente

Il Rione Immobiliare

Storico

Pubblicato 06 Mar 2026
Aggiornato 20 May 2026
Sul mercato 76 giorni
ID Annuncio 127224731

Recensioni

Vedi tutte
S

Salvatore Spinelli

4.7

Stavo cercando un bilocale a Firenze dopo aver cambiato città per lavoro, e devo dire che sono stato davvero fortunato a trovare un team così disponibile e paziente. Mi hanno seguito passo dopo passo,...

S

Sandra Iacovelli

4.7

Ho trovato un’agenzia immobiliare molto professionale e onesta, che ha gestito con calma e trasparenza tutta la trattativa. Mi sono sentita seguita e aiutata in ogni passo, il che ha reso tutto il pro...

P

Paola Maresca

4.3

Durante tutto il processo mi sono sentita realmente supportata e tranquilla, come se avessi un’amica al mio fianco. La professionalità e la cura nei dettagli sono state fondamentali, e ho apprezzato m...

K

Katia De Angelis

4.3

La prima cosa che mi ha colpito è stata la pazienza con cui mi hanno ascoltata, sempre disponibili a capire cosa cercavo davvero. Dopo anni di affitto, sono stata davvero soddisfatta di aver trovato l...

F

Filippo Viola

4.0

Durante tutto il processo mi sono sentito molto supportato e rassicurato, come se avessi un amico che mi guidava passo dopo passo. L'assistenza post-vendita è stata impeccabile, sempre disponibile a r...