Vendita Appartamento

Appartamento

Traversa Turner, Sarno, Salerno

Prezzo
123
mq
5+
Locali
7
Camere
2
Bagni

Recensisci questo Immobile

Devi essere registrato per lasciare una recensione.

Accedi

Nessuna recensione ancora. Sii il primo!

Descrizione

Asta appartamento a Sarno (SA)
Traversa Turner, 84087 Sarno SA, Italia
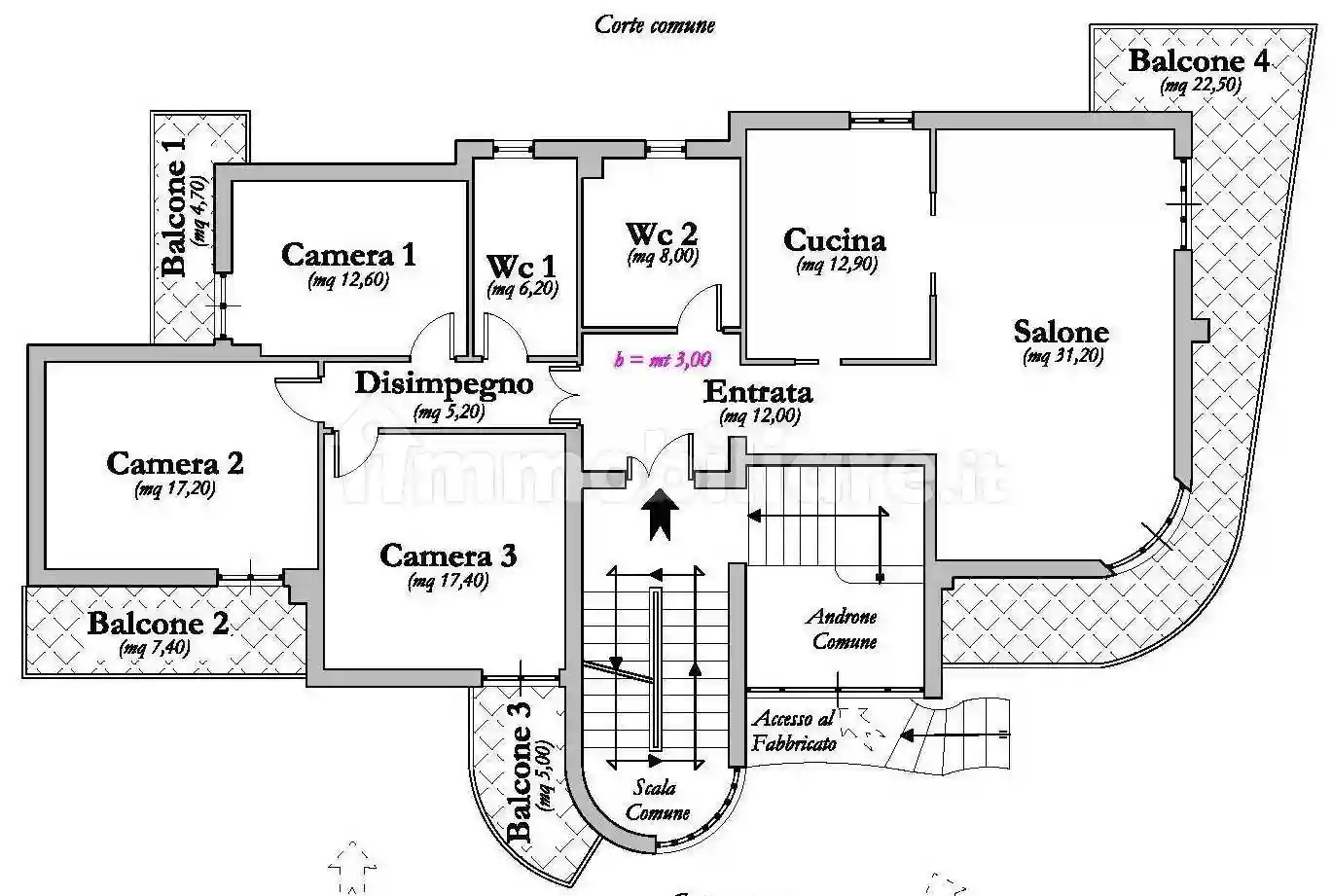
Appartamento per civile abitazione ubicato in Sarno al Corso Vittorio Emanuele Traversa Turner n. 12, posto al piano rialzato, L’abitazione ha una superficie calpestabile di mq 122,70 mentre con quattro balconi con superficie calpestabile complessiva di mq 39,60. L’altezza interna è di m 3,00. L’appartamento è composto da tre camere da letto, un vano entrata, una cucina, un salone, un disimpegno, due wc e quattro balconi .

Per ulteriori informazioni non esitate a contattarci :
Centro Aste Salerno
Via Picenza, 111
84131 - Salerno
salernocentroaste@gmail.com
Tel./Mob. 375-587-6793

Proposta immobiliare in asta. Info dettagliate in agenzia o telefonicamente.

Possibilita’ di Mutuo al 100%

Per maggiori informazioni puoi contattare il nostro referente di zona

SU QUESTO IMMOBILE E’ POSSIBILE:

- Mutuo al 100%
- Visita Interni
- NO Oneri Notarili
- Nessuna Ipoteca
- Agevolazione Prima Casa

Le foto pubblicate potrebbero non corrispondere all'immobile specifico, i documenti ufficiali sono visionabili in filiale.

CENTRO ASTE OFFRE I SEGUENTI SERVIZI:

1. PRIMA CONSULENZA
Appuntamento presso una delle 50 Filiali in Italia per offrire chiarimenti sulle aste ed ascoltare le tue esigenze immobiliari.

2. MEDIAZIONE CREDITIZIA
Servizio esclusivo ad alto valore aggiunto, proponendo un ventaglio di prodotti tra i più completi con studio fattibilità per la partecipazione in asta con mutuo fino al 100%

3. ASSISTENZA TECNICO - LEGALE
- Ricerca Immobili ed invio settimanale per email
- Studio della perizia e della documentazione
- Accertamenti catastali per eventuali abusi edilizi
- Accompagnamento Visita Immobile
- Disbrigo pratiche per la partecipazione
- Rappresentanza Legale il giorno della vendita
- Rilascio del decreto di trasferimento in tempi brevi
- Assistenza per il Saldo Prezzo
- Compilazione F24 per Tasse
- Disbrigo Pratiche per Eventuale Sanatoria
- Assistenza alla Consegna Immobile

Per maggiori informazioni puoi contattare il nostro referente di zona
Data Asta: 19-05-2026
Codice Riferimento: SY606895

Caratteristiche

Piano 2
Ascensore No
Stato Buono / Abitabile
Riscaldamento Autonomo, a radiatori, alimentato a metano

Servizi e accessori

Cucina Impianto tv singolo

Posizione

Referente

Centro Aste Salerno

Storico

Pubblicato 06 Mar 2026
Disattivato 22 May 2026
Sul mercato 80 giorni
ID Annuncio 127228511

Recensioni

Vedi tutte
C

Camilla Ferrante

4.3

Ho trovato la casa perfetta vicino ai miei genitori, e sono stata davvero felice dell’assistenza ricevuta. Sono stata seguita con grande professionalità e attenzione in ogni fase, e le risposte sono s...