Vendita Appartamento

Appartamento

Piazza Santa Maria, Viareggio, Lucca

Prezzo
81
mq
4
Locali
2
Camere
2
Bagni

Recensisci questo Immobile

Devi essere registrato per lasciare una recensione.

Accedi

Nessuna recensione ancora. Sii il primo!

Descrizione

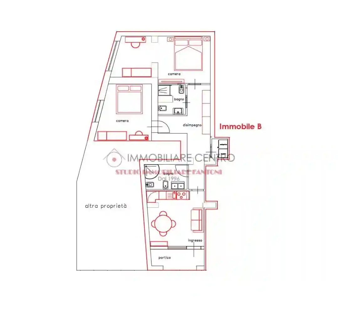
Nel cuore del centro storico di Viareggio, situato in una zona residenziale strategica e perfettamente servita da ogni comodità, proponiamo in vendita appartamento posto al piano terra attualmente oggetto di una radicale ristrutturazione a nuovo. L unità sarà caratterizzate da finiture moderne di pregio e impianti di ultima generazione per garantire il massimo comfort abitativo.

Il progetto attuale prevede un portico d'ingresso che introduce a un soggiorno con angolo cottura, disimpegno, due camere da letto di cui una con stanza armadi, due bagni con doccia, lavanderia.

La fase attuale dei lavori offre l' opportunità di personalizzare la distribuzione degli spazi interni e modificare il progetto originario secondo i propri gusti o necessità. Un'opportunità unica per acquistare un immobile nuovo, su misura, nel cuore della città, senza rinunciare alla comodità e ai servizi. Consegna chiavi in mano.

Rif. AC Rich. € 279.000 Tratt.

Studio Immobiliare Fantoni dal 1996 l’immobiliare di fiducia della Versilia. L’agenzia è ubicata a soli 200 metri dal mare e dalla rinomata Passeggiata di Viareggio, in Via Verdi 81. Per motivi relativi alla Privacy l’indirizzo dell’immobile non corrisponde al vero, indica comunque i paraggi in cui esso si trova.

Caratteristiche

Piano T
Ascensore No
Stato Nuovo / In costruzione
Riscaldamento Autonomo, ad aria, alimentato a pompa di calore

Servizi e accessori

Esposizione esterna Fibra ottica Impianto tv con parabola satellitare Infissi esterni in doppio vetro / PVC Porta blindata

Posizione

Referente

Studio Immobiliare Fantoni

Storico

Pubblicato 06 Mar 2026
Disattivato 02 Apr 2026
Sul mercato 77 giorni
ID Annuncio 127242609

Recensioni

Vedi tutte
F

Fabiana Forte

4.3

Stavo cercando un terreno a Viareggio per costruire la mia casa e ho trovato facilmente quello che faceva al caso mio grazie all’ampia scelta dell’agenzia. Sono stata molto soddisfatta della cortesia...

N

Nadia Maione

4.3

Ho trovato la casa ideale a Viareggio grazie a un'agenzia che si è dimostrata molto competente e attenta ai dettagli. Sono stata seguita passo dopo passo nella trattativa, con una conoscenza approfond...

P

Pina Cassano

4.3

Se state cercando un'agenzia immobiliare affidabile, vi consiglio di rivolgervi con fiducia a questa. Mi sono trovata davvero bene perché sono stata seguita con grande disponibilità e flessibilità neg...