Indietro
Vendita Casa indipendente

Casa indipendente

Frazione Azzano, Trevi, Perugia

Prezzo
Buon Prezzo: 24% sotto la media
235
mq
5+
Locali
2
Camere
1
Bagni

Recensisci questo Immobile

Devi essere registrato per lasciare una recensione.

Accedi

Nessuna recensione ancora. Sii il primo!

Descrizione

Viene venduto tramite asta giudiziaria porzione di edificio destinato ad abitazione sito a Trevi (PG), in località La Torre di Azzano.
La porzione in vendita fa parte di un edificio di maggior consistenza con struttura in muratura portante con solai in legno e copertura a due falde.
Il lotto fa parte di una procedura di vendita più ampia riferibile ad un'azienda agricola con terreni ed annessi.

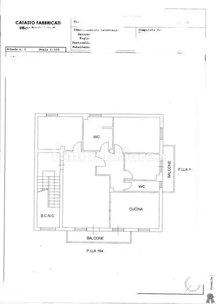
L'abitazione in vendita si sviluppa su 2 livelli (terra e primo) collegati da una scala interna:
- Il piano terra è composto da 3 ampi locali destinati a cantina, un ripostiglio attrezzato a cucina, un ingresso ed una sala in cui si trova la scala a chiocciola che collega al piano primo.
Esternamente vi si trova un portico di ingresso, 3 ripostigli ed un sottoscala, tutti con altezza inferiore a 2 m.
- Il piano primo è composto da 2 sale, cucina, 2 camere da letto, un bagno e un ripostiglio.
Questo piano è accessibile anche da una scala esterna in comune con l’abitazione attigua non oggetto di vendita.

Alcuni infissi esterni sono in legno ed altri in alluminio anodizzato.
L'impianto di riscaldamento è in parte in comune con altre abitazioni non oggetto di vendita, con corpi radianti in alluminio, integrato da un caminetto al piano terra.

Vendita tramite asta giudiziaria

PREZZO BASE € 180.000
OFFERTA MINIMA € 135.000

Data di vendita il 27/05/2026 ore 9
Termine di presentazione delle offerte il 26/05/2026 ore 12

FOTO E PLANIMETRIE POTREBBERO NON CORRISPONDERE ALL'IMMOBILE IN OGGETTO.
Ulteriori informazioni sull’immobile (foto, planimetrie…) sono consultabili presso la nostra sede.
Contattaci per fissare un appuntamento!
Telefono 075/395390 350/9216699

Forniamo assistenza per tutto l’iter procedurale.
Ricerca immobile in base alle esigenze.
Visita.
Valutazione tecnico/legale.
Valutazione fattibilità acquisto.
Assistenza nella valutazione all’asta.
Assistenza post aggiudicazione, fino alla consegna delle chiavi.

Caratteristiche

Piano T
Ascensore No
Stato Da ristrutturare
Riscaldamento Centralizzato, a radiatori, alimentato a metano

Servizi e accessori

Caminetto Cucina Esposizione esterna Impianto tv singolo Infissi esterni in vetro / legno Taverna

Posizione

Referente

mencarini immobiliare di laura mencarini

Storico

Pubblicato 06 Mar 2026
Aggiornato 06 Apr 2026
Sul mercato 31 giorni
ID Annuncio 127280075

Recensioni

Vedi tutte
U

Umberto Massa

4.7

Appena ho varcato la porta ho capito che mi sarei trovato bene: l’attenzione ai dettagli e la conoscenza delle normative erano evidenti fin dal primo momento. Mi hanno aiutato a trovare la casa perfet...