Vendita Appartamento

Appartamento

Via Pietro Ottoboni, 73, Roma, Roma

Prezzo
90
mq
3
Locali
2
Camere
1
Bagni

Recensisci questo Immobile

Devi essere registrato per lasciare una recensione.

Accedi

Nessuna recensione ancora. Sii il primo!

Descrizione

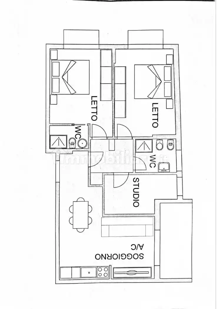
Roma VIA GALLA PLACIDIA, la Romagnoli RE Consulting, propone in vendita un appartamento unico per affacci e luminosità. Situato al piano quinto di una palazzina a cortina in ottimo stato e dotata di ascensore. L'appartamento, abitabile anche se datato, dispone di una pianta quadrata che permette di disporre gli ambienti a proprio piacimento oltre a permettere la trasformazione in quadrilocale con doppi servizi. Attualmente è composto da un ampio ingresso, soggiorno con uscita sul balcone con affaccio diretto sul parco "Galla Placidia -Ottoboni", disimpegno, cucina abitabile, due camere matrimoniali con balconcini e vista sui monti dietro Tivoli, armadio a muro/ripostiglio e balcone. Le dotazioni impiantistiche e le rifiniture generali sono quelle referite agli anni settanta Possibilità di trasformazione in soggiorno con cucina a vista, due camere grandi, camera/studio, doppio servizio e balcone. A tal proposito disponiamo di preventivi per la ristrutturazione dell'immobile, senza modifiche, per una spesa di 37 mila € compresi i materiali (esclusi gli infissi esterni) e per la sua trasformazione in quadrilocale pari ad €. 49 mila €. compresi materiali (esclusi gli infissi esterni). A latere del fabbricato vi è un area a parcheggio utilizzata dai condomini. L'immobile è subito disponibile e dotato di certificazione di abitabilità/agibilità. Per informazioni ed appuntamenti contattare il 370 1674189

Roma VIA GALLA PLACIDIA, la Romagnoli RE Consulting, propone in vendita un appartamento unico per affacci e luminosità. Situato al piano quinto di una palazzina a cortina in ottimo stato e dotata di ascensore. L'appartamento, abitabile anche se datato, dispone di una pianta quadrata che permette di disporre gli ambienti a proprio piacimento oltre a permettere la trasformazione in quadrilocale con doppi servizi. Attualmente è composto da un ampio ingresso, soggiorno con uscita sul balcone con affaccio diretto sul parco "Galla Placidia -Ottoboni", disimpegno, cucina abitabile, due camere matrimoniali con balconcini e vista sui monti dietro Tivoli, armadio a muro/ripostiglio e balcone. Le dotazioni impiantistiche e le rifiniture generali sono quelle referite agli anni settanta Possibilità di trasformazione in soggiorno con cucina a vista, due camere grandi, camera/studio, doppio servizio e balcone. A tal proposito disponiamo di preventivi per la ristrutturazione dell'immobile, senza modifiche, per una spesa di 37 mila € compresi i materiali (esclusi gli infissi esterni) e per la sua trasformazione in quadrilocale pari ad €. 49 mila €. compresi materiali (esclusi gli infissi esterni). A latere del fabbricato vi è un area a parcheggio utilizzata dai condomini. L'immobile è subito disponibile e dotato di certificazione di abitabilità/agibilità. Per informazioni ed appuntamenti contattare il 370 1674189

Caratteristiche

Piano 5
Ascensore Si
Stato Buono / Abitabile
Riscaldamento Centralizzato, a radiatori, alimentato a gas

Servizi e accessori

Armadio a muro Esposizione doppia Impianto tv centralizzato Infissi esterni in vetro / metallo

Posizione

Zona: Casal Bruciato (Monti Tiburtini, Pietralata)

Referente

Romagnoli RE Consulting

Storico

Pubblicato 12 Mar 2026
Disattivato 01 May 2026
Sul mercato 70 giorni
ID Annuncio 127322045