Vendita Villa

Villa

Via di Colle Cocchino, Anzio, Roma

Prezzo
123
mq
4
Locali
3
Camere
2
Bagni

Recensisci questo Immobile

Devi essere registrato per lasciare una recensione.

Accedi

Nessuna recensione ancora. Sii il primo!

Descrizione

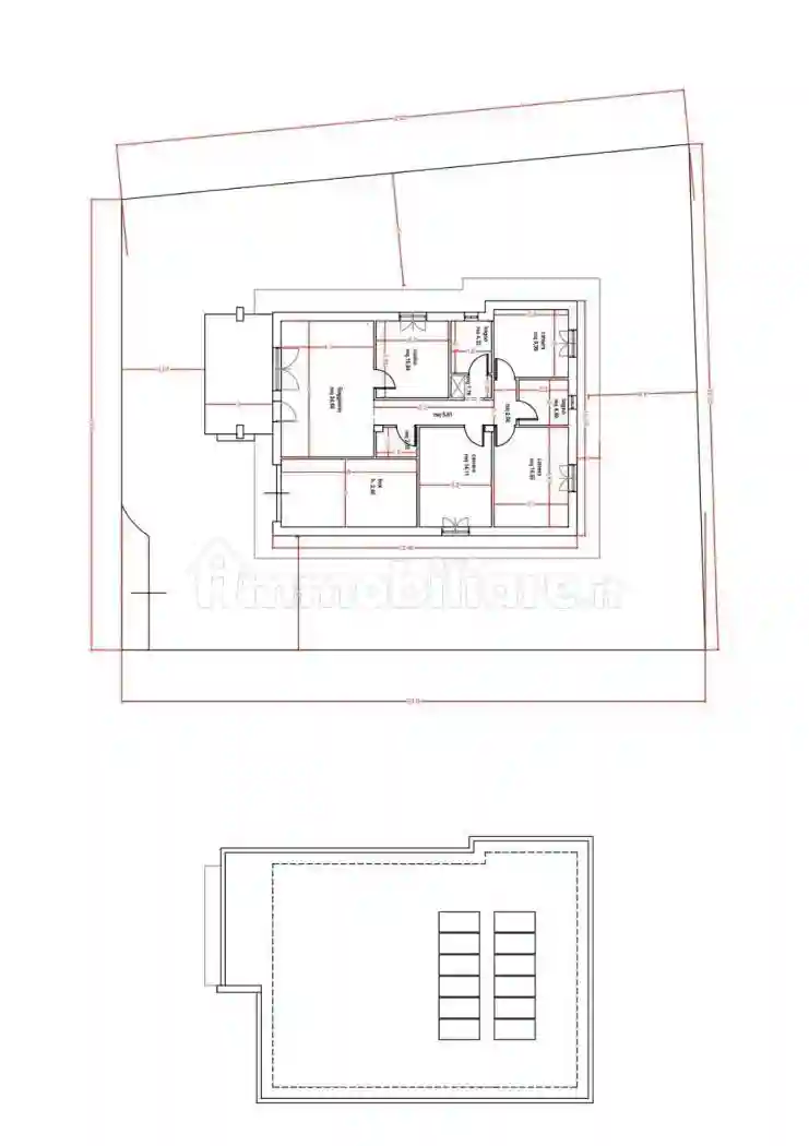
Anzio in un complesso residenziale a ridosso del centro abitato ed a poca distanza dal mare e da tutti i servizi, Romagnoli RE Consulting, propone in vendita una villa unifamiliare in CLASSE ENERGETICA A4 (CASA GREEN). La villa posta su un unico livello con ampio giardino, si contraddistingue per un desing innovativo ed accattivante e di sicuro valore architettonico. L’abitazione gode di un ottimo utilizzo degli spazi essendo disposta su un unico livello, all’interno troviamo una ampia zona living, una cucina abitabile, 3 camere matrimoniali, ampio bagno, wc-lavanderia, un ampio ripostiglio. Sempre al piano terra, in aderenza all’abitazione, vi è un ampio garage carrabile adatto a vari usi. Molto comoda l’area esterna con portico d’entrata, veranda, aree pedonali e centrale termica e giardino che circonda la villa. La villa sarà dotata di impianti tecnologi di grande efficienza come impianto fotovoltaico, riscaldamento a pavimento, piano cottura ad induzione, predisposizione per impianto di climatizzazione. Predisposizione per impianto di allarme, citofono, pozzo per l’irrigazione del giardino. La costruzione, rialzata da terra, è in cemento armato con tamponature in blocchi termici ad alta efficienza energetica ed isolanti interni ed esterni in conformità alle leggi vigenti e future (direttive Europee 2035), oltrechè ad i massimi standar di efficentazione energetica. Tetto di copertura con isolante e coibentazione. Impianto termico radiante a pavimento con pompa di calore ed impianto fotovoltaico di 6 KW. Impianti elettrico e idrico realizzati con materiali di prima scelta. Predisposizione per impianto di climatizzazione. Serramenti esterni in PVC con doppio vetro, serramenti interni di primaria ditta fornitrice, Persiane esterne in ferro zincato, portoncino d'ingresso blindato, grate in ferro zincato. pavimentazione esterna con materiali di prima qualità, pozzo artesiano per irrigazione. Possibilità di scelta dei pavimenti e rivestimenti. Il villino verrà dotato di tutte le certificazioni degli impianti e della segnalazione relativa all'agibilità. La tipologia costruttiva le metodologie di edificazione, i materiale utilizzati e la dotazioni di impianti all’avanguardia in relazione alla produzione di energia ed all’efficentamento energetico rendono la proposta unica per genere nel panorama immobiliare di Anzio. Consegna prevista 12 mesi dalla stipula del preliminare. Prezzo €340.000,00. Acconti fino al 20% del prezzo e possibilità di mutuo fino all'80%. Si esaminano permute. Romagnoli RE Consulting. Tel.3701674189

Caratteristiche

Piano T
Ascensore No
Stato Nuovo / In costruzione
Riscaldamento Autonomo, a pavimento, alimentato a pompa di calore

Servizi e accessori

Armadio a muro Cancello elettrico Esposizione doppia Impianto tv singolo Infissi esterni in doppio vetro / PVC Porta blindata

Posizione

Zona: Cocchino (Marechiaro, Cocchino, Anzio Colonia)

Referente

Romagnoli RE Consulting

Storico

Pubblicato 12 Mar 2026
Disattivato 21 May 2026
Sul mercato 70 giorni
ID Annuncio 127322289