Vendita Appartamento

Appartamento

Riccione, Rimini

Prezzo
102
mq
4
Locali
2
Camere
3
Bagni

Recensisci questo Immobile

Devi essere registrato per lasciare una recensione.

Accedi

Nessuna recensione ancora. Sii il primo!

Descrizione

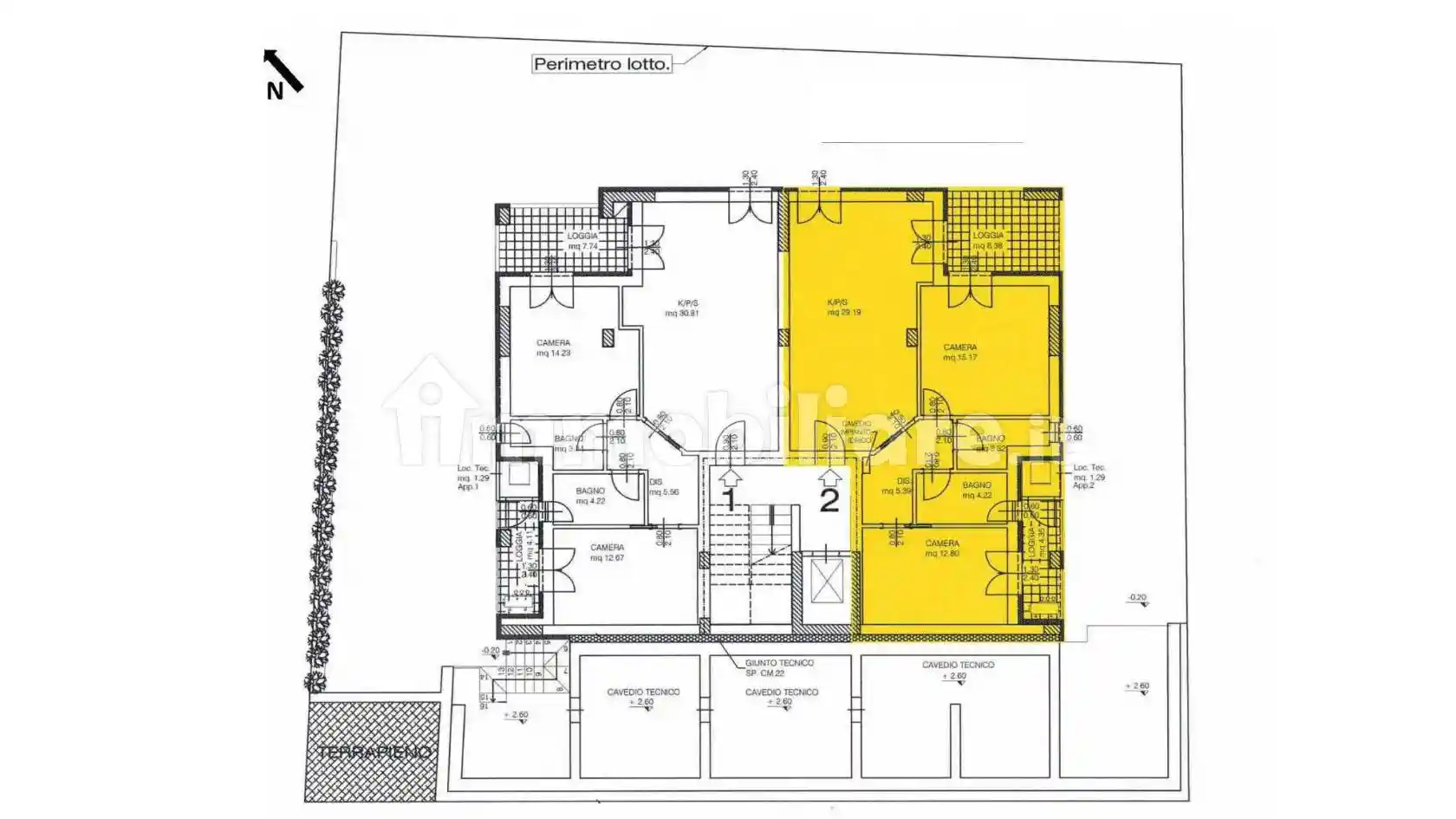
RICCIONE  ZONA  VIA BOLOGNA vendita  in esclusiva  adiacente a piazza XX Settembre ,   in piccola palazzina a 500 mt dal mare ampio   appartamento  ottimamente tenuto  dal sapore classico  elegante , composto da salone , cucina abitabile ,  2 camere matrimoniali , 2 bagni , lavanderia , circondato da 4  terrazze  con bellissimo affaccio sul verde ,  palazzina vicinissima  sia al parco che in pochi minuti al mare . no spese condominiali  RIF 107  €  380.000 

Caratteristiche

Piano 1
Ascensore No
Stato Ottimo / Ristrutturato
Riscaldamento Autonomo, a radiatori, alimentato a gas

Servizi e accessori

Armadio a muro Esposizione esterna Impianto di allarme Impianto tv centralizzato Infissi esterni in vetro / legno Porta blindata

Posizione

Zona: Parco (Alba Mare, Parco, Marano, Spontricciolo)

Referente

Immobiliare Turismo

Storico

Pubblicato 12 Mar 2026
Aggiornato 21 May 2026
Sul mercato 69 giorni
ID Annuncio 127376035

Recensioni

Vedi tutte
S

Silvano D'Amico

5.0

Appena sono entrato nel magazzino ho notato subito l’efficienza con cui hanno gestito la praticità di accesso. L’agenzia si è dimostrata estremamente affidabile e precisa nella gestione della document...

S

Sandro Gagliardi

4.3

Le esperienze precedenti con altre agenzie erano state spesso confuse e poco chiare, ma questa volta è stato diverso. Ho trovato un reale accompagnamento durante le visite e le spiegazioni sono state...

R

Rocco Diamante

4.0

Ricordo ancora quando, grazie alla disponibilità e onestà dell'agenzia, ho trovato subito un appartamento che rispondeva alle mie esigenze. Sono stato molto colpito dalla professionalità del team, che...