Vendita Appartamento

Appartamento

Alessandro Manzoni, 57, Bertinoro, Forli Cesena

Prezzo
94
mq
2
Locali
2
Camere
1
Bagni

Recensisci questo Immobile

Devi essere registrato per lasciare una recensione.

Accedi

Nessuna recensione ancora. Sii il primo!

Descrizione

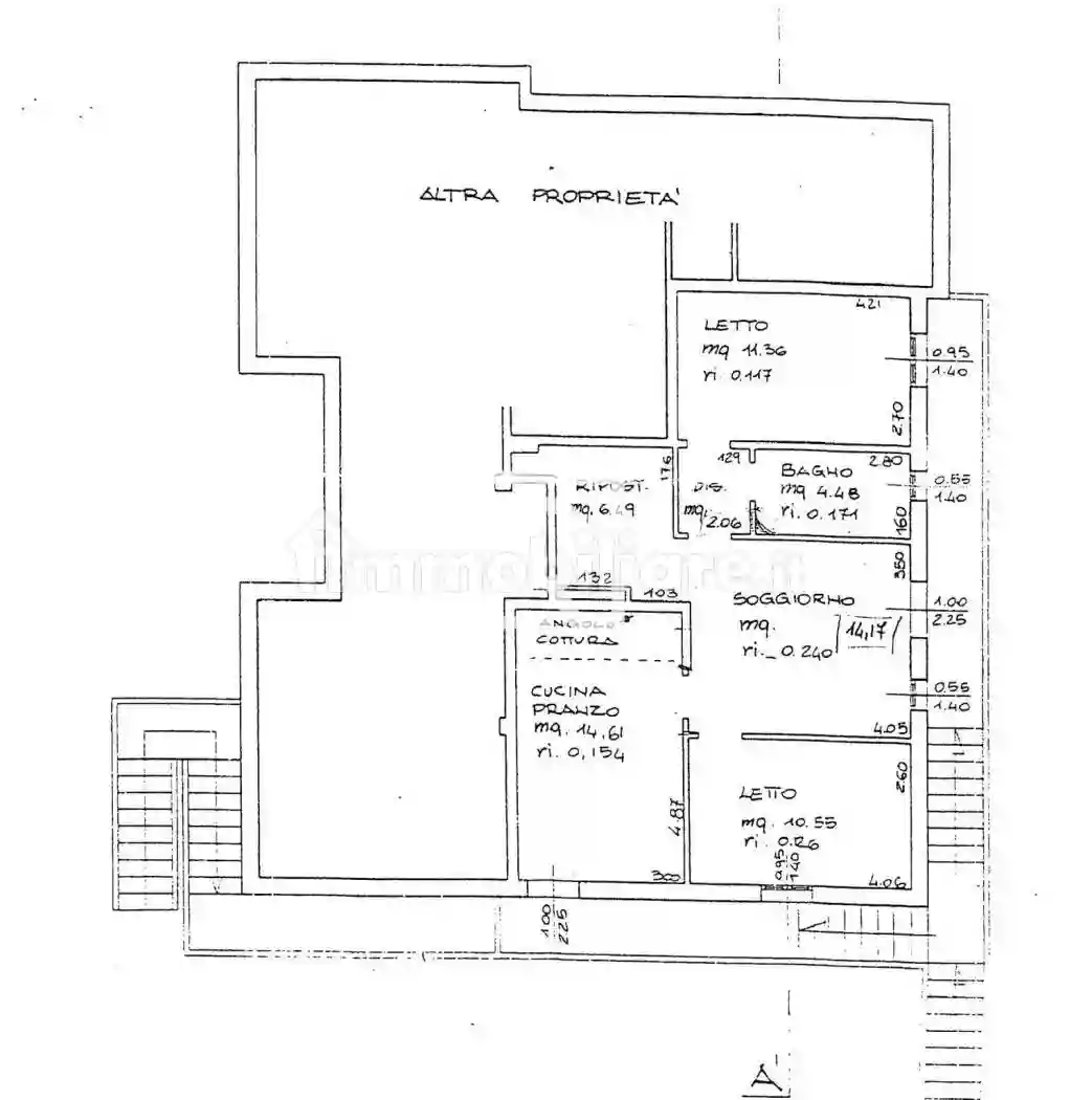
FRATTA TERME - BERTINORO

AMPIO TRILOCALE AL PIANO PRIMO CON BALCONI 2 CANTINE E POSTO AUTO A FRATTA TERME BERTINORO INGRESSO INDIPENDENTE

In posizione comoda , su quartiere residenziale con strada senza uscita privo di traffico , a due passi dalla piazza .

Proponiamo in vendita appartamento al piano primo con ingresso indipendente tramite balcone ad angolo .

Ingresso su cucina abitabile , salotto separato , ripostiglio da 6,5 mq , bagno finestrato con doccia .
Due camere da letto entrambe con affaccio sul balcone .

Al piano semi interrato del condominio troviamo il posto auto coperto da 10 mq e due cantine.

Le spese condominiali sono circa 60,00 € mensili .

Chiamami per fissare una visita 3358443446 Luca

Caratteristiche

Piano 1
Ascensore No
Stato Buono / Abitabile

Servizi e accessori

Esposizione esterna Impianto tv centralizzato Infissi esterni in doppio vetro / legno

Posizione

Referente

RomagnaCase - Forlimpopoli

Storico

Pubblicato 14 Mar 2026
Aggiornato 20 May 2026
Sul mercato 68 giorni
ID Annuncio 127427188

Recensioni

Vedi tutte
G

Gennaro Pagani

4.0

Dopo averne provate di agenzie, questa si è distinta per attenzione alle mie esigenze e affidabilità. Avevo bisogno di un appartamento vista mare e mi hanno seguito passo passo, trovando la soluzione...