Vendita Appartamento

Appartamento

Via Altichiero, 30, Padova, Padova

Prezzo
114
mq
4
Locali
2
Camere
1
Bagni

Recensisci questo Immobile

Devi essere registrato per lasciare una recensione.

Accedi

Nessuna recensione ancora. Sii il primo!

Descrizione

PER INFORMAZIONI CELLURARE/WHATSAPP 351.6727709
IMMOBILE IN VENDITA CON ASTA PRESSO IL TRIBUNALE DI PD..
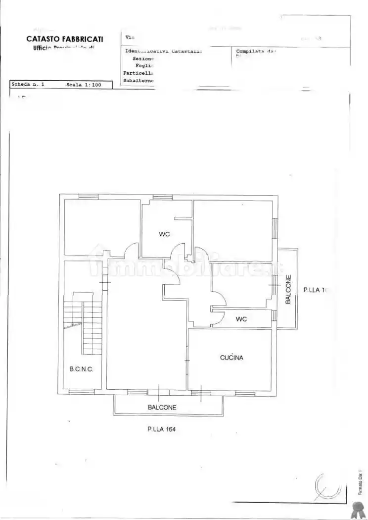
Appartamento al piano primo, composto da ingresso, cucina, soggiorno-pranzo, due camere, un bagno, un disimpegno, un poggiolo.
Garage singolo e 2 ripostigli/cantine al piano terra.
Scoperto in uso esclusivo, sul quale è presente una pergola, al piano terra.
Occupato dal debitore e sarà liberato a cura e spese dal tribunale.
LE METRATURE INTERNE SONO EVIDENZIATE ASSIEME ALLE FOTO.
Per INFORMAZIONI su COME PARTECIPARE all'asta E costi DI CONSULENZA, CHIAMARE oppure INVIARE messaggio WHATSAPP
al numero 351.6727709 PER FISSARE APPUNTAMENTO presso NOSTRO UFFICIO.

Se Stai valutando di partecipare a questa asta ti aiutiamo noi!
IntermediaCase Immobiliare di Padova ti offre la consulenza giusta pe affrontare lei fase dell’asta giudiziaria:
Dall'Assistenza tecnica nella preparazione dell’offerta e affiancamento nello svolgimento dell'asta fino alla
consegna delle chiavi con l'aggiudicazione.
Con l’asta puoi risparmiare rispetto ai prezzi del mercato libero.
Contattaci e fisseremo un incontro informativo a Padova nel nostro ufficio in via Monte Solarolo 22,
zona Porta San Giovanni.

Caratteristiche

Piano 1
Ascensore No
Stato Buono / Abitabile
Riscaldamento Autonomo, a radiatori, alimentato a gas

Servizi e accessori

Cucina Esposizione doppia Impianto tv centralizzato Infissi esterni in doppio vetro / legno Porta blindata VideoCitofono

Posizione

Zona: Altichiero (Sacro Cuore, Altichiero)

Referente

Corrado Rigon - IntermediaCase Immobiliare

Storico

Pubblicato 18 Mar 2026
Disattivato 20 May 2026
Sul mercato 65 giorni
ID Annuncio 127516546

Recensioni

Vedi tutte
G

Gloria Grassi

5.0

Grazie di cuore per avermi seguita in questo percorso così importante! Sono stata davvero felice di trovare la mia prima casa grazie alla vostra serietà e trasparenza, che mi hanno fatta sentire tutta...

P

Pina Avallone

4.7

Dopo anni di affitto, cercavo una casa che rispecchiasse le mie esigenze e ho trovato l’agenzia giusta. La loro conoscenza del mercato locale e la disponibilità a incontrarmi anche in orari flessibili...

S

Sofia Malerba

4.3

Durante il processo mi sono sentita davvero serena e ben seguita, hanno reso tutto molto più semplice e meno stressante. Ho trovato un’ampia scelta di immobili e l’efficienza nella gestione burocratic...