Vendita Appartamento

Appartamento

Via Luigi Salvatorelli, 181, Prato, Prato

Prezzo
94
mq
3
Locali
2
Camere
2
Bagni

Recensisci questo Immobile

Devi essere registrato per lasciare una recensione.

Accedi

Nessuna recensione ancora. Sii il primo!

Descrizione

In una tranquilla zona residenziale nasce una palazzina completamente rinnovata,
frutto di un attento e completo intervento di ristrutturazione, che unisce comfort, design moderno e soluzioni tecnologiche di ultima generazione in Classe A.
Comfort abitativo:
-Ogni appartamento è dotato di riscaldamento a pavimento e climatizzazione estiva, per vivere tutto l’anno nella massima comodità. L’impianto fotovoltaico con bollitore a pompa di calore garantisce risparmio energetico e attenzione all’ambiente. L’impianto elettrico, interamente nuovo, offre videocitofoni, tapparelle motorizzate e predisposizione per sistemi antifurto.
Finiture di pregio:
-Gli interni sono valorizzati da pavimenti in gres porcellanato di grande formato, porte laccate dal design elegante e portoncini blindati di sicurezza. Gli infissi in PVC con veneziane motorizzate assicurano isolamento acustico e termico ottimali. Completa il tutto una raffinata tinteggiatura in colori chiari e dettagli in pietra serena.
Spazi esterni:
-Le facciate e i terrazzi sono stati rinnovati con nuove impermeabilizzazioni e finiture di pregio. Le aree esterne sono pavimentate in gres e porfido, con recinzioni moderne e cancellino automatizzato. Gli annessi, ristrutturati e funzionali, ospitano lavanderia e bagno di servizio, ideali per ogni esigenza familiare. La palazzina si compone di tre unità immobiliari indipendenti, luminose ed efficienti, pensate per chi cerca una casa sicura, sostenibile e pronta da abitare.
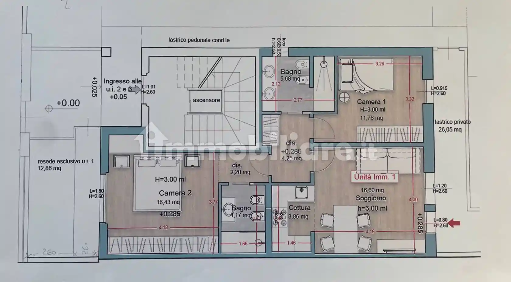
L'appartamento è situato al secondo piano accessibile tramite scala e/o ascensore condominiale è composto da un'ampia e luminosa zona giorno con angolo cottura a vista, due camere da letto di cui una matrimoniale con il bagno privato e un bagno di servizio con doccia finestrato ed un terrazzo posizionato sul retro dell’edificio.
La disposizione degli spazi risulta funzionale e ben equilibrata, con ambienti ariosi e ben illuminati, ideali per una famiglia o per chi cerca comfort e praticità in un contesto tranquillo. Completano la proprietà un posto auto privato posto all'interno della resede condominiale.

- La consegna sarà prevista per Fine 2026/Inizio 2027.
Se desiderate ulteriori informazioni relativamente all'immobile rimaniamo a vostra disposizione. Potete contattarci telefonicamente per fissare un appuntamento e visionare l’immobile.
Real Home Toscana – 3762135753

Caratteristiche

Piano T, 2
Ascensore Si
Stato Nuovo / In costruzione
Riscaldamento Autonomo, a pavimento, alimentato a pompa di calore

Servizi e accessori

Cancello elettrico Esposizione esterna Fibra ottica Impianto di allarme Impianto tv singolo Infissi esterni in doppio vetro / PVC Porta blindata VideoCitofono

Posizione

Zona: Iolo (Iolo, Casale)

Referente

Real Home s.a.s.

Storico

Pubblicato 20 Mar 2026
Aggiornato 22 May 2026
Sul mercato 63 giorni
ID Annuncio 127589870

Recensioni

Vedi tutte
L

Livio Natale

5.0

Quando sono entrato in agenzia, sono rimasto colpito dalla vasta scelta di magazzini disponibili, sembrava quasi impossibile trovare qualcosa che facesse al caso mio. Mi sono sentito subito seguito e...

A

Antonio Rossi

5.0

Prima di incontrarli, avevo avuto diverse esperienze con altre agenzie che mi avevano lasciato un po' deluso, ma questa è stata davvero diversa. Mi sono sentito ascoltato e sempre seguito passo passo,...

K

Katia De Luca

4.7

Un grazie di cuore per avermi aiutato a trovare l'investimento immobiliare perfetto! Mi sono sentita seguita passo dopo passo con grande cura dei dettagli e una disponibilità davvero speciale, che mi...

A

Arianna Ferrante

4.3

Ho trovato l’agenzia molto competente e professionale. Sono rimasta colpita dalla loro tempestività nelle risposte e dalla conoscenza approfondita del mercato immobiliare di Prato. Mi hanno seguita pa...