Vendita Appartamento

Appartamento

Via Airolo, 25, Milano, Milano

Prezzo
Buon Prezzo: 22% sotto la media
110
mq
3
Locali
2
Camere
2
Bagni

Recensisci questo Immobile

Devi essere registrato per lasciare una recensione.

Accedi

Nessuna recensione ancora. Sii il primo!

Descrizione

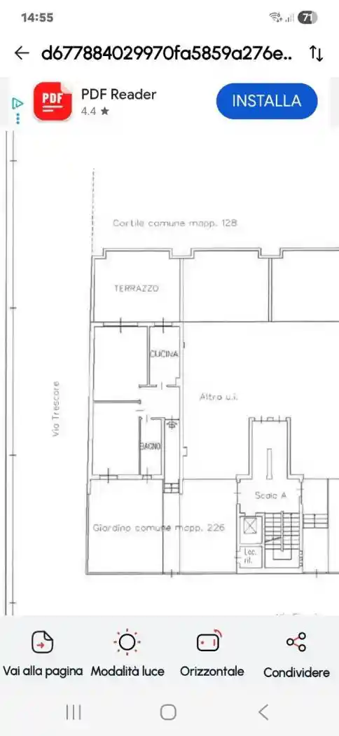
RIF. CA301 - VIA AIROLO: In zona residenziale tranquilla, nelle immediate vicinanze del rinomato Villaggio dei Giornalisti e dell’iconico quartiere Isola, proponiamo in vendita ampio tre locali di circa 110 mq. sito al terzo piano di un edificio civile degli anni ’60, senza ascensore. L’immobile si presenta in ottime condizioni interne ed è dotato di porta blindata, infissi in PVC con doppio vetro e aria condizionata, caratteristiche che garantiscono comfort e funzionalità. La soluzione si sviluppa su un unico livello e presenta una pianta estremamente versatile, gli ambienti sono spaziosi e ben distribuiti, ideali per famiglie o per chi cerca ampi spazi in città. Possibilità di eventuale trasformazione in quattro locali. Attualmente è composto da: ingresso, salone, ampia cucina abitabile, due camere da letto, doppi servizi entrambi finestrati, ripostiglio oltre a soppalco portante e tre balconi. Completa la proprietà un vano cantina di pertinenza. L’appartamento gode di una doppia esposizione est\ovest che rende la soluzione luminosa. Il riscaldamento è centralizzato con termovalvole per regolare la temperatura di ogni singolo ambiente e il consumo di calore individuale. La palazzina fornisce infine la possibilità di un posto auto condominiale libero. Zona: La posizione è strategica in quanto l’immobile è situato in una zona ben collegata dai mezzi pubblici (metropolitana, tram e autobus), con tutti i servizi principali nelle vicinanze, a pochi passi dalla fermata metropolitana MM5 Istria e MM3 Maciachini, con numerosi mezzi pubblici di superficie, tra cui il tram 4 e 5 e gli autobus 42-51.Tutto ciò che ti serve è a portata di mano: scuole, supermercati, farmacie e ristoranti. Siamo a vostra disposizione, per informazioni ed eventuali soluzioni non ancora pubblicizzate. Vi offriamo la VALUTAZIONE GRATUITA sia per la vendita che per l’affitto con supporto durante tutto l’iter FINO AL ROGITO NOTARILE con l’assistenza di notai e avvocati per assicurarvi un attenta gestione. Presso i nostri uffici inoltre, troverete tecnici per PROGETTAZIONE, RISTRUTTURAZIONE, pratiche catastali e comunali, consulenza e gestione per MUTUI con le migliori banche e ai tassi più agevolati. Il nostro team è presente da anni sul territorio con lo scopo di offrire al cliente un servizio a 360 gradi. Ci trovate a Milano e Cinisello Balsamo.

Caratteristiche

Piano 3
Ascensore No
Stato Ottimo / Ristrutturato
Riscaldamento Centralizzato, a radiatori, alimentato a metano

Servizi e accessori

Armadio a muro Cancello elettrico Esposizione doppia Fibra ottica Idromassaggio Impianto tv centralizzato Infissi esterni in doppio vetro / PVC Porta blindata VideoCitofono

Posizione

Zona: Istria (Maggiolina, Istria)

Referente

Gabetti Franchising Milano Sondrio

Storico

Pubblicato 19 Mar 2026
Disattivato 05 Apr 2026
Sul mercato 17 giorni
ID Annuncio 127590434

Recensioni

Vedi tutte
C

Cinzia D'Amico

5.0

Ricordo ancora il momento in cui ho trovato il bilocale perfetto grazie a questa agenzia, la sensazione di essere seguita con attenzione e professionalità è stata davvero rassicurante. Mi sono sentita...

S

Stefania Trombetta

4.7

Grazie di cuore per l’assistenza incredibile! Mi sono trovata subito ben seguita e supportata in ogni fase dell’acquisto del terreno, dalla prima visita fino alla firma finale. La loro serietà e profe...

O

Olga Piazza

4.3

Voglio ringraziare sinceramente per l’aiuto che ho ricevuto in questa esperienza. Mi sono trovata molto bene grazie alla loro conoscenza approfondita delle normative e alla rapidità con cui hanno segu...

C

Chiara Grassi

4.3

Un grazie di cuore a questa fantastica agenzia! Sono stata seguita con grande attenzione e professionalità, sempre rispettando le mie esigenze e offrendomi valutazioni oneste e realistiche. Mi hanno a...

F

Flavia Manfredi

4.0

Ho venduto la mia casa a Milano in tempi rapidi e senza stress, grazie alla gestione professionale dell’agenzia. Mi sono sentita seguita e aiutata in ogni fase, con risposte sempre tempestive che hann...