Vendita Appartamento Luxury

Appartamento

Riccione, Rimini

Prezzo
73
mq
3
Locali
2
Camere
2
Bagni

Recensisci questo Immobile

Devi essere registrato per lasciare una recensione.

Accedi

Nessuna recensione ancora. Sii il primo!

Descrizione

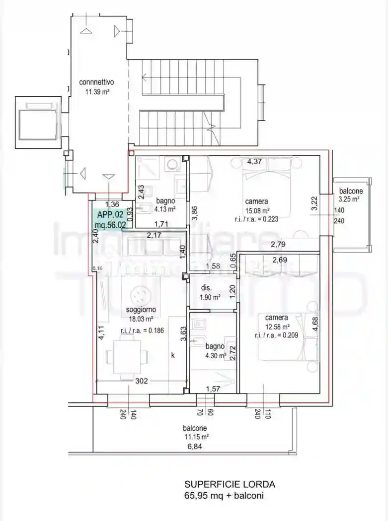
RICCIONE  DANTE MARE CENTRALISSIMI  NUOVI  APPARTAMENTI  IN CONDHOTEL , direttamente sul mare , vendita  appartamento   al 3° piano con ascensore composto da

ingresso , soggiorno con angolo cottura , 2 camere  matrimoniali  , 2 bagni , terrazzo  vista mare , balcone  , possibilita di acquistare posto auto  in corte privata . impianti autonomi  , cat A+4, riscaldamento a pavimento.con caldaia a pompa di calore autonomo .

Il Condhotel dispone di una reception e di spazi comuni , salotti , lavanderia a gettone , spazio deposito biciclette .

Le unita' in vendita si possono acquistare come 1à casa o 2à casa anche come ottimo investimento , CONSEGNA FINE 2026 

RIF 108/2  €  475.000 + IVA 

Caratteristiche

Piano 3
Ascensore Si
Stato Nuovo / In costruzione
Riscaldamento Autonomo, a pavimento, alimentato a pompa di calore

Servizi e accessori

Cancello elettrico Esposizione esterna Fibra ottica Impianto di allarme Impianto tv centralizzato Infissi esterni in triplo vetro / PVC Porta blindata VideoCitofono

Referente

Immobiliare Turismo

Storico

Pubblicato 01 Apr 2026
Aggiornato 25 May 2026
Sul mercato 54 giorni
ID Annuncio 127609762

Recensioni

Vedi tutte
S

Silvano D'Amico

5.0

Appena sono entrato nel magazzino ho notato subito l’efficienza con cui hanno gestito la praticità di accesso. L’agenzia si è dimostrata estremamente affidabile e precisa nella gestione della document...

S

Sandro Gagliardi

4.3

Le esperienze precedenti con altre agenzie erano state spesso confuse e poco chiare, ma questa volta è stato diverso. Ho trovato un reale accompagnamento durante le visite e le spiegazioni sono state...

R

Rocco Diamante

4.0

Ricordo ancora quando, grazie alla disponibilità e onestà dell'agenzia, ho trovato subito un appartamento che rispondeva alle mie esigenze. Sono stato molto colpito dalla professionalità del team, che...