Vendita Appartamento

Appartamento

Strada Castel Maiolo, Marentino, Torino

Prezzo
130
mq
3
Locali
1
Camere
1
Bagni

Recensisci questo Immobile

Devi essere registrato per lasciare una recensione.

Accedi

Nessuna recensione ancora. Sii il primo!

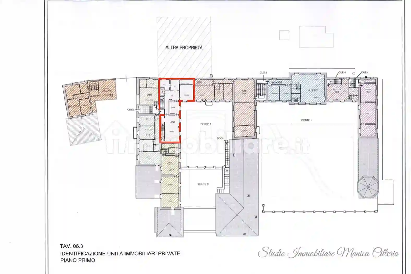
Descrizione

All’interno di un esclusivo complesso settecentesco, vincolato dal Ministero dei Beni Culturali e Ambientali, immerso in un parco storico privato di circa 30.000 mq, proponiamo in VENDITA RESIDENZA DI CHARME da ristrutturare (A5), rara per autenticità e fascino. L’appartamento conserva preziosi elementi architettonici originali, tra cui soffitti affrescati, soffitti lignei a cassettoni e travi a vista, che restituiscono l’eleganza senza tempo della dimora storica. La proprietà si sviluppa su due livelli al piano terreno ingresso di rappresentanza, ripostiglio e spogliatoio; al piano nobile, raggiungibile tramite una suggestiva scala in pietra di Luserna, dove trovano spazio un salone di grande fascino con camino incorniciato da una libreria in legno su misura, cucinotta, camera padronale di generose dimensioni e bagno. Completa la residenza area di parcheggio privata, parco, serre ed orto a uso comune. Una proposta unica, ideale per chi ricerca una residenza di prestigio, capace di coniugare storia, natura e personalizzazione, all’interno di un contesto riservato e di assoluta eleganza. Spese condominiali euro 2000,00 a.c. annue. Ape esente

Caratteristiche

Piano 1
Ascensore No
Stato Da ristrutturare
Riscaldamento Autonomo, alimentato a gpl

Servizi e accessori

Caminetto Cancello elettrico Esposizione esterna Impianto tv centralizzato Infissi esterni in vetro / legno

Posizione

Referente

Studio Immobiliare di Monica Citterio

Storico

Pubblicato 02 Apr 2026
Disattivato 30 Apr 2026
Sul mercato 55 giorni
ID Annuncio 127621692

Recensioni

Vedi tutte
G

Gabriella Lodi

5.0

Ho trovato l’appartamento vista mare che cercavo davvero in pochissimo tempo, sono stata sorprendentemente soddisfatta della rapidità e della cura con cui mi hanno seguita. Sono stata aiutata passo do...