Vendita Appartamento

Appartamento

Via Bruno Buozzi, Andria, Barletta-Andria-Trani

Prezzo
Ottimo Affare: 26% sotto la media
166
mq
4
Locali
3
Camere
2
Bagni

Recensisci questo Immobile

Devi essere registrato per lasciare una recensione.

Accedi

Nessuna recensione ancora. Sii il primo!

Descrizione

Rif. AC062

Proponiamo in vendita ampio e luminoso quadrilocale situato in Via Bruno Buozzi, in posizione strategica a Andria, in una zona particolarmente apprezzata per la presenza di numerosi servizi, attività commerciali, scuole e per il facile accesso alle principali arterie cittadine, ideali anche per un rapido collegamento in uscita dalla città. L’immobile è ubicato ad un piano alto panoramico, servito da ascensore, caratteristica che garantisce luminosità, riservatezza e una piacevole vista aperta. *Le immagini sono state generate con intelligenza artificiale e mostrano gli ambienti senza arredi a scopo dimostrativo

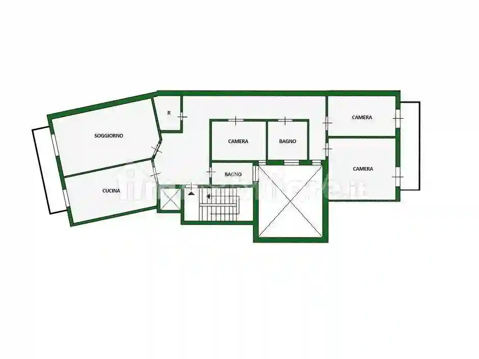
INTERNO: L’appartamento si distingue per la generosa metratura e la funzionale distribuzione degli ambienti: l’ingresso, ampio e accogliente, introduce alla zona giorno composta da cucina abitabile e spazioso soggiorno, ambienti ideali per vivere la casa in totale comfort. Un comodo ripostiglio e il primo bagno, adibito a lavanderia, completano la zona giorno, offrendo praticità e organizzazione. La zona notte ospita tre camere da letto ben proporzionate e un secondo bagno ampio, soluzione perfetta per famiglie o per chi desidera ambienti versatili da adibire a studio o stanza ospiti. Punto di forza dell’immobile sono i due balconi con doppia esposizione, uno con affaccio interno e uno esterno, che regalano luce naturale durante tutto l’arco della giornata e una suggestiva vista sullo Stadio degli Ulivi, elemento distintivo che valorizza ulteriormente la proprietà. Completa la soluzione un posto auto, valore aggiunto fondamentale in zona. Una proposta ideale per chi è alla ricerca di spazi ampi, luminosità, panorama e comodità, in un contesto urbano ben collegato e ricco di servizi.

Per avere ulteriori informazioni potete contattarci senza impegno.

Caratteristiche

Piano 5
Ascensore Si
Stato Buono / Abitabile

Servizi e accessori

Esposizione doppia

Posizione

Zona: Pineta - Maraldo (Pineta, Maraldo, Inps, Trinità, Iper)

Referente

Iconacasa Andria

Storico

Pubblicato 02 Apr 2026
Disattivato 02 May 2026
Sul mercato 56 giorni
ID Annuncio 127624042