Vendita Appartamento

Appartamento

Via Giorgio Almirante, San Giovanni Lupatoto, Verona

Prezzo
145
mq
3
Locali
2
Camere
1
Bagni

Recensisci questo Immobile

Devi essere registrato per lasciare una recensione.

Accedi

Nessuna recensione ancora. Sii il primo!

Descrizione

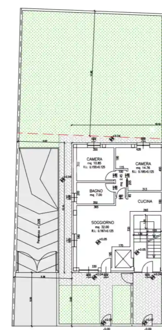
San Giovanni Lupatoto - Proponiamo un immobile di nuova costruzione, disponibile per la vendita. Situato al piano terra, questo appartamento signorile offre una superficie di 80 mq, distribuiti su quattro locali ben progettati e con giardino privato di 130mq. L'abitazione, con partenza prevista del cantiere per settembre 2026 e con consegna per fine 2027, è pensata per garantire comfort e funzionalità. Gli spazi interni sono ampi e luminosi, ideali per chi cerca un ambiente moderno e accogliente. La disposizione degli ambienti permette una personalizzazione secondo le proprie esigenze, con la possibilità di creare zone giorno e notte ben distinte. La posizione strategica consente di godere della tranquillità del comune, senza rinunciare alla vicinanza ai principali servizi e collegamenti. Un'opportunità unica per chi desidera investire in una soluzione abitativa di qualità, in un contesto residenziale di pregio.
Completano la proprietà al piano interrato il garage che può accogliere tranquillamente due auto e posto auto esterno.
L'immobile sarà consegnato in classe 'A4' con - riscaldamento a pavimento
- 3 kwh di impianto fotovoltaico
- pompa di calore
- serramenti basso emissivi in pvc
- cappotto termico da 14 cm
Attuale possibilità di personalizzazione spazi interni.

Caratteristiche

Piano T
Ascensore No
Stato Nuovo / In costruzione
Riscaldamento Autonomo, a pavimento, alimentato a solare

Posizione

Referente

Affiliato Tecnocasa: DANICA SAS

Storico

Pubblicato 03 Apr 2026
Disattivato 16 Apr 2026
Sul mercato 58 giorni
ID Annuncio 127665152