Vendita Appartamento

Appartamento

Via Giorgio Almirante, San Giovanni Lupatoto, Verona

Prezzo
150
mq
3
Locali
2
Camere
1
Bagni

Recensisci questo Immobile

Devi essere registrato per lasciare una recensione.

Accedi

Nessuna recensione ancora. Sii il primo!

Descrizione

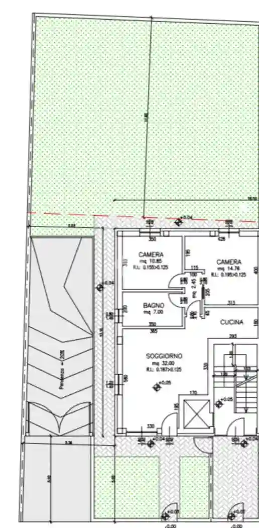
San Giovanni Lupatoto - NUOVA COSTRUZIONE ALYSSA 5.0 in classe energetica 'A4'. In contesto quadrifamiliare, proponiamo in vendita appartamento al piano terra con giardino angolare di 160 mq, composto da soggiorno con angolo cottura, due camere da letto e bagno finestrato. Completa la proprietà al piano interrato garage.
Inizio cantiere previsto per settembre 2026 e consegna immobile entro fine 2027.
La soluzione sarà dotata di:
- riscaldamento a pavimento in pompa di calore;
- cappotto termico da 14 cm;
- serramenti in pvc bassoemissivi;
- tapparelle motorizzate;
- Finiture con materiali di prima scelta.
Possibilità al momento di personalizzare anche la distribuzione degli spazi interni senza alcun costo aggiuntivo.

Caratteristiche

Piano T
Ascensore No
Stato Nuovo / In costruzione
Riscaldamento Autonomo, a pavimento, alimentato a solare

Posizione

Referente

Affiliato Tecnocasa: DANICA SAS

Storico

Pubblicato 18 Apr 2026
Aggiornato 28 Apr 2026
Sul mercato 10 giorni
ID Annuncio 128364824