Vendita Appartamento Luxury

Appartamento

Via Giuseppe Giusti, Sesto Fiorentino, Firenze

Prezzo
140
mq
5+
Locali
6
Camere
2
Bagni

Recensisci questo Immobile

Devi essere registrato per lasciare una recensione.

Accedi

Nessuna recensione ancora. Sii il primo!

Descrizione

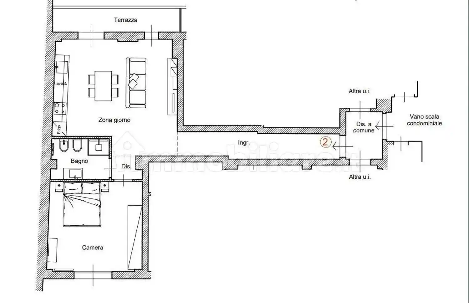
A Sesto Fiorentino in zona centrale no ZTL, vendesi appartamento in contesto signorile di circa 140 mq posto al terzo piano di quattro, servito da ascensore. Al suo interno l'appartamento e' composto da un bel salone doppio molto luminoso, cucina con tinello, due camere matrimoniali ed una camera doppia, due bagni finestrati oltre una grande terrazza di 150 mq in parte verandata. Completa la proprieta' un garage ad uso esclusivo ed una cantina. Il riscaldamento e' condominiale con valvole a consumo, le spese condominiali si aggirano sulle 130 euro mensili oltre risvaldamento. La classe energetica e' G. Il mio studio tratta molti altri immobili di vari prezzi e metrature potete vederli nel sito casesenzaconfini. com, potete chiedere qualunque info inviando una mail a. Case Senza Confini offre un servizio a 360 gradi nella compravendita con azioni personalizzate, costanti e puntuali dalla prima visita al rogito. Offriamo, se desiderato, un servizio di assistenza per ogni esigenza relativa a qualunque problematica possa presentarsi in collaborazione con professionisti in tutti i settori specifici. N. B. Alcune foto dell'annuncio possono essere a carattere puramente indicativo del tipo di immobile e caratteristiche generali della zona e del tipo di architettura di interni ed esterni Se desiderate avere maggiori informazioni e riferimenti esatti contattateci via mail o al.

Caratteristiche

Piano 3
Ascensore Si
Riscaldamento Centralizzato

Posizione

Referente

Case Senza Confini

Storico

Pubblicato 02 Apr 2026
Disattivato 07 May 2026
Sul mercato 54 giorni
ID Annuncio 127728252

Recensioni

Vedi tutte
F

Fulvio Frigerio

4.3

Se cercate un’agenzia affidabile, consiglio di scegliere chi è flessibile negli orari e ascolta veramente le vostre esigenze. Ho trovato un appartamento più grande per la mia famiglia in crescita graz...

M

Marco Resta

4.3

Stavo cercando una seconda casa al mare che fosse accogliente e ben posizionata, e grazie all'agenzia ho trovato esattamente quello che desideravo. Mi sono sentito seguito con grande competenza in ogn...