Vendita Appartamento

Appartamento

PRATO DELLA VALLE, 1, Padova, Padova

Prezzo
Buon Prezzo: 18% sotto la media
70
mq
2
Locali
1
Camere
1
Bagni

Recensisci questo Immobile

Devi essere registrato per lasciare una recensione.

Accedi

Nessuna recensione ancora. Sii il primo!

Descrizione

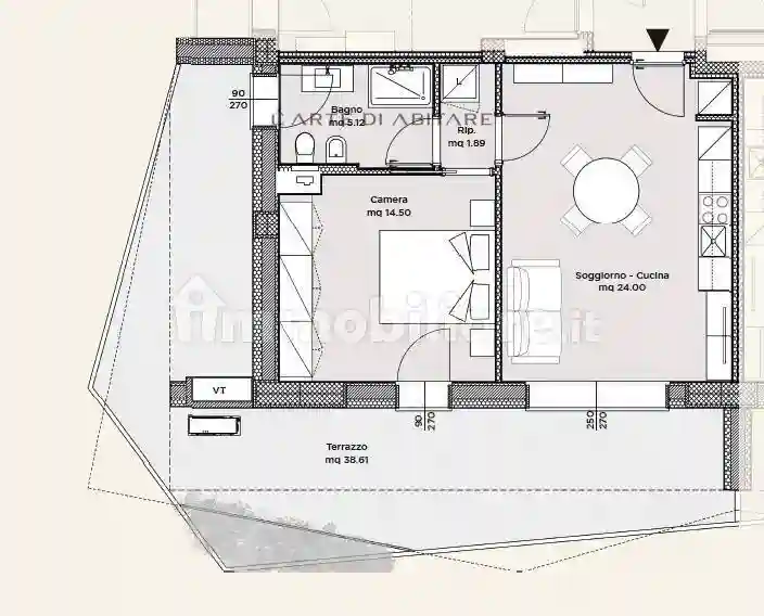
L’unità è moderno e funzionale, ideale per chi cerca una casa essenziale ma curata, immersa nella luce e nel verde. Una soluzione perfetta per single, giovani coppie o professionisti, in un contesto residenziale sostenibile e all’avanguardia.

La zona giorno si apre su un open-space con cucina e soggiorno ben distribuiti, pensati per offrire massima vivibilità e comfort. La grande vetrata scorrevole garantisce luminosità naturale e conduce a un ampio terrazzo abitabile di quasi 40 mq, un vero salotto all’aria aperta dove trascorrere momenti di relax o convivialità.

La camera da letto matrimoniale è accogliente e ben dimensionata. Completano l’unità un bagno finestrato, un ripostiglio pratico e un layout studiato per garantire funzionalità e comfort quotidiano.

Come tutte le residenze L'Abitare San Lazzaro è stata progettata secondo gli standard dell’abitare evoluto:
- riscaldamento a pavimento
- predisposizione per climatizzazione e impianto antifurto
- finiture personalizzabili da un capitolato selezionato
- isolamento termo-acustico e impianti ad alta efficienza
- classe energetica presunta A4

L'Abitare San Lazzaro è un nuovo modo di abitare Padova: un grande parco urbano attrezzato con oltre 2 km di percorsi fitness, ciclopedonali e aree verdi, dove natura e architettura si fondono in perfetto equilibrio.
L'Abitare San Lazzaro è molto più di una casa: è una scelta di vita consapevole, moderna e connessa al futuro.

Disclaimer
Il presente annuncio potrebbe contenere degli errori. La descrizione dei locali potrebbe non essere conforme. Ogni condizione di vendita, metratura, specifica o altro riguardante l'immobile o le condizione di vendita vengono concordate in fase di appuntamento e comunque prima di una eventuale proposta di acquisto. Alcune immagini potrebbero essere errate o modificate rispetto alla realtà.

Caratteristiche

Piano 1
Ascensore Si
Stato Nuovo / In costruzione

Servizi e accessori

Cancello elettrico Esposizione doppia Fibra ottica Infissi esterni in doppio vetro / PVC VideoCitofono

Posizione

Zona: Prato della Valle - Pontecorvo (Prato della Valle, Pontecorvo, Santa Croce, Città Giardino)

Referente

L ’Arte di Abitare - Agenzia di Prato Della Valle

Storico

Pubblicato 03 Apr 2026
Aggiornato 26 May 2026
Sul mercato 55 giorni
ID Annuncio 127755312

Recensioni

Vedi tutte
E

Elia Cannavaro

5.0

Ho trovato l’agenzia molto professionale e competente nel mercato immobiliare di Padova. Mi hanno seguito con attenzione e pazienza, aiutandomi a trovare il bilocale giusto dopo il trasferimento per l...

E

Emanuele Calò

4.7

Ho trovato l'appartamento perfetto per la mia famiglia con l'aiuto di questa agenzia, che mi ha seguito con grande professionalità e attenzione. La gestione dello stress durante la trattativa è stata...