Vendita Villa

Villa

Contrada Argentieri, Carovigno BR, Italia, Carovigno, Brindisi

Prezzo
Ottimo Affare: 61% sotto la media
150
mq
5+
Locali
7
Camere
1
Bagni

Recensisci questo Immobile

Devi essere registrato per lasciare una recensione.

Accedi

Nessuna recensione ancora. Sii il primo!

Descrizione

Asta appartamento a Carovigno (BR) [SY608954]
Contrada Argentieri, Carovigno BR, Italia
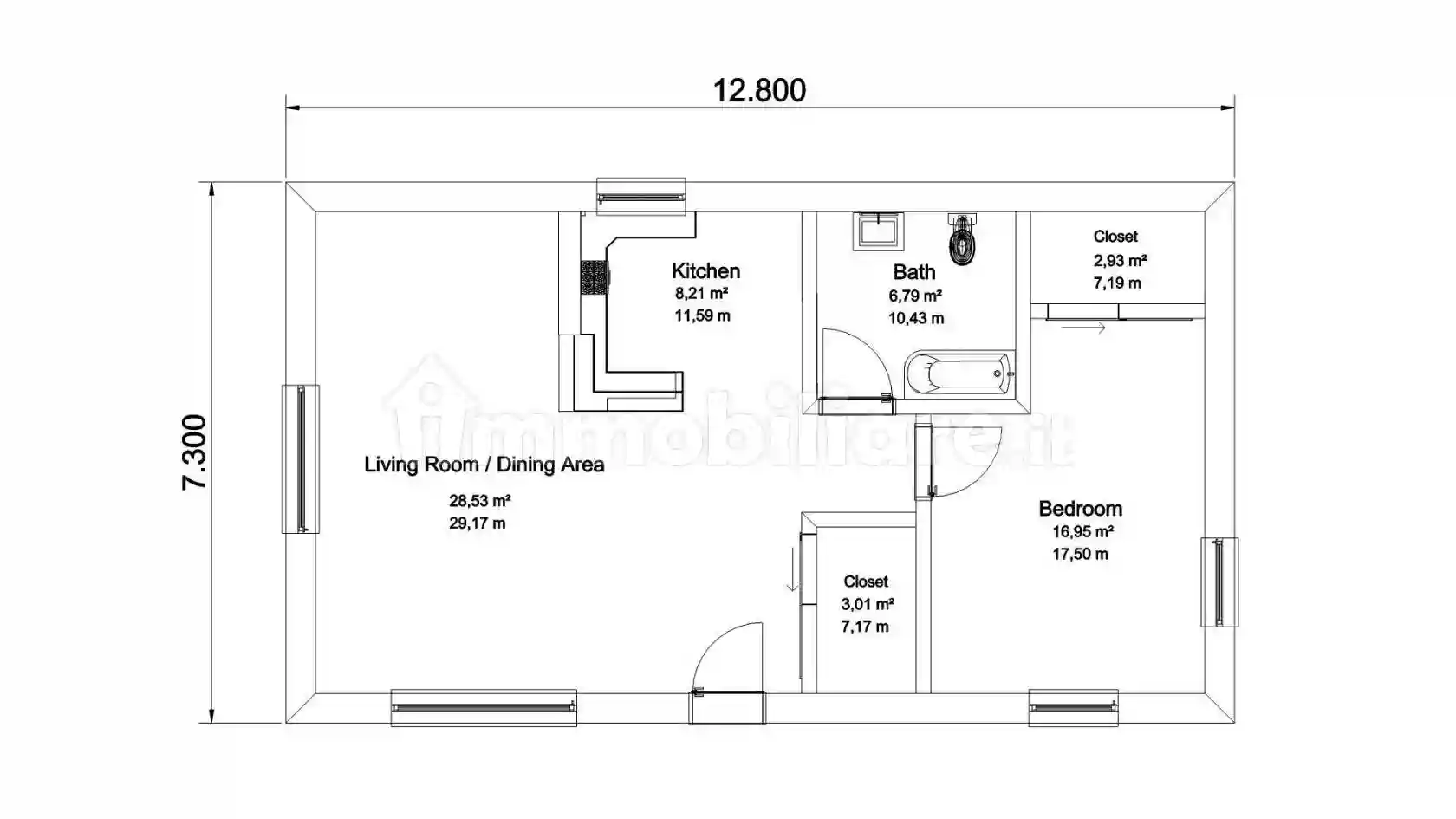
Abitazione rurale isolata con terreno agricolo a CAROVIGNO Contrada Argentieri/Pizzofalcone snc, della superficie commerciale di 149,43 mq per la quota di 1/1 di piena proprietà. L’immobile oggetto di stima consiste in un’abitazione rurale isolata di tipo economico, sviluppata su un unico piano fuori terra con superficie lorda di circa 147,60 mq, corredata da scoperto di circa 534,40 mq e terreno agricolo pertinenziale di circa 4.442 mq. L'abitazione censita al Catasto Fabbricati del Comune di Carovigno al Foglio 86, particella 92 sub. 4, ricade in zona agricola produttiva secondo il PUG vigente. L’accesso avviene tramite cancello su strada interpoderale asfaltata. Il terreno è censito nel Catasto terreni al fg. 86 particelle 92,189,256,258,259 e 261.
LIBERO

Proposta immobiliare in asta. Info dettagliate in agenzia o telefonicamente.

Possibilita’ di Mutuo al 100%

Per maggiori informazioni puoi contattare il nostro referente di zona

SU QUESTO IMMOBILE E’ POSSIBILE:

- Mutuo al 100%
- Visita Interni
- NO Oneri Notarili
- Nessuna Ipoteca
- Agevolazione Prima Casa

Le foto pubblicate potrebbero non corrispondere all'immobile specifico, i documenti ufficiali sono visionabili in filiale.

CENTRO ASTE OFFRE I SEGUENTI SERVIZI:

1. PRIMA CONSULENZA
Appuntamento presso una delle 50 Filiali in Italia per offrire chiarimenti sulle aste ed ascoltare le tue esigenze immobiliari.

2. MEDIAZIONE CREDITIZIA
Servizio esclusivo ad alto valore aggiunto, proponendo un ventaglio di prodotti tra i più completi con studio fattibilità per la partecipazione in asta con mutuo fino al 100%

3. ASSISTENZA TECNICO - LEGALE
- Ricerca Immobili ed invio settimanale per email
- Studio della perizia e della documentazione
- Accertamenti catastali per eventuali abusi edilizi
- Accompagnamento Visita Immobile
- Disbrigo pratiche per la partecipazione
- Rappresentanza Legale il giorno della vendita
- Rilascio del decreto di trasferimento in tempi brevi
- Assistenza per il Saldo Prezzo
- Compilazione F24 per Tasse
- Disbrigo Pratiche per Eventuale Sanatoria
- Assistenza alla Consegna Immobile

Per maggiori informazioni puoi contattare il nostro referente di zona
Data Asta: 25-05-2026
Codice Riferimento: SY608954

Caratteristiche

Piano T
Ascensore No
Stato Buono / Abitabile
Riscaldamento Autonomo, a radiatori, alimentato a metano

Servizi e accessori

Caminetto Cancello elettrico Cucina Impianto di allarme Impianto tv singolo Mansarda Porta blindata

Posizione

Referente

Centro Aste Taranto

Storico

Pubblicato 02 Apr 2026
Aggiornato 25 May 2026
Sul mercato 54 giorni
ID Annuncio 127867730

Recensioni

Vedi tutte
G

Gabriella Bellini

4.7

Ho trovato l’ufficio perfetto per la mia attività in poco tempo, grazie alla professionalità e alla flessibilità dell'agenzia negli orari di visita. Sono stata seguita passo passo, con grande attenzio...

G

Gabriele Pasquale

4.7

Appena sono entrato in agenzia, sono stato colpito dalla cura con cui hanno preparato tutta la documentazione, rendendo il processo davvero semplice e trasparente. Mi hanno seguito passo dopo passo, d...