Indietro
Vendita Villetta a schiera

Villetta a schiera

Sarcedo, Vicenza

Prezzo
214
mq
5
Locali
3
Camere
2
Bagni

Recensisci questo Immobile

Devi essere registrato per lasciare una recensione.

Accedi

Nessuna recensione ancora. Sii il primo!

Descrizione

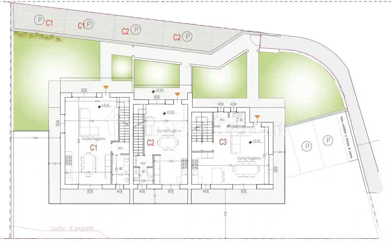
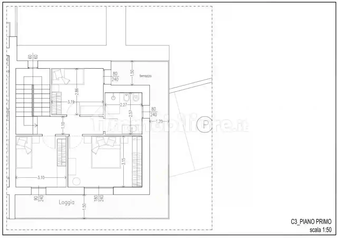
CASA A SCHIERA DI TESTA C3

Trattative riservate Immobiliare Unica Colceresa via Marconi 2 - 04241590376 - 3381150102
SARCEDO casa di testa con 82mq di giardino

A pochissima distanza da Thiene e dal centro di Sarcedo disponibili tre case a schiera due di testa e una di centro.
Le case fanno parte di un piccolo complesso trifamiliare, sviluppate in piano terra, piano primo e piano interrato.

Le case di testa hanno ingresso indipendente, giardino di proprietà, cucina soggiorno, antibagno e bagno al piano terra, due camere e camera matrimoniale e bagno al piano primo, garage doppio in parallelo e centrale termica al piano interrato.

Le case sono progettate per garantire un basso consumo energetico e saranno in classe A4.
L'edificio sarà antisismico, con tecnologia isolante termo-acustico nei solai e nelle pareti, serramenti in pvc con 6 camere d'isolamento e tre guarnizioni e avvolgibili motorizzati in alluminio. Riscaldamento a pavimento con pompa di calore. Predisposizione aria condizionata sia zona giorno che zona notte, pavimentazione in grès nella zona giorno e legno nella zona notte, sanitari sospesi, portoncino blindato, videocitofono, predisposizione antifurto, impianto fotovoltaico da 6Kwp, cancelli pedonali in ferro zincato e verniciato.
Consegna fine 2027 inizio 2028.

Caratteristiche

Stato Nuovo / In costruzione
Riscaldamento Autonomo, a pavimento, alimentato a fotovoltaico

Servizi e accessori

Esposizione esterna Infissi esterni in triplo vetro / PVC Porta blindata

Referente

UNICA Immobiliare

Storico

Pubblicato 03 Apr 2026
Disattivato 23 Apr 2026
Sul mercato 58 giorni
ID Annuncio 127951830

Recensioni

Vedi tutte
G

Giuseppe Malandrino

5.0

Ho scelto questa agenzia perché mi hanno colpito la loro flessibilità negli orari e la capacità di seguirmi passo passo in ogni fase. Dopo anni di affitto, finalmente ho trovato la casa perfetta grazi...

M

Michele Pagano

4.7

Ho scelto questa agenzia perché mi hanno colpito la loro rapidità e la tempestività nelle risposte, davvero incredibili! Sono stato molto seguito e aiutato passo dopo passo, il loro supporto è stato f...

G

Grazia Carmignani

4.7

La professionalità con cui mi hanno assistita durante tutta la trattativa mi ha colpito davvero. Sono stata seguita passo dopo passo, anche quando il processo sembrava complicato, e l'onestà nelle val...

G

Gloria Vinci

4.3

Prima di trovare questa agenzia, avevo fatto diverse visite senza grande fortuna, ma con loro è stato tutto diverso: mi hanno accompagnata passo dopo passo nelle visite, facendomi sentire propria ogni...