Vendita Appartamento

Appartamento

Salita Santa Caterina, 10, 16123 Genova GE, Italia, Genova, Genova

Prezzo
Ottimo Affare: 67% sotto la media
328
mq
5+
Locali
1
Camere
3+
Bagni

Recensisci questo Immobile

Devi essere registrato per lasciare una recensione.

Accedi

Nessuna recensione ancora. Sii il primo!

Descrizione

Proponiamo in vendita un appartamento residenziale situato nel cuore del centro storico di Genova, all’interno di un palazzo signorile in Salita Santa Caterina 10, una delle vie più caratteristiche e prestigiose della città.

L’immobile si trova in una posizione di assoluto pregio, lungo la storica salita che collega Piazza delle Fontane Marose a Largo Eros Lanfranco (Piazza Corvetto), a breve distanza da Teatro Carlo Felice e da Piazza De Ferrari, centro nevralgico della vita culturale e amministrativa cittadina. Nelle immediate vicinanze si trova inoltre Palazzo Doria‑Spinola, attuale sede della Prefettura e degli uffici della Città Metropolitana di Genova.

L’appartamento è inserito in un contesto architettonico di grande valore storico, lungo una via che segna il confine tra i quartieri della Maddalena, del Molo e di Portoria, caratterizzata dalla presenza di importanti palazzi cinquecenteschi appartenenti alla famiglia Spinola e parte del celebre sistema dei Palazzi dei Rolli.

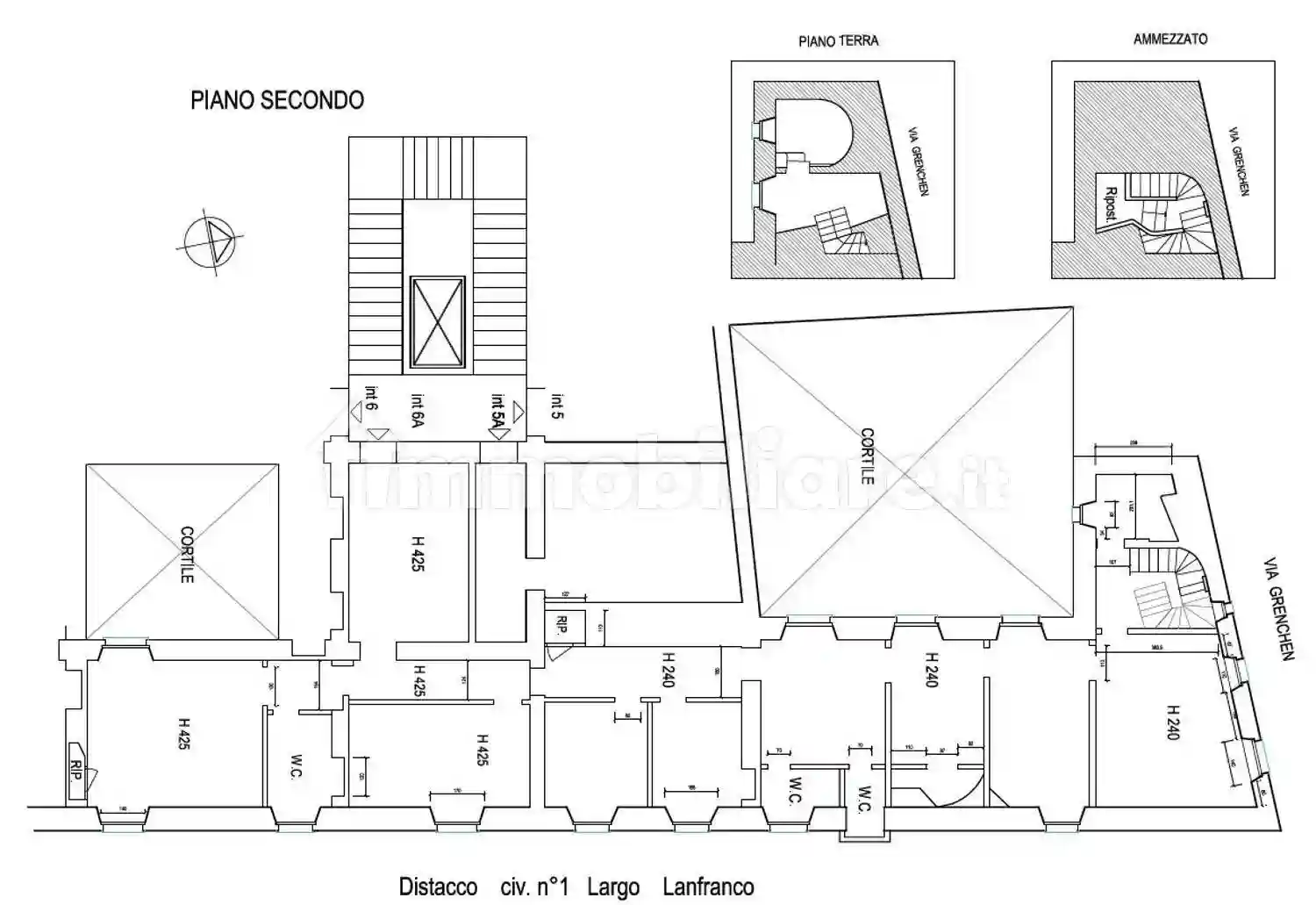
L’unità immobiliare si sviluppa su spazi articolati e funzionali: l’ingresso conduce a un corridoio distributivo che collega diversi ambienti abitativi, con più locali utilizzabili come soggiorno, camere o studi, oltre a servizi igienici e locali accessori. Alcuni affacci si sviluppano verso gli spazi interni del palazzo, contribuendo a garantire tranquillità e privacy nonostante la centralità della posizione.

La soluzione rappresenta un’interessante opportunità sia come residenza nel centro storico di Genova, sia come investimento immobiliare, grazie al contesto storico di pregio e alla vicinanza ai principali servizi, uffici istituzionali, attività commerciali e luoghi simbolo della città.

POSSIBILITA' DI FRAZIONAMENTO DELL'IMMOBILE

Caratteristiche

Piano 2
Ascensore Si
Stato Buono / Abitabile
Riscaldamento Centralizzato

Posizione

Zona: Centro Città (Centro)

Referente

Quimmo Agency

Storico

Pubblicato 17 Apr 2026
Aggiornato 24 Apr 2026
Sul mercato 7 giorni
ID Annuncio 128287984

Recensioni

Vedi tutte
R

Renata Giannetti

5.0

Quando ho deciso di comprare un terreno a Milano, cercavo un’agenzia seria e affidabile, e ho trovato quella giusta. Mi ha colpito la loro precisione nelle pratiche e l’accompagnamento durante tutte l...

U

Umberto Valli

4.7

Ricordo bene quando ho trovato il terreno ideale a Milano grazie a questa agenzia. Sono stato seguito con molta professionalità e serietà, che mi ha fatto sentire sicuro in ogni fase del processo. Mi...

G

Gloria Andreoli

4.7

Se state cercando un’agenzia immobiliare affidabile a Milano, consiglio di rivolgervi senza dubbi. Mi sono trovata molto bene: sono stata seguita passo passo, dall’individuazione dell’appartamento all...

V

Valentina Baldi

4.7

Ho trovato un appartamento perfetto per i miei figli universitari grazie a questa agenzia. Mi sono sentita seguita passo dopo passo, con grande professionalità e trasparenza in ogni fase della trattat...

S

Sonia Fiorentino

4.0

Ho trovato l’agenzia molto professionale e affidabile: sono stata seguita con puntualità in ogni appuntamento e hanno gestito tutta la parte burocratica in modo efficiente. Mi sono sentita supportata...