Vendita Appartamento

Appartamento

Via Guglielmo Marconi, 16, Ponte di Piave, Treviso

Prezzo
Ottimo Affare: 35% sotto la media
111
mq
3
Locali
1
Camere
2
Bagni

Recensisci questo Immobile

Devi essere registrato per lasciare una recensione.

Accedi

Nessuna recensione ancora. Sii il primo!

Descrizione

L’unità immobiliare fa parte del complesso condominiale “PARADISO” ubicato a sud del territorio comunale di Ponte di Piave, nel centro abitato del paese, al civico n. 16 di Via G. Marconi (SR 13), asse di collegamento in direzione nord con il Comune di Oderzo e in direzione ovest con la città di Treviso. Verso sud, in direzione Jesolo, la Strada Provinciale 83 collega il Comune di Ponte di Piave con i comuni di Noventa di Piave e San Donà di Piave. Il Comune di Ponte di Piave è dotato di tutti i servizi pubblici (scuole, presidi sanitari, luoghi di culto, uffici pubblici, etc.) e di prima necessità ed è facilmente collegato ai principali centri urbani mediante il servizio di pubblico trasporto.
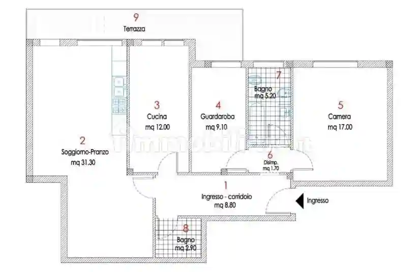
L’unità abitativa, con esposizione nord, ubicata al piano 1°, si sviluppa su una superficie utile abitabile di circa complessivi 88.00 m², oltre ad un terrazzo di 12.00 m² ed un garage di catastali 19.00 m² all’interno dell’autorimessa al piano seminterrato. L’unità immobiliare si compone di ingresso/disimpegno, ampia zona giorno, cucina, n. 1 camera,studio e n. 2 bagni.
Si segnala che i locali “cucina” e “guardaroba” presentano superfici e requisiti igienico sanitari tali da poter essere eventualmente convertiti, previa richiesta di cambio d’uso, in n. due camere da 1 PL. La stanza “cucina” infatti non è di fatto attrezzata ed utilizzata come tale poiché la zona cottura è stata realizzata all’interno della zona pranzo (angolo cottura)Pertanto l’unità immobiliare, attualmente composta da 1 sola camera da letto potrebbe potenzialmente contare tre camere.

L’immobile in pubblicità verrà venduto dal Tribunale tramite un’asta pubblica e presenta delle caratteristiche molto interessanti ed un prezzo estremamente conveniente.
AGL ASTE IMMOBILIARI SRL è la società di consulenza leader in Italia, con oltre 170 uffici su tutto il territorio, che segue il cliente in tutto il percorso relativo all'acquisto tramite asta giudiziaria grazie agli oltre 1.000 professionisti tra geometri, avvocati e commercialisti che gravitano all’interno della nostra rete.
Oltre 10.000 persone, in questi ultimi mesi, hanno dato fiducia ai nostri servizi quali:
- un portale in costante aggiornamento con l’elenco completo di tutti gli immobili delle banche e quelli oggetto di aste, fallimenti e concordati;
- una consulenza tecnica, legale e finanziaria preventiva;
- la ricerca, l’acquisizione e l’analisi della documentazione inerente l’immobile oggetto d’interesse;
- Il sopralluogo con un tecnico incaricato per la visione del bene da aggiudicarsi;
- lo studio di fattibilità economica per la migliore strategia da adottare in asta rendendo così semplice e sicuro l’acquisto di un immobile nel mercato giudiziario;
- la partecipazione all’asta con un nostro professionista;
- l’assistenza completa sulle eventuali problematiche giudiziali prima e dopo l’acquisto;
- un canale preferenziale per l’ottenimento del miglior mutuo disponibile sul mercato, anche del 100 %, grazie agli accordi con oltre 30 istituti di credito per avere così il costo del mutuo inferiore al prezzo di un affitto;
- un accordo esclusivo con i creditori per restituire il debito ad un importo inferiore rispetto a quello in origine evitando, così, la perdita dell’immobile (questo servizio riservato agli esecutati).

Chiama subito il numero e fissa un appuntamento per ottenere la tua consulenza senza impegno e visita il nostro sito https://www.aglasteimmobiliari.it.
FILIALE TREVISO: Via Noalese 61N (zona Aereoporto)
FILIALE MESTRE: Piazzetta Olivotti 11 (si accede da via Degan, laterale di Via Piave)

Le foto pubblicate potrebbero non corrispondere all'immobile specifico, i documenti ufficiali sono visionabili in filiale.
https://www.aglasteimmobiliari.it/azienda

Caratteristiche

Piano S, 1
Ascensore Si
Stato Buono / Abitabile
Riscaldamento Autonomo, a radiatori, alimentato a gas

Servizi e accessori

Cucina Esposizione esterna Impianto tv centralizzato Infissi esterni in vetro / legno

Posizione

Referente

AGL Treviso - Venezia

Storico

Pubblicato 16 Apr 2026
Aggiornato 20 Apr 2026
Sul mercato 5 giorni
ID Annuncio 128324814

Recensioni

Vedi tutte
P

Piero Borgia

4.7

Ho trovato la casa perfetta in pochissimo tempo grazie alla loro rapida risposta e all’ampia scelta di immobili disponibili. Mi hanno seguito passo dopo passo con molta cordialità e professionalità, r...

P

Patrizia Visconti

4.3

Se state cercando un'agenzia immobiliare affidabile, vi consiglio di affidarsi a chi vi supporta con entusiasmo e professionalità. Sono stata seguita passo passo durante l'acquisto della mia prima cas...