Indietro
Vendita Rustico - Casale

Rustico - Casale

via davanzello , 2, Calenzano, Firenze

Prezzo
Ottimo Affare: 40% sotto la media
110
mq
4
Locali
2
Camere
1
Bagni

Recensisci questo Immobile

Devi essere registrato per lasciare una recensione.

Accedi

Nessuna recensione ancora. Sii il primo!

Descrizione

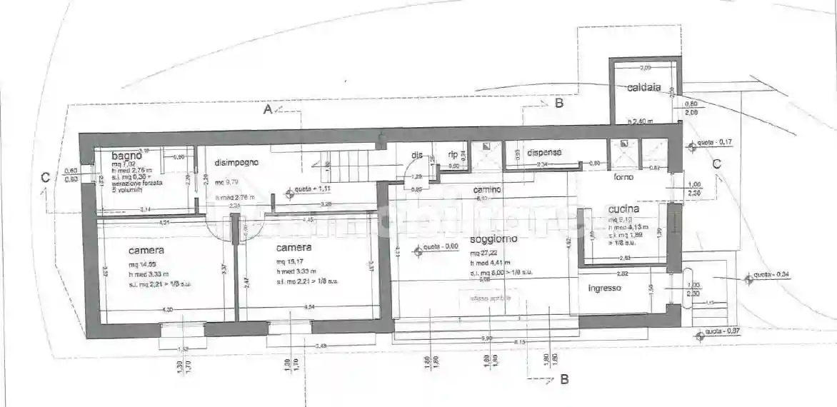
calenzano zona leccio , rudere da ristrutturare in posizione nel verde , libero su 4 lati , mq 110 , giardino circa mq 3000 , cosi diviso: ingresso indipendente , ampio soggiorno di mq 27 con camino , cucina separato con forno , dispensa , disimpegno per zona notte con due camere matrimoniali ed un bagno con finestra molto ampio oltre mq 7 , locale tecnico per caldaia esterno . progetto compreso ed oneri gia' pagati . la zona notte si presenta rialzata rispetto alla zona giorno . nelle foto ci sono piante di progetto , sezioni e prospetti . per qualsiasi informazione chiamare in ufficio , immobile molto bello , un'occasione per avere una casa indipendente senza perdere tempo in progettazioni ed altro , possibilita' ovviamente di leggere modifiche . zona bellissima in mezzo al verde . viene venduto progetto e terreno con immobile da realizzare . classe energetica: g

Caratteristiche

Piano T
Ascensore No
Stato Da ristrutturare
Riscaldamento Autonomo

Posizione

Referente

Studio Della Nave

Storico

Pubblicato 25 Apr 2026
Aggiornato 28 Apr 2026
Sul mercato 3 giorni
ID Annuncio 128542604