Vendita Appartamento

Appartamento

Via Santissimo Rosario, 9, Bolzano, Bolzano

Prezzo
117
mq
5+
Locali
4
Camere
2
Bagni

Recensisci questo Immobile

Devi essere registrato per lasciare una recensione.

Accedi

Nessuna recensione ancora. Sii il primo!

Descrizione

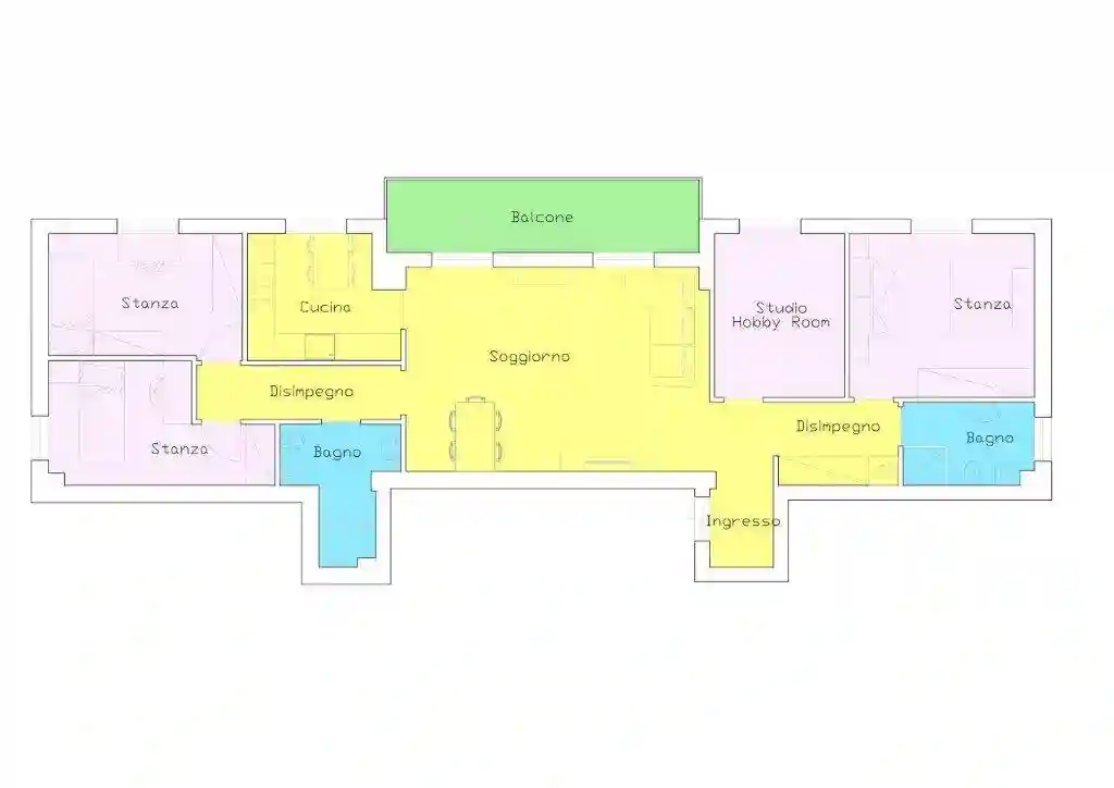
Ampio Pentalocale con cucina separata, doppi servizi e Posti Auto
???? Via Santissimo Rosario 9 – Bolzano

In vendita in esclusiva – Immobiliare Italia
Nel vivace quartiere di Oltrisarco, in una zona comoda e ricchissima di servizi con supermercato e fermata dell’autobus a soli 50 metri, oltre a farmacie, negozi e scuole nelle immediate vicinanze, proponiamo in esclusiva un ampio pentalocale di 117 mq, al quarto e ultimo piano completamente ristrutturato nel 2018.
La ristrutturazione ha unito due unità abitative, creando un grande appartamento moderno, funzionale e perfettamente organizzato, mantenendo però la predisposizione degli impianti per un’eventuale futura divisione. Una caratteristica preziosa per chi desidera flessibilità nel tempo.

Distribuzione degli spazi
Gli ambienti sono ampi, luminosi e progettati per garantire comfort e praticità:
• Grande soggiorno di 24 mq con accesso diretto al grande balcone/terrazzo verandato, chiuso con vetrate amovibili Belle Vetrate, vivibile tutto l’anno e con vista aperta
• Cucina separata di circa 8 mq, ottimamente organizzata
• Quattro camere da letto, perfette per famiglie numerose o per chi desidera spazi versatili (studio, stanza ospiti, hobby)
• Due bagni con doccia, moderni e funzionali
• Corridoi attrezzati con armadiature su misura, pensati per sfruttare ogni spazio in modo intelligente

Dotazioni e comfort
La ristrutturazione del 2018 ha previsto finiture e dettagli di qualità:
• Aria condizionata nella zona giorno
• Infissi con zanzariere integrate
• Vetrate amovibili Belle Vetrate sul terrazzo
• Armadio a muro con lavatrice e asciugatrice integrate
• Portoncino blindato
• Riscaldamento centralizzato con contacalorie e acqua calda con contatori autonomi dei consumi
• Zona bici chiusa con accesso tramite chiavi
• Verde condominiale e orto condominiale a disposizione dei residenti
Un insieme di dotazioni che rende l’appartamento pratico, efficiente e confortevole in ogni stagione.

Stato del condominio
Il condominio si presenta in buone condizioni e non richiede interventi straordinari. Negli ultimi anni è stato oggetto di una manutenzione completa e ben programmata: sono stati rinnovati, la caldaia e l’ascensore funzionante fino al piano e il tetto è stato revisionato. Un insieme di lavori importanti che garantisce una gestione solida, spese sotto controllo e un contesto abitativo affidabile nel tempo.

Pertinenze e posti auto
Completano la proprietà:
• due grandi soffitte, perfette come deposito aggiuntivo
• stenditoio condominiale coperto
• posto auto privato (acquistabile separatamente € 15.000)
• posto auto condominiale
• possibilità di parcheggiare una terza auto o ospiti nell’area condominiale dedicata soggetta a disponibilità
Possibilità di acquisto arredi (€ 10.000).
Una dotazione rara e preziosa per la zona.

Perché sceglierlo
Questo Grande pentalocale è ideale per chi desidera spazi generosi, una cucina separata, quattro camere da letto e doppi servizi, il tutto in un appartamento moderno e già ristrutturato. Il terrazzo verandato, le dotazioni tecniche, i posti auto multipli, le soffitte ampie e la presenza di verde e orto condominiale aggiungono un livello di comfort difficile da trovare in zona. La posizione, servitissima e ben collegata, rende l’abitazione perfetta per famiglie numerose o per chi cerca un immobile versatile, funzionale e con un valore destinato a durare nel tempo.

Caratteristiche

Piano 4
Ascensore Si
Riscaldamento Centralizzato

Servizi e accessori

Armadio a muro Esposizione doppia Infissi esterni in triplo vetro / PVC Porta blindata

Posizione

Zona: Oltrisarco - Aslago (Oltrisarco Aslago, Colle)

Referente

Immobiliare Italia srl

Storico

Pubblicato 25 Apr 2026
Aggiornato 28 Apr 2026
Sul mercato 3 giorni
ID Annuncio 128567354

Recensioni

Vedi tutte
E

Enzo Altieri

4.7

Lavorare con questa agenzia è stato un vero piacere, mi sono sentito subito supportato e preso in cura. La loro disponibilità e tempestività nelle risposte mi hanno fatto sentire molto rassicurato e v...

E

Enrico Strangio

4.3

Ho trovato l'agenzia molto professionale e attenta ai dettagli durante tutto il percorso di investimento. Mi sono sentito seguito con cura e disponibilità, anche dopo aver concluso l’acquisto. È stata...