Vendita Villa

Villa

Via Ghezzi , 46, Comunanza, Ascoli Piceno

54.000 €
Ottimo Affare: 29% sotto la media
75
mq
2
Locali
1
Camere
1
Bagni

Recensisci questo Immobile

Devi essere registrato per lasciare una recensione.

Accedi

Nessuna recensione ancora. Sii il primo!

Descrizione

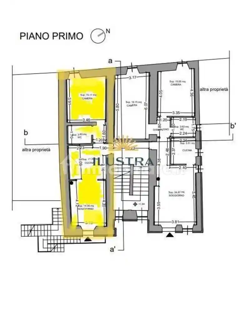
Nel caratteristico centro storico di Comunanza offriamo in vendita una casetta su due livelli completamente ristrutturata di circa 75 mq, composta da cucina-soggiorno al piano terra ed al primo piano una camera matrimoniale, una cameretta ed un bagno con vasca.

Caratteristiche

Stato Buono / Abitabile
Riscaldamento Autonomo

Servizi e accessori

Caminetto Impianto tv singolo Infissi esterni in vetro / legno Mansarda

Posizione

Referente

EBM Property Solutions

Storico

Pubblicato 13 Jan 2026
Aggiornato 25 Feb 2026
Sul mercato 43 giorni
ID Annuncio 45430420

Recensioni

Vedi tutte
L

Letizia Ferretti

5.0

Durante il processo mi sono sentita molto tranquilla, perché ho trovato un’agenzia che mi ha seguita passo passo con grande professionalità. Sono stata aiutata a capire tutte le normative e a sceglier...

T

Tiziana Lazzari

4.7

Durante il processo mi sono sentita rassicurata e supportata, grazie alla conoscenza approfondita delle normative e alla flessibilità negli orari. Sono stata seguita passo passo, trovando facilmente l...

D

Debora Baldini

4.3

Quello che mi ha spinto a scegliere questa agenzia è stata la loro conoscenza approfondita del mercato locale e l’attenzione sincera alle mie esigenze. Sono stata davvero colpita dalla loro disponibil...