Indietro
Albergo in Vendita
Vendita
Vendita Palazzo - Edificio

Albergo in Vendita

Siena, Siena

1.700.000 €
Ottimo Affare: 28% sotto la media
796
mq
5+
Locali
3+
Bagni

Recensisci questo Immobile

Devi essere registrato per lasciare una recensione.

Accedi

Nessuna recensione ancora. Sii il primo!

Descrizione

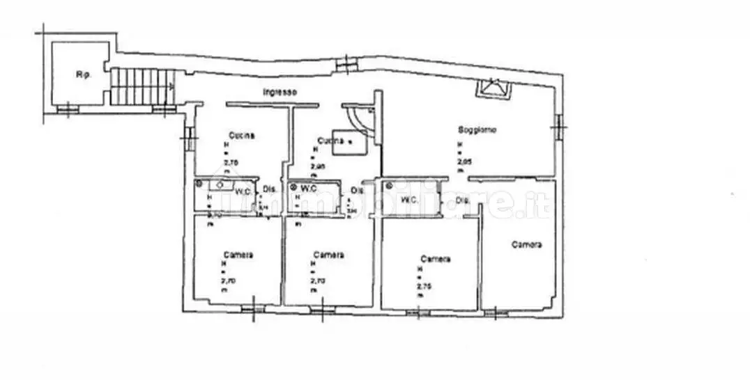
SEMICENTRO OVEST vendesi (immobile e licenza) avviata struttura ricettiva ad uso albergo composta da 17 camere con bagno, hall, sala colazioni con angolo bar e vano bagagli. L'immobile è stato rinnovato di recente. La proprietà è composta dall'albergo di mq. 518 su tre piani, terrazzo di mq 142, giardino circostante di circa mq.1500, piazzale ad uso posteggio di mq. 1000 ed un magazzino di mq. 204. La struttura è corredata da impianto di condizionamento e connessione internet wireless. Ottime condizioni. Attualmente l'albergo ha un contratto di affitto. Certificazione Energetica: classe G, indice 165.00 kWh/m2 anno.

Caratteristiche

Piano Piano terra
Stato Buono / Abitabile
Riscaldamento Centralizzato
Garage 1 in parcheggio/garage comune

Posizione

Zona: Fuori Porta San Marco (Fuori Porta Tufi, Fuori Porta San Marco)

Storico

Pubblicato 29 Dec 2025
Aggiornato 15 Feb 2026
Sul mercato 53 giorni
ID Annuncio 69357512

Recensioni

Vedi tutte
F

Fabiana Genovese

4.3

Grazie di cuore per l’assistenza che ho ricevuto, sono stata molto soddisfatta del supporto ricevuto durante tutta la vendita. La cortesia e la puntualità negli appuntamenti mi hanno fatto sentire in...