Vendita Villa

Villa

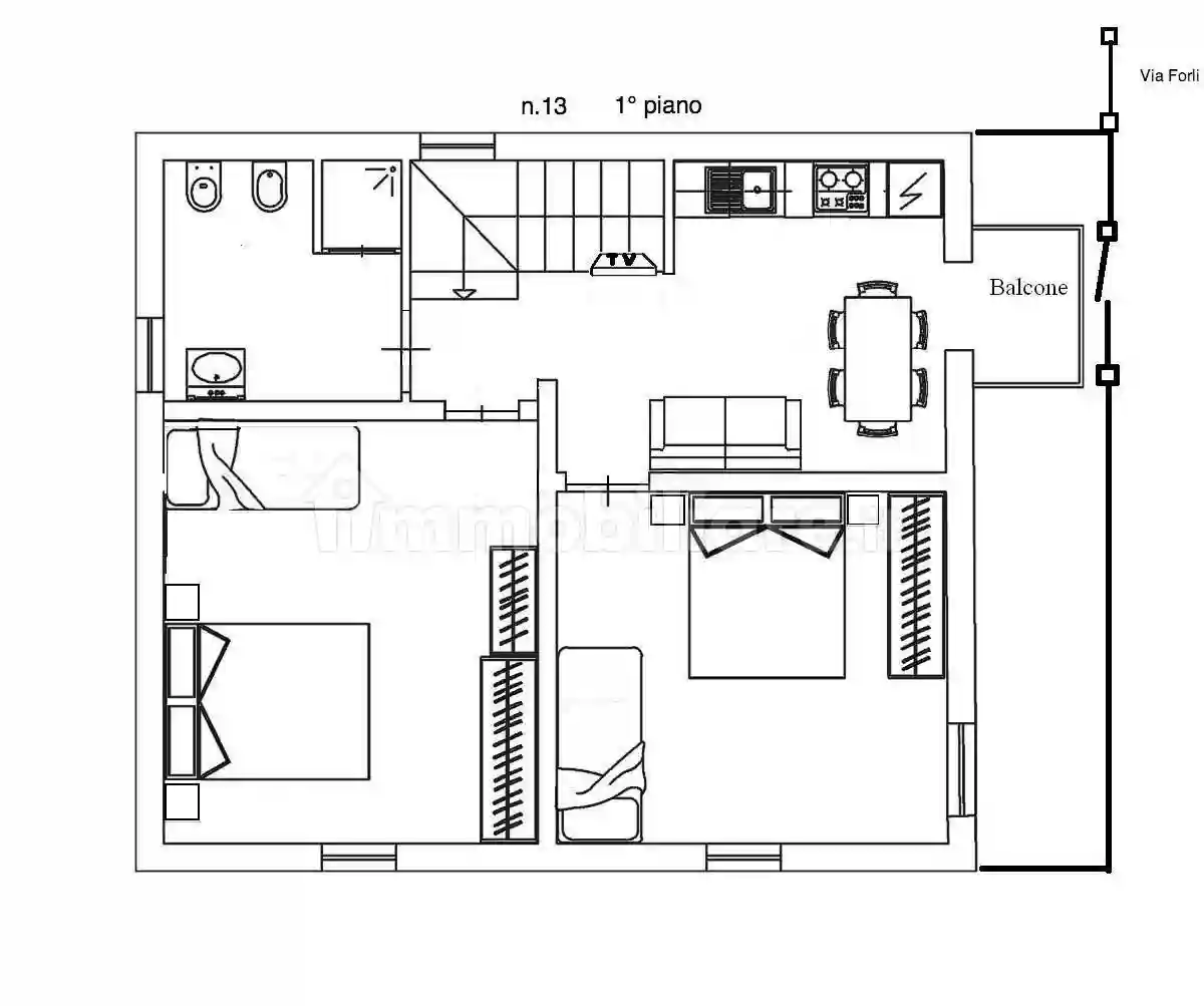
Via Forlì, 1, Cattolica, Rimini

Prezzo
105
mq
3
Locali
2
Camere
1
Bagni

Recensisci questo Immobile

Devi essere registrato per lasciare una recensione.

Accedi

Nessuna recensione ancora. Sii il primo!

Descrizione

Trilocale arredato al primo piano, con 2 grandi camere matrimoniali ciascuna con terzo letto, 1 bagno, 1 soggiorno-angolo cottura, 1 Balcone, 1 Cortile privato, ingresso, sottoscala.Tv 32, Lavatrice, Lavastoviglie, Microonde. Ottima rendita per affitti vacanza da maggio a ottobre.

Caratteristiche

Stato Buono / Abitabile

Posizione

Agenzia Immobiliare

Storico

Pubblicato 12 Jan 2026
Aggiornato 29 Apr 2026
Sul mercato 107 giorni
ID Annuncio 77658686