Indietro
Vendita Rustico - Casale

Rustico - Casale

Serole, Asti

Prezzo
1200
mq
5+
Locali

Recensisci questo Immobile

Devi essere registrato per lasciare una recensione.

Accedi

Nessuna recensione ancora. Sii il primo!

Descrizione

Langhe piemontesi, astigiane, nel verde e nella natura incontaminata delle colline dell'astigiano proprietà di assoluto pregio architettonico, a poca distanza dal centro del piccolo paese di Serole, una perla incastonata fra le ultime colline dell'Alta Langa.
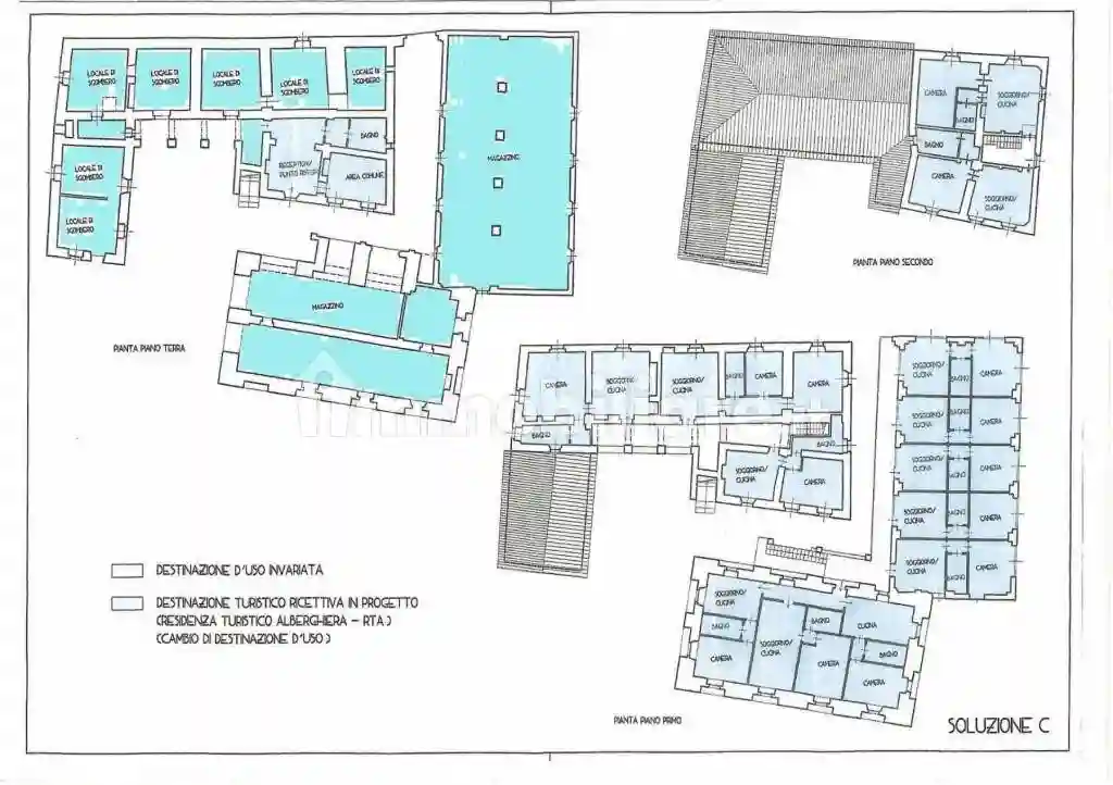
La proprietà, di cui parte della struttura risale a metà 1700, è completamente in pietra di Langa e si compone di diversi edifici e viene completata da un appezzamento di terreno di circa 8000 mq.
Il primo edificio che incontriamo è la ex stalla con sovrastante fientile, di dimensioni imponenti potrebbe essere usato per diversi scopi, ludici / agricoli o turistico ricettivi.
Altro edificio che era un tempo collegato con la ex stalla/fienile è un rustico da recuperare con delle bellissime arcate sulla facciata esterna.
Ancora un ulteriore fabbricato, il principale, quello abitativo padronale con locali seminterranti con magnifiche volte a crociera in mattoni, consistenti in ben 9 locali di sgombero/magazzini, piano primo abitativo con meraviglioso loggiato e 7 grandi vani che possono divenire abitativi con usi diversi e ancora un ulteriore piano di 4 ampi vani.
I tetti di questa parte sono stati completamente rifatti così come i serramenti, le solette etc.
Restano da terminare le finiture che andranno a conferire alla proprietà un tocco di personalità di colui che sarà l'utilizzatore finale.
Un pezzo davvero unioco nel suo genere.
La struttura è naturalmente vocata ad una finalizzazione d'accoglienza e gli attuali proprietari, che già gestistono in Europa, altre strutture similari, sono disponibili anche ad esaminare progetti di collaborazione per il completamento della struttura e la futura conduzione.

Caratteristiche

Ascensore No

Posizione

Referente

Agenzia Immobiliare IPI

Storico

Pubblicato 13 Jan 2026
Aggiornato 20 May 2026
Sul mercato 127 giorni
ID Annuncio 83813858

Recensioni

Vedi tutte
A

Andrea Nardone

4.7

Le mie esperienze precedenti con agenzie immobiliari erano state un po’ confuse, ma questa volta ho trovato un percorso diverso: più sereno e preciso. Sono stato seguito con grande professionalità e s...

N

Nino Laterza

4.3

Ho trovato l’appartamento perfetto in poco tempo grazie a un’agenzia molto efficace. Sono stato molto soddisfatto dell’assistenza, soprattutto per la gestione rapida e precisa di tutta la burocrazia....

A

Arturo La Rosa

4.3

Ricordo ancora quel momento in cui ho visto l’annuncio e ho deciso di affidare loro la vendita dell’appartamento di famiglia. Sono stato molto colpito dalla loro professionalità e serietà, sono stati...

L

Lello Iannone

4.0

Se stai cercando un'agenzia immobiliare affidabile a Cairo Montenotte, ti consiglio di affidarti a questa. Mi sono trovato molto bene: sono stato seguito con serietà e professionalità in ogni fase del...