Appartamento
Vendita
Vendita Appartamento

Appartamento

Via Tinelli s.n.c, Ponteranica, Bergamo

340.000 €
157
mq
3
Locali
2
Camere
1
Bagni

Recensisci questo Immobile

Devi essere registrato per lasciare una recensione.

Accedi

Nessuna recensione ancora. Sii il primo!

Descrizione

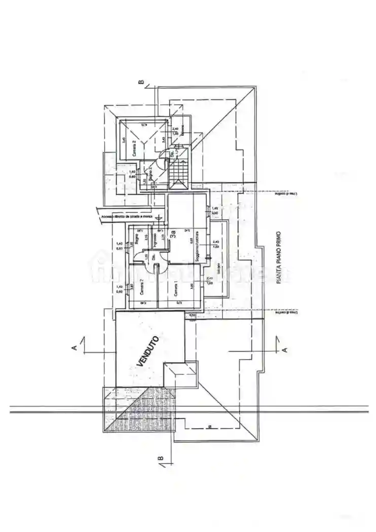
Ponteranica alta vendesi villetta di testa libera su tre lati, l'immobile si trova al rustico completamente da finire a proprio piacimento, la progettazione prevedeva, riscaldamento a pavimento doppi vetri, e predisposizione aria condizionata; il prezzo e comprensivo degli allacciamenti, esclusi contatori e macchine di condizionamento, Iva e schede catastali. L'immobile si compone di: al piano terra di una camera un bagno una cucina separata e soggiorno; al piano primo e ultimo un bagno una camera e balcone esclusivo, mentre al piano interrato un bagno una cantina, un ripostiglio e il box per una superficie totale di 157,77mq.box 34,50mqbalcone 6,50mqPrezzo 340.000, 00 euro.

Caratteristiche

Piano T
Ascensore No
Stato Da ristrutturare
Riscaldamento Autonomo, a pavimento, alimentato a gas

Servizi e accessori

Cancello elettrico Esposizione doppia Fibra ottica Impianto di allarme Impianto tv singolo Infissi esterni in doppio vetro / PVC Porta blindata VideoCitofono

Posizione

Referente

Orobica Evolution S.r.l. Real Estate

Storico

Pubblicato 12 Jan 2026
Aggiornato 18 Feb 2026
Sul mercato 38 giorni
ID Annuncio 85639378

Recensioni

Vedi tutte
M

Michele Palermo

4.7

Durante il momento in cui ho concluso la vendita del mio locale commerciale, mi sono sentito davvero rassicurato dal supporto ricevuto. L'agenzia si è dimostrata molto seria e professionale, sempre di...

A

Amedeo Fiori

4.3

Grazie di cuore per l'aiuto prezioso! Sono stato molto soddisfatto della trasparenza e della rapidità con cui mi hanno seguito nella ricerca del mio ufficio a Bergamo. Hanno capito subito le mie esige...