Vendita Casa indipendente

Casa indipendente

Via Siciliano, Mirabella Imbaccari, Catania

Prezzo
Buon Prezzo: 16% sotto la media
75
mq
2
Locali
2
Camere
2
Bagni

Recensisci questo Immobile

Devi essere registrato per lasciare una recensione.

Accedi

Nessuna recensione ancora. Sii il primo!

Descrizione

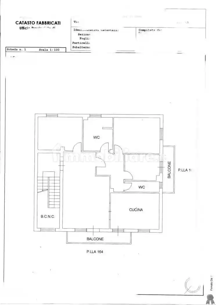
Sito in zona centrale di Mirabella Imbaccari, a breve distanza dalla Chiesa di Maria Santissima delle Grazie, del palazzo comunale, del giardino pubblico, dove sorgono numerose abitazioni, attività commerciali ed artigianali, tabacchi, farmacie, bar. Casa singola composta al piano terra da garage o salotto fornito di bagno; primo piano composto da cucina; secondo piano disimpegno, camera da letto o soggiorno; terzo piano camera da letto e bagno; terrazzino panoramico, balconi. Buone condizioni generali, Classe energetica prevista "G" EPgl 229,53 Kwh/mq annui, migliorabile apportando alcune modifiche all'immobile con metodologia a risparmio energetico, usufruendo inoltre delle detrazioni fiscali vigenti. Vendita inclusi arredi.

Caratteristiche

Piano 4 piani: Piano terra, da 1° a 3°
Ascensore No
Stato Buono / Abitabile
Riscaldamento Assente
Garage 1 in box privato/box in garage, 1 in parcheggio/garage comune

Servizi e accessori

Esposizione esterna Balcone Terrazzo Impianto tv con parabola satellitare Arredato Infissi esterni in doppio vetro / legno

Posizione

Referente

Daniele Marcinnò

Storico

Pubblicato 02 Jan 2026
Aggiornato 28 Feb 2026
Sul mercato 57 giorni
ID Annuncio 89848405

Recensioni

Vedi tutte
C

Cristian Farina

4.7

Ho avuto un'esperienza positiva con quest'agenzia immobiliare a Caltagirone. Sono stato molto soddisfatto delle valutazioni oneste e precise, che mi hanno permesso di fissare un prezzo giusto per l’ap...