Vendita Appartamento

Appartamento

Viale dei Giardini, 9, Montemesola, Taranto

75.000 €
125
mq
4
Locali
3
Camere
1
Bagni

Recensisci questo Immobile

Devi essere registrato per lasciare una recensione.

Accedi

Nessuna recensione ancora. Sii il primo!

Descrizione

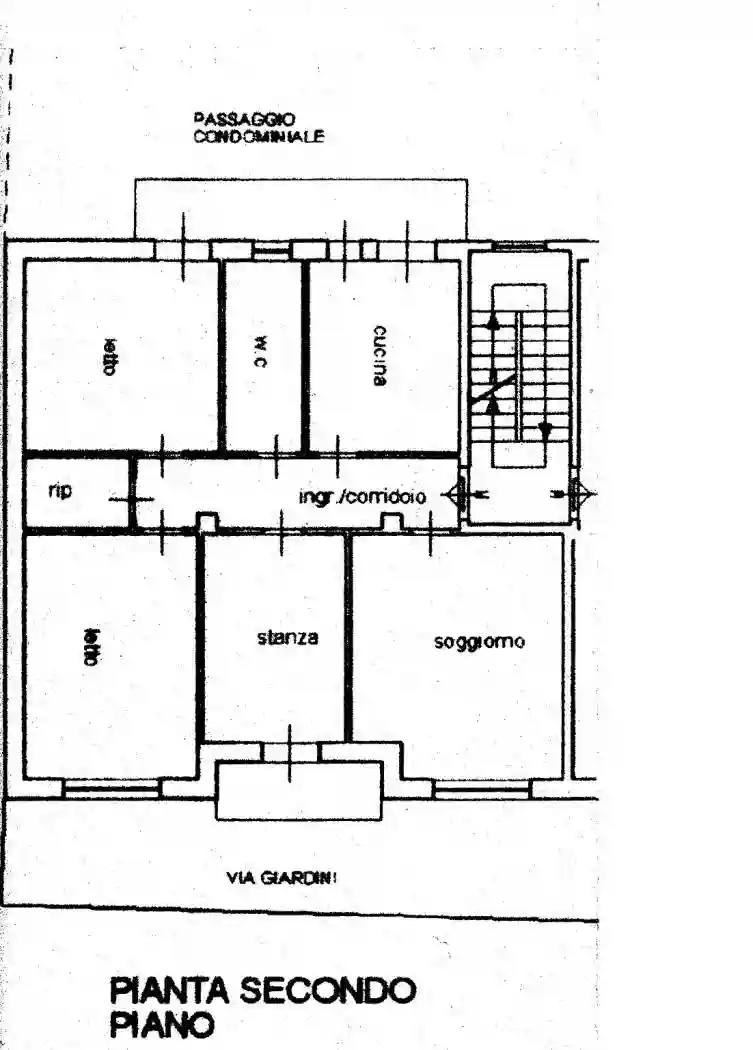
Benvenuti in questo grazioso appartamento situato in Via Giardini 9, Montemesola. Questo quadrilocale al 2° piano, con una superficie di circa 125 mq, offre uno spazio abitativo ampio e confortevole. L'ingresso-disimpegno conduce a un luminoso soggiorno, tre camere da letto, una cucina funzionale, un bagno e un ripostiglio. Due balconi garantiscono una doppia esposizione, permettendo di godere di una buona ventilazione naturale.
L'appartamento, costruito nel 1975, è in buono stato e dotato di riscaldamento autonomo a gas naturale. La classe energetica "E" – Epgl,nren 92,96 assicura un consumo energetico contenuto. Inoltre, il box auto al piano terra di 13 mq è incluso nel prezzo, offrendo una soluzione pratica per il parcheggio. Il prezzo è stato recentemente ribassato, rendendo questa offerta ancora più interessante. Per ulteriori informazioni e per organizzare una visita, contattate il numero di telefono 346 7570412. Venite a scoprire il vostro futuro appartamento a Montemesola! Possibilità acquisto arredi esistenti.

Caratteristiche

Piano 2
Ascensore No
Stato Buono / Abitabile
Riscaldamento Autonomo, a radiatori, alimentato a metano

Servizi e accessori

Esposizione doppia Impianto tv singolo Infissi esterni in vetro / metallo

Posizione

Referente

Fornaro Immobiliare

Storico

Pubblicato 14 Jan 2026
Aggiornato 25 Feb 2026
Sul mercato 43 giorni
ID Annuncio 91630636

Recensioni

Vedi tutte
O

Oreste Resta

5.0

Ho scelto questa agenzia perché cercavo un partner affidabile e onesto per la mia prima casa e devo dire che sono stato davvero felice della scelta. Mi hanno seguito passo dopo passo, ascoltando atten...

S

Silvano Camerini

4.7

Ho venduto un appartamento di famiglia grazie a un'agenzia immobiliare molto professionale. Sono stato seguito con attenzione durante tutte le visite e hanno fatto in modo che il processo fosse il più...

S

Simona Inserra

4.3

Durante tutto il percorso mi sono sentita davvero al sicuro, come se avessi una vera amica al mio fianco. L'agenzia mi ha ascoltata attentamente, capendo esattamente cosa cercavo e guidandomi passo do...

S

Silvia Armani

4.7

Ho trovato un bilocale perfetto a Montemesola grazie a un’agenzia davvero competente. Mi sono sentita seguita passo passo nella trattativa e hanno dimostrato una buona conoscenza delle normative, il c...