Vendita Villa

Villa

Via Circonvallazione, 81/b, Guastalla, Reggio Emilia

385.000 €
179
mq
4
Locali
3
Camere
2
Bagni

Recensisci questo Immobile

Devi essere registrato per lasciare una recensione.

Accedi

Nessuna recensione ancora. Sii il primo!

Descrizione

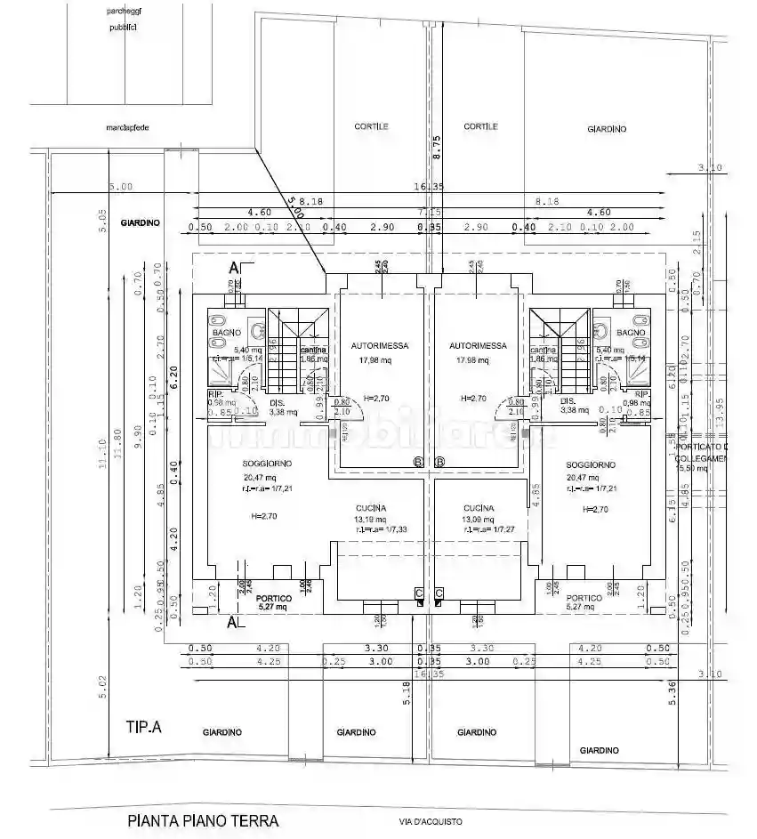
In zona Semicentrale di Guastalla (RE) proponiamo in vendita sei ville a schiera di nuova costruzione. Ciascun immobile sarà così composto: piano terra da ingresso, soggiorno, cucina abitabile, disimpegno, bagno, cantina/sottoscala, autorimessa, portico e giardino su due lati; piano primo da tre camere da letto, disimpegno, bagno, ripostiglio e balcone. Possibilità di personalizzare gli ambienti interni e le finiture. Prezzi a partire da € 390.000. Per ulteriori informazioni recatevi presso la nostra agenzia sita in Guastalla (RE), via circonvallazione 81/b, oppure contattateci al n° 0522825243 per avere un appuntamento. Rif. 38 sez. vendite

Caratteristiche

Piano T
Ascensore No
Stato Nuovo / In costruzione
Riscaldamento Autonomo, ad aria, alimentato a fotovoltaico

Servizi e accessori

Armadio a muro Caminetto Cancello elettrico Esposizione doppia Fibra ottica Impianto di allarme Impianto tv singolo Infissi esterni in triplo vetro / PVC Porta blindata VideoCitofono

Posizione

Referente

Immobiliare Guastalla

Storico

Pubblicato 12 Jan 2026
Aggiornato 24 Feb 2026
Sul mercato 43 giorni
ID Annuncio 98873370

Recensioni

Vedi tutte
M

Monica Cappelli

4.3

In passato, ho avuto esperienze con agenzie che sembravano più interessate a concludere che a capire davvero le mie esigenze, ma questa volta è andata diversamente. Sono stata seguita con calma e pazi...

L

Luciana Aquilani

4.3

Ho trovato l’appartamento vista mare che cercavo grazie a un’agenzia molto professionale e affidabile. Stata seguita passo dopo passo, mi sono sentita sempre in buone mani e pronta a fare la scelta gi...

L

Lucia Zappa

4.0

Voglio ringraziare di cuore per l’aiuto durante l’acquisto della mia prima casa. Sono stata molto soddisfatta della chiarezza nelle spiegazioni e del supporto nella fase di ottenimento del mutuo, che...