Indietro
Villetta a schiera
Vendita
Vendita Villetta a schiera

Villetta a schiera

Guastalla, Reggio Emilia

385.000 €
158
mq
4
Locali
3
Camere
2
Bagni

Recensisci questo Immobile

Devi essere registrato per lasciare una recensione.

Accedi

Nessuna recensione ancora. Sii il primo!

Descrizione

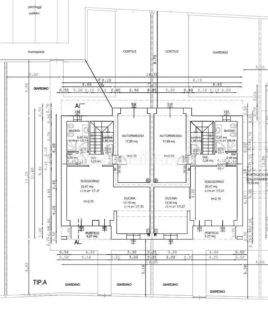
Per informazioni: KATIA 347 4591560 - Rustiko, Agenzia immobiliare GUALTIERI, piazza Bentivoglio 70. A Guastalla, in quartiere residenziale, proponiamo in vendita 6 villette a schiera in corso di costruzione.
Le villette sono disponibili in due tipologie e sono abbinate a due a due, e tutte libere su tre lati, anche quelle centrali che sono collegate alle altre tramite un pergolato. In questo modo, quelle centrali, pur non avendo un giardino su 3 lati, hanno la possibilità di accedere al giardino posteriore anche esternamente, grazie al marciapiede laterale di circa 1,50 metri.
La tipologia "A" si compone di ingresso in soggiorno da porticato; cucina abitabile a vista, disimpegno di collegamento con ripostiglio, bagno, vano scala con cantina e autorimessa; al piano primo di disimpegno, bagno, camera matrimoniale con balcone, camera doppia, camera singola e ripostiglio.
La tipologia "B" di ingresso da portico in ampio soggiorno con cucina open space, con possibilità di suddividere i due ambienti; disimpegno, vano scala con cantina, bagno, ripostiglio e autorimessa; al piano primo da disimpegno, camera matrimoniale e singola con balcone; ripostiglio, camera doppia e bagno.
Possibilità di personalizzazione delle finiture. Soluzione "A" o "B" a scelta, prezzo leggermente variabile.
In agenzia è disponibile il capitolato descrittivo delle opere con le condizioni di vendita.

Caratteristiche

Piano T
Ascensore No
Stato Nuovo / In costruzione
Riscaldamento Autonomo, a pavimento, alimentato a fotovoltaico

Servizi e accessori

Esposizione doppia Impianto tv singolo Infissi esterni in triplo vetro / PVC Porta blindata

Referente

Daniele Moretti

Storico

Pubblicato 12 Jan 2026
Aggiornato 18 Feb 2026
Sul mercato 41 giorni
ID Annuncio 99987242

Recensioni

Vedi tutte
S

Silvano Landini

4.3

Ho finalmente trovato casa dopo anni di affitto e sono stato molto contento del servizio. L'agenzia è stata sempre puntuale agli appuntamenti e ha spiegato tutto in modo chiaro e semplice, senza tropp...